Apartament de 2 camere, Finisat, zona BMW, Floresti

138.000 €

Florești, Județul Cluj

Nr. cam.:
2
Sup. utilă:
49 mp
Etaj:
3 / 10
An constr.:
2025 (Finalizată)
  • • Locație aproximativă

Descriere apartament

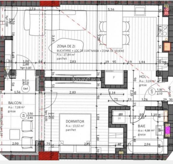
Va propun spre vanzare apartament de 2 camere, 48.73 mp utili plus un balcon de 7 mp. Apartamentul este pozitionat in zona BMW in imediata apropiere de Metro si viitorul spital regional, zona este una foarte accesibila, statie de autobuz la 5 minute de mers pe jos, magazine Carrefour si Profi, farmacie iar VIVO Mall este la distanta de 5 minute cu masina. Apartamentul este semidecomandat si este compartimentat astfel: hol, living plus bucatarie open space, dormitor, baie si balcon. Apartamentul este finisat, nemobilat cu centrala proprie, incalzire in pardoseala, parchet, gresie, usi interioare si baia complet utilata. . Separat se poate achizitiona si un loc de parcare subteran la pretul de 15.000 euro. Pentru orice detalii sau vizionari va rog sa ma contactati la numarul de telefon afisat!
Citește mai mult Citește mai puțin
Semidecomandat Nemobilat 1 Balcon / Terasă / Logie Centrală proprie Încălzire prin pardoseală 1 Garaj Bine întreținut (Bună)

Detalii apartament

ID anunț: X91L100LI Copiat! 274768527 Copiat!
Actualizat în: 20 Martie 2026
Suprafață construită: 60 mp
Nr. bucătării: 1
Nr. băi: 1
Tip imobil: Bloc de apartamente
Regim înălțime: P+10E

Utilități

Destinație
Rezidențial
Pereți
Vopsea lavabilă Faianță
Podele
Parchet Gresie
Ușă intrare
Metal
Uși interior
Panel
Izolații termice
Exterior
Ferestre cu geam termopan
Lemn
Contorizare
Apometre Contor căldură Contor gaz
Facilități imobil
Videointerfon
Utilități
Curent Apă Canalizare Gaze Telefon
Internet
Fibră optică
Amenajare străzi
Asfaltate Iluminat stradal Mijloace de transport în comun

Puncte de interes

Mijloace transport
bus-station
Metro Nord S
Stații autobuz aprox. 307 m
bus-station
Metro Nord N
Stații autobuz aprox. 307 m
tram-station
Clabucet
Stații tramvai aprox. 1834 m
tram-station
Clabucet
Stații tramvai aprox. 1980 m
Școală
kindergarten
Gradinita Dumbrava Minunata
Gradinițe aprox. 1995 m
Recreere
supermarket
Metro
Supermarket aprox. 492 m
park
Zonă de protectie - Compania de Apa Somes S.A.
Parcuri aprox. 556 m
mall
Complex comercial Polus
Mall aprox. 927 m
sports-ground
Teren Decathlon
Terenuri sport aprox. 1037 m

Detalii despre preț și costuri

Prețul pe piață

Preț cerut: 138.000 €

Preț min. zonă
Preț max. zonă

97% dintre proprietățile similare ca zonă și nr. camere au prețul cerut mai mic. mai multe...

Bine de știut: prețul unei proprietăți este influențat și de alte caracteristici, cum ar fi: vechime, localizare, vecinătăți, suprafață, compartimentare, amenajări, dotări, etc. mai puțin...

Insight premium disponibil după login

Costuri cu achiziția

Fără credit
Credit ipotecar
Noua casă

i

Costuri adiționale mai puțin știute la achiziție: taxe notariale, comisioane etc.

Insight premium disponibil după login

Proprietăți recomandate

Detalii de contact

NovoCasa

Sergiu Rusu Consultant Imobiliar

NovoCasa
PRO

Abonează-te la newsletter să fii primul care primește cele mai noi recomandări de proprietăți și sfaturi de la experți.

CONTACT

Creează alertă

Salvează căutarea ca să primești pe email ultimele anunțuri publicate

Apartamente noi cu 2 camere de vânzare în Florești, Județul Cluj