Apartament 2 camere, str. Cetății – Direct dezvoltator, 0% comision

77.690 € + TVA

Florești, Județul Cluj

Nr. cam.:
2
Sup. utilă:
45,7 mp
Etaj:
1 / 3
An constr.:
2025 (În construcție)
  • • Comision 0%
  • • Locație exactă

Descriere apartament

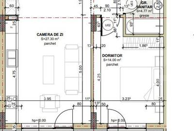
Apartament modern de 45.7 mp situat într-un proiect rezidențial în dezvoltare, Rhodium Residence Floresti, cu predare estimată între Martie 2026 și obținerea CF-urilor în Mai - Iunie 2026. Ansamblul nostru rezidențial este situat în Florești, județul Cluj, la doar 8 km vest de Cluj-Napoca. În apropiere, locatarii pot găsi diverse facilități, inclusiv centre comerciale, instituții de învățământ și unități de sănătate, toate contribuind la un stil de viață confortabil și practic. Pentru cei care preferă transportul public, Florești este bine conectat la rețeaua de transport din Cluj-Napoca, facilitând accesul rapid la diverse destinații din oraș. Această locație strategică face din ansamblul nostru rezidențial o opțiune ideală pentru cei care doresc să combine confortul unei locuințe moderne cu accesibilitatea și facilitățile oferite de proximitatea față de Cluj-Napoca. Apartamentele vor fi predate la stadiu semifinisat: -Instalații termice, electrice și sanitare executate -Încălzire în pardoseală cu centrală termică individuală -Pereți gletuiți și zugrăviți -Tâmplărie PVC cu 3 sticle și 7 camere -Ușă metalică antiefracție -Interfon și balcoane finisate Locuri de parcare: -Loc exterior: 5.500 euro + TVA -Loc exterior acoperit: 7.500 euro + TVA Finanțare: -Oferim asistență completa pentru obținerea creditelor ipotecare și/sau alte forme de finanțare. *Prețul afișat nu include cota de TVA si este valabil pentru un avans de 50% din valoarea proprietății.
Citește mai mult Citește mai puțin
Decomandat 1 Balcon / Terasă / Logie Centrală proprie Încălzire prin pardoseală

Detalii apartament

ID anunț: XFO41001G Copiat! 275190197 Copiat!
Actualizat în: 04 Martie 2026
Nr. bucătării: 1
Nr. băi: 1
Structură rezistență: Cărămidă
Tip imobil: Bloc de apartamente
Regim înălțime: P+3E

Utilități

Destinație
Rezidențial
Pereți
Vopsea lavabilă
Ușă intrare
Metal
Izolații termice
Exterior
Ferestre cu geam termopan
PVC
Contorizare
Apometre Contor gaz
Utilități
Curent Apă Canalizare CATV Gaze
Internet
Cablu
Amenajare străzi
Iluminat stradal Mijloace de transport în comun Asfaltate
Comision
0%

Vecinătăți:

Mega Image
Profi
Jysk
Papillon
Kik
Farmacia Napofarm, Ducfarm, Remedium
Gama Optic
Q-Max
Patiseria Transilvania
Complex Roca
Statii autobus: M21 (str Cetatii), M26 (str Eroilor)
Primaria Floresti
Gradinita

Puncte de interes

Mijloace transport
bus-station
Profi V
Stații autobuz aprox. 246 m
bus-station
Luxor V
Stații autobuz aprox. 451 m
bus-station
Luxor N
Stații autobuz aprox. 486 m
bus-station
Eroilor V
Stații autobuz aprox. 496 m
Recreere
supermarket
Profi Floresti
Supermarket aprox. 256 m
park
Parc
Parcuri aprox. 280 m
cafe
Adveture of Henry
Cafenea aprox. 349 m
sports-ground
Teren Fotbal Sintetic
Terenuri sport aprox. 357 m

Detalii despre preț și costuri

Prețul pe piață

Preț cerut: 77.690 €

Preț min. zonă 75.000 €
Preț max. zonă 147.500 €

79% dintre proprietățile similare ca zonă și nr. camere au prețul cerut mai mare. mai multe...

Bine de știut: prețul unei proprietăți este influențat și de alte caracteristici, cum ar fi: vechime, localizare, vecinătăți, suprafață, compartimentare, amenajări, dotări, etc. mai puțin...

Costuri cu achiziția

Fără credit
5.829 RON
Credit ipotecar
7.326 RON
Noua casă
619 RON+ taxe notariale

i

Costuri adiționale mai puțin știute la achiziție: taxe notariale, comisioane etc.

Proprietăți similare

Apartament cu 2 camere semidecomandat, mobilat în Florești
77.500 €
Județul Cluj, Florești
2 camere
50 mp
Etaj 3 / 3
Apartament cu 3 camere semidecomandat în Florești
79.007 € + TVA
Județul Cluj, Florești
3 camere
38,54 mp
Parter
Apartament cu 2 camere semidecomandat în Florești
78.750 € + TVA
Județul Cluj, Florești
2 camere
45,04 mp
Etaj 3 / 5

Detalii de contact

PROPERTIX

Propertix .

PROPERTIX

Abonează-te la newsletter să fii primul care primește cele mai noi recomandări de proprietăți și sfaturi de la experți.

CONTACT

Creează alertă

Salvează căutarea ca să primești pe email ultimele anunțuri publicate

Apartamente cu 2 camere de vânzare în Florești, Județul Cluj