Apartament 2 camere de vanzare | SU 54 mp + 50 mp terasa | Boxa | Floresti

106.000 €

Florești, Județul Cluj

Nr. cam.:
2
Sup. utilă:
53,88 mp
Etaj:
Parter / 3
Tip prop.:
Bloc de apartamente
  • • Comision 0%
  • • Locație aproximativă

Descriere apartament

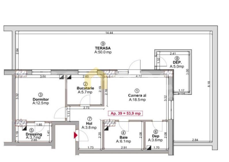
Cu o suprafata utila de 54 mp, apartamentul beneficiaza de o terasa generoasa de 50 mp si o boxa de depozitare de 5 mp, oferind confort si spatiu suplimentar. Configuratia interioara este eficient gandita – dormitor matrimonial cu dressing si acces direct pe terasa atat din living, cat si din dormitor. Bucataria este separata, iar baia este prevazuta cu cada, cu posibilitatea de a fi adaptata pentru cabina de dus, in functie de preferintele viitorului proprietar. Detalii importante: - orientare Vest; - centrala termica proprie; - semifinisat (cu posibilitate de finisare la dorinta cumparatorului); - acces rapid la transport public si facilitati urbane. Drumul de acces are o latime de 7 metri, dispune de trotuare, spatii verzi amenajate si locuri de parcare pentru fiecare apartament. Strada este asfaltata, iluminata public, iar statia de autobuz Cluj–Floresti se afla la doar 8 minute de mers pe jos. Detalii zona: Ansamblul Green Residence, situat in zona Terra, ofera apartamente luminoase, cu vedere deschisa spre spatii verzi si dealuri, ideale pentru cei care isi doresc liniste si aer curat, departe de agitatia urbana dar usor accesibil. Complexul a fost construit in 2024, folosind materiale de calitate si utilitati moderne, garantat fara probleme tehnice. Apartamentele, disponibile in variante de 1, 2 si 3 camere, se evidentiaza printr-o compartimentare eficienta si un ambient confortabil. Accesul este facil, realizandu-se din trei directii – iar zona se remarca printr-un cadru natural aerisit, cu regim redus de inaltime si o comunitate linistita. Se accepta plata cash, credit ipotecar sau programul Prima Casa.
Citește mai mult Citește mai puțin
Nemobilat Calorifere Centrală proprie

Detalii apartament

ID anunț: XBOO101B5 Copiat! 275228355 Copiat!
Actualizat în: 12 Martie 2026
Nr. bucătării: 1
Nr. băi: 1
Regim înălțime: D+P+3E

Utilități

Utilități
Curent Apă Canalizare Gaze
Amenajare străzi
Asfaltate

Disponibilitate proprietate:

imediat

Puncte de interes

Mijloace transport
bus-station
M-Cartier Terra
Stații autobuz aprox. 841 m
bus-station
M-Prof. Dumitru Mocanu
Stații autobuz aprox. 1087 m
bus-station
M-Prof. Dumitru Mocanu E
Stații autobuz aprox. 1092 m
bus-station
M-Prof. Dumitru Mocanu V
Stații autobuz aprox. 1095 m
Recreere
park
Parc
Parcuri aprox. 788 m
restaurant
Pizza Pizza
Restaurant aprox. 916 m
supermarket
Profi
Supermarket aprox. 1527 m
sports-ground
Teren Fotbal Sintetic
Terenuri sport aprox. 1682 m

Detalii despre preț și costuri

Prețul pe piață

Preț cerut: 106.000 €

Preț min. zonă 74.200 €
Preț max. zonă 147.000 €

54% dintre proprietățile similare ca zonă și nr. camere au prețul cerut mai mare. mai multe...

Bine de știut: prețul unei proprietăți este influențat și de alte caracteristici, cum ar fi: vechime, localizare, vecinătăți, suprafață, compartimentare, amenajări, dotări, etc. mai puțin...

Costuri cu achiziția

Fără credit
6.391 RON
Credit ipotecar
7.954 RON
Noua casă
680 RON+ taxe notariale

i

Costuri adiționale mai puțin știute la achiziție: taxe notariale, comisioane etc.

Proprietăți recomandate

Detalii de contact

Connect Imobiliare

Florina Nistor Broker Imobiliar

Connect Imobiliare
PRO

Abonează-te la newsletter să fii primul care primește cele mai noi recomandări de proprietăți și sfaturi de la experți.

CONTACT

Creează alertă

Salvează căutarea ca să primești pe email ultimele anunțuri publicate

Apartamente cu 2 camere de vânzare în Florești, Județul Cluj