Apartament 2 camere, 54mp, balcon, semifinisat, zona Terra, Floresti

95.000 €

Florești, Județul Cluj

Nr. cam.:
2
Sup. utilă:
53,4 mp
Etaj:
2 / 4
An constr.:
2024 (Finalizată)
  • • Locație aproximativă

Descriere apartament

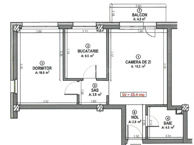
GreenCasa Imobiliare vă propune spre vânzare un apartament cu 2 camere, situat la etajul 2 al unui imobil nou cu regim de înălțime P+3, în zona Terra, Florești. Locuința are o suprafață utilă de 53,4 mp, la care se adaugă un balcon de 4,2 mp, și este compartimentată astfel: hol de intrare, baie, bucătărie decomandată, cameră de zi și dormitor. Apartamentul se predă la stadiul de semifinisat și dispune de dotări moderne: ușă metalică la intrare, tâmplărie PVC cu 3 sticle și 7 camere, instalații electrice și sanitare trase pe poziții, centrală termică proprie și pereți gletuiți. Separat, se poate achiziționa un loc de parcare exterior, la prețul de 4.000 euro. Pentru mai multe detalii sau pentru programarea unei vizionări, vă rugăm să ne contactați. P139898
Citește mai mult Citește mai puțin
Semidecomandat 1 Balcon / Terasă / Logie Centrală proprie Bine întreținut (Bună)

Detalii apartament

ID anunț: XFUS100QH Copiat! 275429244 Copiat!
Actualizat în: 22 Aprilie 2026
Nr. bucătării: 1
Nr. băi: 1
Structură rezistență: Cărămidă
Tip imobil: Bloc de apartamente
Regim înălțime: P+4E

Utilități

Ușă intrare
Metal
Izolații termice
Exterior
Ferestre cu geam termopan
PVC
Alte spații utile
Debara
Facilități imobil
Interfon
Utilități
Curent Apă Canalizare Gaze
Amenajare străzi
Asfaltate
Comision
2%

Puncte de interes

Mijloace transport
bus-station
M-Cartier Terra
Stații autobuz aprox. 493 m
bus-station
M-Prof. Dumitru Mocanu E
Stații autobuz aprox. 618 m
bus-station
M-Prof. Dumitru Mocanu
Stații autobuz aprox. 619 m
bus-station
M-Prof. Dumitru Mocanu V
Stații autobuz aprox. 630 m
Recreere
park
Parc
Parcuri aprox. 148 m
restaurant
Pizza Pizza
Restaurant aprox. 236 m
supermarket
Profi Floresti
Supermarket aprox. 769 m
sports-ground
Teren Fotbal Sintetic
Terenuri sport aprox. 948 m

Detalii despre preț și costuri

Prețul pe piață

Preț cerut: 95.000 €

Preț min. zonă
Preț max. zonă

74% dintre proprietățile similare ca zonă și nr. camere au prețul cerut mai mare. mai multe...

Bine de știut: prețul unei proprietăți este influențat și de alte caracteristici, cum ar fi: vechime, localizare, vecinătăți, suprafață, compartimentare, amenajări, dotări, etc. mai puțin...

Insight premium disponibil după login

Costuri cu achiziția

Fără credit
Credit ipotecar
Noua casă

i

Costuri adiționale mai puțin știute la achiziție: taxe notariale, comisioane etc.

Insight premium disponibil după login

Proprietăți similare

Apartament cu 2 camere semidecomandat în Florești
87.000 €
Județul Cluj, Florești
2 camere
40 mp
Etaj 3 / 4
Apartament cu 2 camere semidecomandat, mobilat în Florești
99.900 €
Județul Cluj, Florești
2 camere
40 mp
Etaj 4 / 4
Apartament cu 3 camere decomandat, mobilat în Florești
88.000 €
Județul Cluj, Florești
3 camere
51 mp
Parter

Detalii de contact

GREEN CASA IMOBILIARE

Danut Breha Manager

GREEN CASA IMOBILIARE
PRO

Abonează-te la newsletter să fii primul care primește cele mai noi recomandări de proprietăți și sfaturi de la experți.

CONTACT

Creează alertă

Salvează căutarea ca să primești pe email ultimele anunțuri publicate

Apartamente noi cu 2 camere de vânzare în Florești, Județul Cluj