Apartament de 2 camere, 49 mp+11 mp balcon,zona Cetatii

78.000 €

Florești, Județul Cluj

Nr. cam.:
2
Sup. utilă:
49 mp
Etaj:
1 / 4
An constr.:
2022 (Finalizată)
  • • Locație aproximativă

Descriere apartament

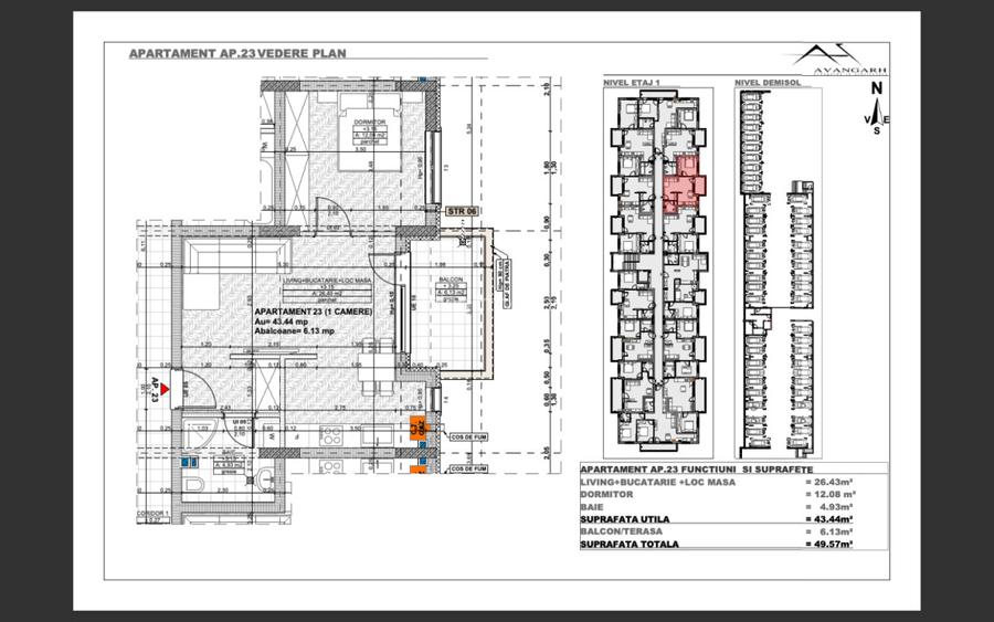
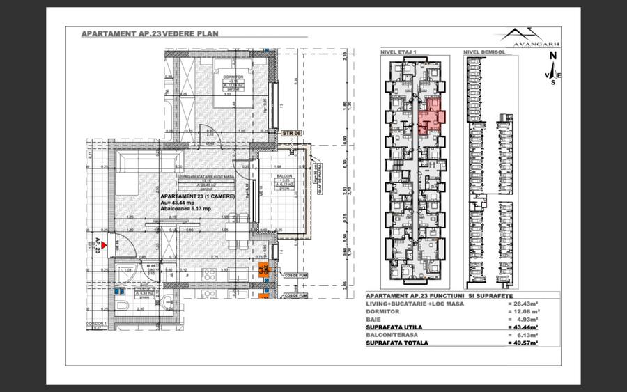
Cu siguranta! Ansamblurile rezidentiale de top se remarca prin eleganta, confort si facilitati de inalta calitate. Acest ansamblu rezidential exceleaza prin arhitectura moderna si amenajarile spatioase, oferind un mediu prietenos pentru locuitori. Cu dotari premium, spatii verzi generoase, locatarii au parte de un stil de viata activ si relaxant. Apartamentul este pozitionat la etajul 1 intr-un imobil cu regim de inaltime P+4+R, are 2 camere si suprafata utila de 49mp fiind compartimentat astfel: hol, living cu bucatarie open space, un dormitor, o baie, balcon si de 11 mp/600 euro+tva. Parcarile exterioare pornesc de la 5000 EUR iar parcarile subterane intre 6000EUR-8500EUR. Se vinde la stadiul de semifinisat oferind posibilitatea noilor proprietari de a-si lasa amprenta proprie asupra spatiului. In plus, ansamblul rezidential beneficiaza de securitate avansata, asigurand o viata confortabila si lipsita de griji. Amplasat intr-o zona premium, cu acces facil la servicii, restaurante si centre comerciale, acest ansamblu atrage o comunitate selecta, care isi doreste sa traiasca intr-un ambient exclusivist si sigur. Pretul de vanzare este 1280 euro cu TVA-ul de 5% inclus la care se adauga pretul pe suprafata balconului care va fi calculata astfel : - la avans de 30 % sunt 650 euro mp; - la avans de 50 % sunt 325 euro mp; - la avans de 80 %terase sunt gratis; Concluzionand, acest ansamblu rezidential de top ofera un stil de viata de lux, cu atentie la detalii si o atitudine proactiva in satisfacerea nevoilor locatarilor sai. Pretul de lista este valabil pana in luna septembrie 2023, dupa calculandu-se pretul cu TVA-ul de 9% conform noilor reglementari. Blocul dispune de lift, finalizarea va avea loc in anul 2023 iar CF-ul se preconizeaza pe inceputul anului 2024. Este o oportunitate extraordinara atat pentru investitie cat si pentru locuinta, intrucat nu ezitati sa ne contactati pentru a programa o vizionare. ID extern : P2132
Citește mai mult Citește mai puțin
Confort 1 Semidecomandat 1 Balcon / Terasă / Logie Încălzire prin pardoseală

Detalii apartament

ID anunț: XE7D10133 Copiat! 55504197 Copiat!
Actualizat în: 06 Octombrie 2025
Suprafață construită: 59 mp
Nr. bucătării: 1
Nr. băi: 1
Structură rezistență: Cărămidă
Tip imobil: Bloc de apartamente
Regim înălțime: P+4E

Utilități

Destinație
Rezidențial
Contorizare
Contor căldură Contor gaz
Alte spații utile
Terasă
Facilități imobil
Interfon
Utilități
Curent Apă Canalizare Gaze
Ușă intrare
Metal
Ferestre cu geam termopan
PVC
Amenajare străzi
Asfaltate Iluminat stradal Mijloace de transport în comun
Comision
standard

Vecinătăți:

MEGA IMAGE, PROFI, PENNY

Disponibilitate proprietate:

imediat

Puncte de interes

Mijloace transport
bus-station
Eroilor E
Stații autobuz aprox. 284 m
bus-station
Stejarului
Stații autobuz aprox. 305 m
bus-station
Luxor V
Stații autobuz aprox. 320 m
bus-station
Eroilor V
Stații autobuz aprox. 325 m
Recreere
sports-ground
Teren Fotbal Sintetic
Terenuri sport aprox. 295 m
cafe
Adveture of Henry
Cafenea aprox. 397 m
supermarket
Profi Floresti
Supermarket aprox. 579 m
park
Parc
Parcuri aprox. 785 m

Detalii despre preț și costuri

Prețul pe piață

Preț cerut: 78.000 €

Preț min. zonă 75.000 €
Preț max. zonă 147.500 €

87% dintre proprietățile similare ca zonă și nr. camere au prețul cerut mai mare. mai multe...

Bine de știut: prețul unei proprietăți este influențat și de alte caracteristici, cum ar fi: vechime, localizare, vecinătăți, suprafață, compartimentare, amenajări, dotări, etc. mai puțin...

Costuri cu achiziția

Fără credit
5.075 RON
Credit ipotecar
6.446 RON
Noua casă
537 RON+ taxe notariale

i

Costuri adiționale mai puțin știute la achiziție: taxe notariale, comisioane etc.

Proprietăți recomandate

Detalii de contact

Bling Imobiliare

Nica Vlad Master Broker

Bling Imobiliare

Abonează-te la newsletter să fii primul care primește cele mai noi recomandări de proprietăți și sfaturi de la experți.

CONTACT

Creează alertă

Salvează căutarea ca să primești pe email ultimele anunțuri publicate

Apartamente noi cu 2 camere de vânzare în Florești, Județul Cluj