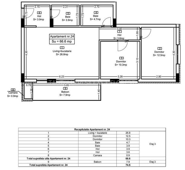
Ap 24 Teilor Residence - 3 camere

107.438 € + TVA

Florești, Județul Cluj

Nr. cam.:
3
Sup. utilă:
66,57 mp
Etaj:
3 / 4
An constr.:
2025 (Finalizată)
  • • Comision 0%
  • • Exclusivitate
  • • Locație exactă

Descriere apartament

CF disponibil, achizitie direct de la dezvoltator, comision 0% Pretul afisat nu include Tva Apartamentul beneficiaza de tamplarie cu profil format din 3 foi de sticla si 5 camere BARIER REHAU, incalzire in pardoseala cu centrala proprie SAUNIER DUVAL, gresie si faianta CESAROM, usa de exterior antiefractie MEGA DOORS, usi de interior albe PORTA DOORS, instalatii electrice cu prize si intrerupatoare, instalatii sanitare trase la pozitie, parchet EGGER, lift. Facilități ale ansamblului: • Apartamente spațioase, cu 2 și 3 camere • Finisaje de calitate superioară • Balcoane generoase • Parcări supraterane și subterane securizate • Spații verzi și spații de relaxare • Securitate 24/7: supraveghere video la fiecare bloc • Proximitate: magazine, școli, pădure
Citește mai mult Citește mai puțin
Confort lux Semidecomandat Nemobilat 1 Balcon / Terasă / Logie Curte comună Încălzire prin pardoseală

Detalii apartament

ID anunț: XB551001K Copiat! 268668229 Copiat!
Actualizat în: 26 Februarie 2026
Suprafață construită: 75 mp
Nr. bucătării: 1
Nr. băi: 2
Structură rezistență: Beton
Tip imobil: Bloc de apartamente
Regim înălțime: S+P+4E

Utilități

Destinație
Rezidențial
Pereți
Vopsea lavabilă
Podele
Gresie Parchet
Ușă intrare
Metal
Izolații termice
Exterior
Contorizare
Apometre Contor gaz
Diverse
Telecomandă poartă garaj
Alte spații utile
Debara
Facilități imobil
Lift Videointerfon
Utilități
Curent Apă Canalizare CATV Gaze Telefon
Internet
Cablu
Servicii imobil
Supraveghere video
Amenajare străzi
Iluminat stradal Mijloace de transport în comun Asfaltate
Comision
0%

Certificat energetic:

Clasa energetică: B

Disponibilitate proprietate:

Imediat

Puncte de interes

Mijloace transport
bus-station
M-Cartier Terra
Stații autobuz aprox. 762 m
bus-station
M-Prof. Dumitru Mocanu
Stații autobuz aprox. 950 m
bus-station
M-Prof. Dumitru Mocanu E
Stații autobuz aprox. 952 m
bus-station
M-Prof. Dumitru Mocanu V
Stații autobuz aprox. 961 m
Recreere
park
Parc
Parcuri aprox. 321 m
restaurant
Pizza Pizza
Restaurant aprox. 432 m
supermarket
Profi Floresti
Supermarket aprox. 1076 m
sports-ground
Teren Fotbal Sintetic
Terenuri sport aprox. 1187 m

Detalii despre preț și costuri

Prețul pe piață

Preț cerut: 107.438 €

Preț min. zonă
Preț max. zonă

83% dintre proprietățile similare ca zonă și nr. camere au prețul cerut mai mare. mai multe...

Bine de știut: prețul unei proprietăți este influențat și de alte caracteristici, cum ar fi: vechime, localizare, vecinătăți, suprafață, compartimentare, amenajări, dotări, etc. mai puțin...

Insight premium disponibil după login

Costuri cu achiziția

Fără credit
Credit ipotecar
Noua casă

i

Costuri adiționale mai puțin știute la achiziție: taxe notariale, comisioane etc.

Insight premium disponibil după login

Proprietăți recomandate

Detalii de contact

TAUTULUI RESIDENCE FLORESTI

Teilor Residence Manager

TAUTULUI RESIDENCE FLORESTI
PRO

Abonează-te la newsletter să fii primul care primește cele mai noi recomandări de proprietăți și sfaturi de la experți.

CONTACT

Creează alertă

Salvează căutarea ca să primești pe email ultimele anunțuri publicate

Apartamente noi cu 3 camere de vânzare în Florești, Județul Cluj