COMISION 0 !! Apartament 3 camere, 60 mp, parcare, zona Terra

93.000 €

Florești, Județul Cluj

Nr. cam.:
3
Sup. utilă:
60,07 mp
Etaj:
3 / 3
An constr.:
2024 (Finalizată)
  • • Locație aproximativă

Descriere apartament

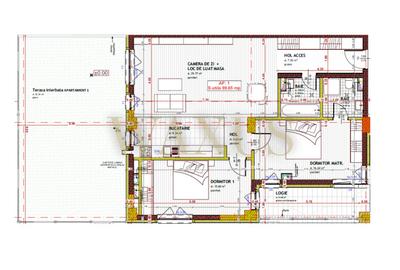
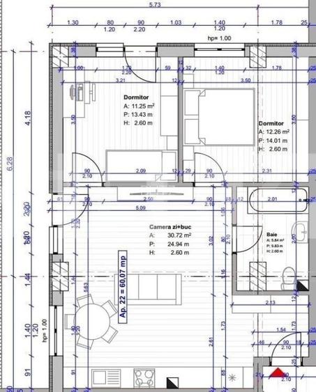
COMISION 0 !! Blitz va propune spre vanzare un apartament de 3 camere aflat intr-un ansamblu rezidential din zona Terra. Apartamentul este situat la etajul parter din 3, avand o suprafata de 60.07 mp. Acesta este compartimentat astfel: 2 dormitoare, 1 bucatarie open space, 1 living, 1 baie. Pretul afisat este la stadiul de semifinisat cu TVA inclus. Se poate achizitiona si complet finisat la pretul de 1900 euro/mp cu tva inclus. De asemenea, exista posibilitatea achizitionarii unui loc de parcare in garajul suprateran la 7200 euro sau a unei parcari exterioare la 5200 euro. Sunt disponibile mai multe suprafete si compartimentari! Va asteptam sa vizionati acest apartament in zona buna si promitem ca nu o sa fiti dezamagiti! Cod ofertă / ID BLITZ: P156323
Citește mai mult Citește mai puțin
Semidecomandat Nemobilat 1 Parcare 1 Garaj Bine întreținut (Bună)

Detalii apartament

ID anunț: XFTI10AH2 Copiat! 271367173 Copiat!
Actualizat în: 31 Martie 2026
Nr. bucătării: 1
Nr. băi: 1
Structură rezistență: Cărămidă
Tip imobil: Bloc de apartamente
Regim înălțime: P+3E

Utilități

Destinație
Rezidențial

Certificat energetic:

Clasa energetică: B

Puncte de interes

Mijloace transport
bus-station
M-Cartier Terra
Stații autobuz aprox. 428 m
bus-station
M-Prof. Dumitru Mocanu
Stații autobuz aprox. 640 m
bus-station
M-Prof. Dumitru Mocanu E
Stații autobuz aprox. 642 m
bus-station
M-Prof. Dumitru Mocanu V
Stații autobuz aprox. 650 m
Recreere
park
Parc
Parcuri aprox. 357 m
restaurant
Pizza Pizza
Restaurant aprox. 479 m
supermarket
Profi
Supermarket aprox. 1024 m
sports-ground
Teren Fotbal Sintetic
Terenuri sport aprox. 1211 m

Detalii despre preț și costuri

Prețul pe piață

Preț cerut: 93.000 €

Preț min. zonă 88.500 €
Preț max. zonă 198.000 €

87% dintre proprietățile similare ca zonă și nr. camere au prețul cerut mai mare. mai multe...

Bine de știut: prețul unei proprietăți este influențat și de alte caracteristici, cum ar fi: vechime, localizare, vecinătăți, suprafață, compartimentare, amenajări, dotări, etc. mai puțin...

Costuri cu achiziția

Fără credit
5.782 RON
Credit ipotecar
7.271 RON
Noua casă
614 RON+ taxe notariale

i

Costuri adiționale mai puțin știute la achiziție: taxe notariale, comisioane etc.

Proprietăți recomandate

Detalii de contact

BLITZ

BLITZ ROMANIA

4.70(108 review-uri)

BLITZ
PRO

Abonează-te la newsletter să fii primul care primește cele mai noi recomandări de proprietăți și sfaturi de la experți.

CONTACT

Creează alertă

Salvează căutarea ca să primești pe email ultimele anunțuri publicate

Apartamente noi cu 3 camere de vânzare în Florești, Județul Cluj