Apartament 3 Camere de Vanzare | SU 60.07 mp | Floresti, zona Terra

90.105 €

Florești, Județul Cluj

Nr. cam.:
3
Sup. utilă:
60,07 mp
Etaj:
4 / 4
An constr.:
2024 (Finalizată)
  • • Comision 0%
  • • Locație aproximativă

Descriere apartament

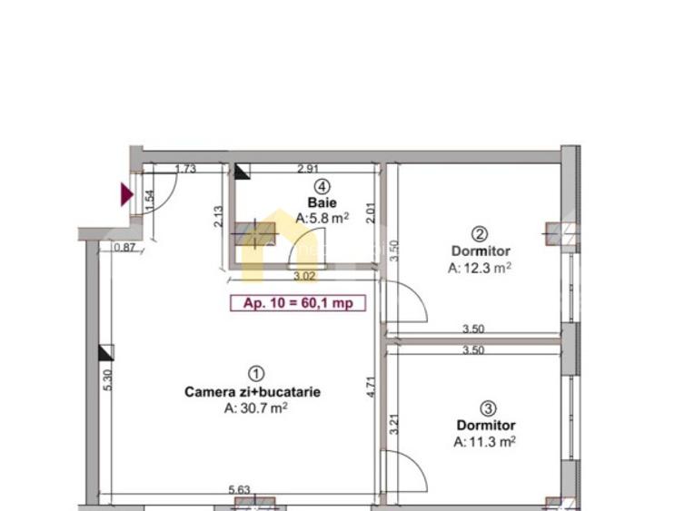
Apartament situat intr-un bloc nou, finalizat in 2024, situat in Floresti, zona Terra. Cu o suprafata utila de 60.07 mp, dispune de 3 camere, o baie spatioasa prevazuta cu cada, orientare Estica, fiind pozitionat pe colt, beneficiaza de priveliste atat la spatiul verde din jurul blocului cat si la strada. Detalii importante: - orientare estica – lumina naturala pe tot parcursul diminetii; - centrala termica proprie; - semifinisat (cu posibilitate de finisare la dorinta cumparatorului); - acces rapid la transport public si facilitati urbane. Ansamblul Green Residence, situat in zona Terra, ofera apartamente luminoase, cu vedere deschisa spre spatii verzi si dealuri, ideale pentru cei care isi doresc liniste si aer curat, departe de agitatia urbana dar usor accesibil. Complexul a fost construit in 2024, folosind materiale de calitate si utilitati moderne, fara probleme tehnice. Apartamentele, disponibile in variante de 1, 2 si 3 camere, se evidentiaza printr-o compartimentare eficienta si un ambient confortabil. Drumul de acces are o latime de 7 metri, dispune de trotuare, spatii verzi amenajate si locuri de parcare pentru fiecare apartament. Strada este asfaltata, iluminata public, iar statia de autobuz Cluj–Floresti se afla la doar 8 minute de mers pe jos. Accesul este facil, realizandu-se din trei directii – iar zona se remarca printr-un cadru natural aerisit, cu regim redus de inaltime si o comunitate linistita. Se accepta plata cash, credit ipotecar sau programul Prima Casa. Pretul cu TVA inclus este 110 000 de euro.
Citește mai mult Citește mai puțin

Detalii apartament

ID anunț: XBOO10193 Copiat! 271603489 Copiat!
Actualizat în: 10 Februarie 2026
Nr. bucătării: 1
Nr. băi: 1
Structură rezistență: Cărămidă
Tip imobil: Bloc de apartamente
Regim înălțime: P+4E

Utilități

Utilități
Curent Apă Canalizare Gaze

Certificat energetic:

Clasa energetică: B

Disponibilitate proprietate:

imediat

Puncte de interes

Mijloace transport
bus-station
M-Cartier Terra
Stații autobuz aprox. 841 m
bus-station
M-Prof. Dumitru Mocanu
Stații autobuz aprox. 1087 m
bus-station
M-Prof. Dumitru Mocanu E
Stații autobuz aprox. 1092 m
bus-station
M-Prof. Dumitru Mocanu V
Stații autobuz aprox. 1095 m
Recreere
park
Parc
Parcuri aprox. 788 m
restaurant
Pizza Pizza
Restaurant aprox. 916 m
supermarket
Profi
Supermarket aprox. 1527 m
sports-ground
Teren Fotbal Sintetic
Terenuri sport aprox. 1682 m

Detalii despre preț și costuri

Prețul pe piață

Preț cerut: 90.105 €

Preț min. zonă 88.500 €
Preț max. zonă 198.000 €

89% dintre proprietățile similare ca zonă și nr. camere au prețul cerut mai mare. mai multe...

Bine de știut: prețul unei proprietăți este influențat și de alte caracteristici, cum ar fi: vechime, localizare, vecinătăți, suprafață, compartimentare, amenajări, dotări, etc. mai puțin...

Costuri cu achiziția

Fără credit
5.644 RON
Credit ipotecar
7.110 RON
Noua casă
599 RON+ taxe notariale

i

Costuri adiționale mai puțin știute la achiziție: taxe notariale, comisioane etc.

Proprietăți recomandate

Detalii de contact

Connect Imobiliare

Florina Nistor Broker Imobiliar

Connect Imobiliare
PRO

Abonează-te la newsletter să fii primul care primește cele mai noi recomandări de proprietăți și sfaturi de la experți.

CONTACT

Creează alertă

Salvează căutarea ca să primești pe email ultimele anunțuri publicate

Apartamente noi cu 3 camere de vânzare în Florești, Județul Cluj