Apartament cu 3 camere/67mp/in curs de finisare/imobil calitativ/CF.

135.500 €

Florești, Județul Cluj

Nr. cam.:
3
Sup. utilă:
66,75 mp
Etaj:
1 / 4
An constr.:
2024 (Finalizată)
  • • Locație aproximativă

Descriere apartament

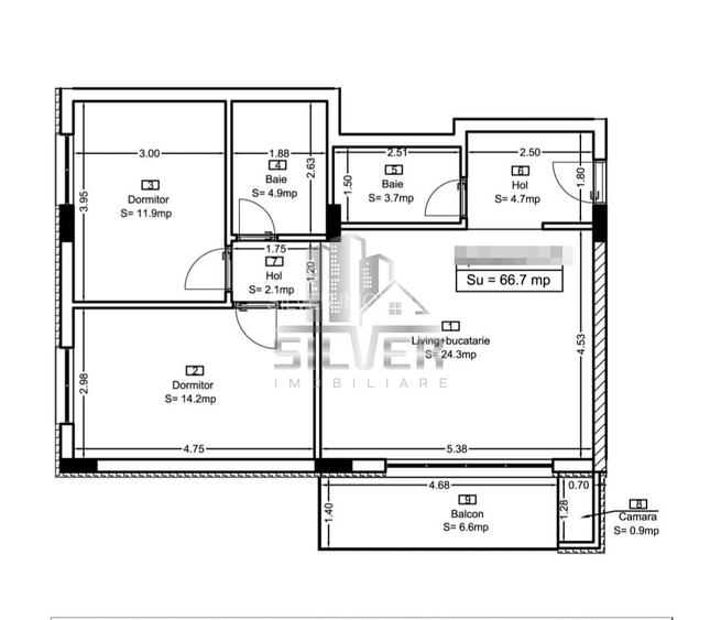
Silver Imobiliare ofera spre vanzare apartament cu 3 camere situat in Floresti, zona strazii Catanelor la etaj 1 intr-un imobil nou dispus pe 4 niveluri dotat cu lift de 6 persoane. Este orientat sud-vest, are suprafata utila de 66.75 mp utili+balcon de 7 mp fiind compartimentat astfel: - camera de zi spatioasa impreuna cu bucataria; - 2 dormitoare; - 2 bai; - balcon de 7 mp prevazut cu spatiu ptr amenajare camara cu acces din camera de zi; - hol acces; La nivel de constructie si finisaje imobilul se prezinta astfel: - fundatii, stalpi si plansee din beton armat; - zidarie din caramida tip Cemacon de 24 cm; - termosistem cu polistiren de 10 cm/eps 80; - pereti interiori zugraviti cu vopsea lavabila; - pardosea cu gresie si parchet laminat; -usi interioare din Mdf tip Porta Doors; - aparataje electrice; -geamuri termoizolante din Pvc cu 3 foi de sticla/4 anotimpuri/5 camere cu profil tip Rehau; - sistem de incalzire in pardosea cu centrala termica proprie in condensare marca Saunier Duval; - usa la intrare metalica/antiefractie cu 8 puncte de inchidere; - lift de 6 persoane tip KLEEMANN; - acces parcare securizat; - sistem supraveghere video; - bransare si contorizare la toate utiliatatile necesare; La cerere se poate achizitiona parcare exterioara la pretul de 6.000 Euro sau subterana la pretul de 7.500/8.000 Euro, in functie de pozitionare. PRETURILE MENTIONATE IN ANUNT CONTIN TVA-UL DE 21%. Pentru alte detalii sau programarea unei vizionari contactati-ne cu incredere!
Citește mai mult Citește mai puțin
Confort 1 Semidecomandat Nemobilat 1 Balcon / Terasă / Logie Centrală proprie Încălzire prin pardoseală

Detalii apartament

ID anunț: XF6T1005S Copiat! 271919725 Copiat!
Actualizat în: 02 Aprilie 2026
Suprafață construită: 82 mp
Nr. bucătării: 1
Nr. băi: 2
Structură rezistență: Cărămidă
Tip imobil: Bloc de apartamente
Regim înălțime: D+P+4E

Utilități

Pereți
Vopsea lavabilă
Podele
Gresie Parchet
Ușă intrare
Metal
Izolații termice
Exterior
Contorizare
Apometre Contor gaz
Diverse
Telecomandă poartă garaj
Alte spații utile
Debara
Facilități imobil
Interfon Lift
Utilități
Curent Apă Canalizare CATV Gaze
Internet
Cablu
Servicii imobil
Supraveghere video
Amenajare străzi
Iluminat stradal Mijloace de transport în comun Asfaltate
Comision
standard

Disponibilitate proprietate:

data_properties.property_availability.Imediat

Puncte de interes

Mijloace transport
bus-station
M-Cartier Terra
Stații autobuz aprox. 314 m
bus-station
M-Prof. Dumitru Mocanu
Stații autobuz aprox. 537 m
bus-station
M-Prof. Dumitru Mocanu E
Stații autobuz aprox. 540 m
bus-station
M-Prof. Dumitru Mocanu V
Stații autobuz aprox. 546 m
Recreere
park
Parc
Parcuri aprox. 429 m
restaurant
Pizza Pizza
Restaurant aprox. 540 m
supermarket
Profi
Supermarket aprox. 1024 m
sports-ground
Teren Fotbal Sintetic
Terenuri sport aprox. 1233 m

Detalii despre preț și costuri

Prețul pe piață

Preț cerut: 135.500 €

Preț min. zonă 88.500 €
Preț max. zonă 198.000 €

50% dintre proprietățile similare ca zonă și nr. camere au prețul cerut mai mare. mai multe...

Bine de știut: prețul unei proprietăți este influențat și de alte caracteristici, cum ar fi: vechime, localizare, vecinătăți, suprafață, compartimentare, amenajări, dotări, etc. mai puțin...

Costuri cu achiziția

Fără credit
7.557 RON
Credit ipotecar
9.245 RON
Noua casă
831 RON+ taxe notariale

i

Costuri adiționale mai puțin știute la achiziție: taxe notariale, comisioane etc.

Proprietăți recomandate

Detalii de contact

SILVER IMOBILIARE

Dorel Lacatus Senior Broker

SILVER IMOBILIARE
PRO

Abonează-te la newsletter să fii primul care primește cele mai noi recomandări de proprietăți și sfaturi de la experți.

CONTACT

Creează alertă

Salvează căutarea ca să primești pe email ultimele anunțuri publicate

Apartamente noi cu 3 camere de vânzare în Florești, Județul Cluj