Apartament modern mobilat cu 3 camere zona Teilor 67mp

124.000 €

Florești, Județul Cluj

Nr. cam.:
3
Sup. utilă:
67 mp
Etaj:
1 / 3
Tip prop.:
Bloc de apartamente
  • • Locație aproximativă

Descriere apartament

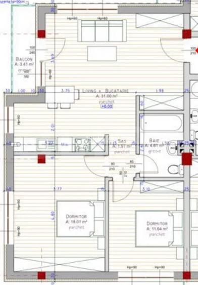
Blitz Imobiliare va ofera spre vanzare un apartament ultrafinisat si mobilat cu 3 camere, compus din 2 dormitoare si un living situat in Floresti , strada Teilor. Suprfata imobilului este de 67,2 mp Compartimentare: 2 dormitoare, bucatarie open-space cu living, baie cu dus, balcon - usa metalica la intrare - instalatie electrica/termica noua - dispune de interfon Imobilul se vinde precum se prezinta in poze. Blitz va propune spre vanzare un apartament modern cu 3 camere, situat la etajul 2 al unui imobil cu regim de inaltime D+P+4, finalizat in 2022, amplasat intr-o zona aerisita din zona Teilor. Apartamentul are o suprafata utila de 67 mp, un balcon deschis de 3,4m2, fiind eficient compartimentat astfel: living luminos cu bucatarie deschisa, 2 dormitoare si o baie. Imobilul beneficiaza de finisaje premium, fiind complet mobilat si utilat cu electrocasnice de calitate superioara. La cerere, se poate inchiria un loc de parcare in subteran pentru un cost de 200 ron pe luna. Proprietatea este ideala pentru cei care isi doresc liniste, confort si un stil de viata modern, intr-o zona moderna a orasului. Cod oferta / ID BLITZ: P127711
Citește mai mult Citește mai puțin
Semidecomandat Nemobilat 1 Balcon / Terasă / Logie

Detalii apartament

ID anunț: XFTI10CSL Copiat! 274778609 Copiat!
Actualizat în: 27 Februarie 2026
Nr. băi: 1
Regim înălțime: D+P+3E

Utilități

Utilități
Curent Apă Canalizare Gaze
Comision
%

Disponibilitate proprietate:

data_properties.property_availability.imediat

Puncte de interes

Mijloace transport
bus-station
Cetate
Stații autobuz aprox. 841 m
bus-station
Teilor
Stații autobuz aprox. 863 m
bus-station
Cetate
Stații autobuz aprox. 864 m
bus-station
Stejarului
Stații autobuz aprox. 920 m
Recreere
park
Parc
Parcuri aprox. 703 m
cafe
Classic Caffe
Cafenea aprox. 756 m
sports-ground
Teren Fotbal Sintetic
Terenuri sport aprox. 1282 m
supermarket
Profi
Supermarket aprox. 1309 m

Detalii despre preț și costuri

Prețul pe piață

Preț cerut: 124.000 €

Preț min. zonă 87.500 €
Preț max. zonă 197.999 €

67% dintre proprietățile similare ca zonă și nr. camere au prețul cerut mai mare. mai multe...

Bine de știut: prețul unei proprietăți este influențat și de alte caracteristici, cum ar fi: vechime, localizare, vecinătăți, suprafață, compartimentare, amenajări, dotări, etc. mai puțin...

Costuri cu achiziția

Fără credit
7.162 RON
Credit ipotecar
8.801 RON
Noua casă
772 RON+ taxe notariale

i

Costuri adiționale mai puțin știute la achiziție: taxe notariale, comisioane etc.

Proprietăți recomandate

Detalii de contact

BLITZ

BLITZ ROMANIA

4.70(108 review-uri)

BLITZ
PRO

Abonează-te la newsletter să fii primul care primește cele mai noi recomandări de proprietăți și sfaturi de la experți.

CONTACT

Creează alertă

Salvează căutarea ca să primești pe email ultimele anunțuri publicate

Apartamente cu 3 camere de vânzare în Florești, Județul Cluj