Apartament 4 camere de vanzare in Floresti

230.000 €

Florești, Județul Cluj

Nr. cam.:
4
Sup. utilă:
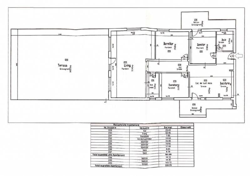
161,09 mp
Etaj:
3 / 4
An constr.:
2009
  • • Locație aproximativă

Descriere apartament

Penthouse 161.09mp utili + terasa de 143.72mp in Floresti Avem placerea de a va oferi spre vanzare acest penthouse cu terasa superba de 143mp amplasat intr-o zona linistita, in apropiere de puncte de interes cotidian cum ar fi mijloace de transport in comun, supermarketuri, diverse magazine, scoala, gradinita, sali de fitness, spatii verzi, parc cu loc de joaca pentru copii si altele. Proprietatea iese in evidenta atat prin suprafata foarte generoasa dar si prin calitatea materialelor si a investitiilor facute. Avand suprafata utila de 161.09mp apartamentul are urmatoarea compartimentare: - 1 bucatarie open space cu locul de luat masa; - 1 living generos cu iesire pe terasa; - 3 dormitoare spatioase; - 2 bai; - 1 terasa de 143mp; - 2 balcoane de aprox. 14.5mp fiecare; - 1 debara/spatiu depozitare; Confortul termic este asigurat de sistemul complet de incalzire in pardoseala UPONOR cu instalatie separata pe fiecare incapere, centrala termica proprie VIESSMANN de ultima generatie si o instalatie de aer conditionat. Apartamentul se preda la stadiul de semifinisat avand peretii placati cu rigips hidro, gletuiti si pregatiti pentru zugravit, izolatie cu vata bazaltica pentru protectie fonica si termica atat pe peretii exteriori cat si pe tot tavanul, sapa din THERMOBETON cu granule de polistiren cimentat pentru o izolatie de exceptie a pardoselii, ferestre termoizolante din PVC REHAU, instalatii sanitare si electrice schimbate integral. Orientarea E-S-V asigura aport maxim de lumina si confort termic sporit pe parcursul sezonului rece dar totodata si o panorama superba asupra naturii si a imprejurimilor. Recomandam aceasta proprietate celor care doresc sa locuiasca intr-un spatiu foarte generos, avand o terasa spatioasa si o priveliste de exceptie, neavand grija intretinerii spatiului verde. Contactati-ne cu incredere pentru detalii, vizionari si consultanta imobiliara de calitate! O zi frumoasa, Echipa Napoca Imobiliare! ID oferta: 138410
Citește mai mult Citește mai puțin
Confort lux Semidecomandat 2 Balcoane / Terase / Logii

Detalii apartament

ID anunț: X57Q1096O Copiat! 247843962 Copiat!
Actualizat în: 04 Septembrie 2025
Suprafață construită: 330 mp
Nr. bucătării: 1
Nr. băi: 2
Tip imobil: Bloc de apartamente
Regim înălțime: P+4E

Utilități

Utilități
Curent Apă Canalizare Gaze CATV Telefon
Internet
Fibră optică
Ușă intrare
Metal
Ferestre cu geam termopan
PVC
Comision
2% + TVA

Puncte de interes

Mijloace transport
bus-station
Eroilor E
Stații autobuz aprox. 284 m
bus-station
Stejarului
Stații autobuz aprox. 305 m
bus-station
Luxor V
Stații autobuz aprox. 320 m
bus-station
Eroilor V
Stații autobuz aprox. 325 m
Recreere
sports-ground
Teren Fotbal Sintetic
Terenuri sport aprox. 295 m
cafe
Adveture of Henry
Cafenea aprox. 397 m
supermarket
Profi Floresti
Supermarket aprox. 579 m
park
Parc
Parcuri aprox. 785 m

Detalii despre preț și costuri

Prețul pe piață

Preț cerut: 230.000 €

Preț min. zonă 99.000 €
Preț max. zonă 280.000 €

75% dintre proprietățile similare ca zonă și nr. camere au prețul cerut mai mare. mai multe...

Bine de știut: prețul unei proprietăți este influențat și de alte caracteristici, cum ar fi: vechime, localizare, vecinătăți, suprafață, compartimentare, amenajări, dotări, etc. mai puțin...

Costuri cu achiziția

Fără credit
10.795 RON
Credit ipotecar
12.884 RON
Noua casă
1.312 RON+ taxe notariale

i

Costuri adiționale mai puțin știute la achiziție: taxe notariale, comisioane etc.

Proprietăți recomandate

Detalii de contact

Napoca Imobiliare

Admin

3.44(14 review-uri)

Napoca Imobiliare
PRO

Abonează-te la newsletter să fii primul care primește cele mai noi recomandări de proprietăți și sfaturi de la experți.

CONTACT

Creează alertă

Salvează căutarea ca să primești pe email ultimele anunțuri publicate

Apartamente cu 4+ camere de vânzare în Florești, Județul Cluj