Comision 0%! Apartament in vila, 4 camere, 92 mp, gradina de 50 mp, zona Terra

235.000 €

Florești, Județul Cluj

Nr. cam.:
4
Sup. utilă:
92 mp
Etaj:
1 / 1
An constr.:
2024 (Finalizată)
  • • Exclusivitate
  • • Locație aproximativă

Descriere apartament

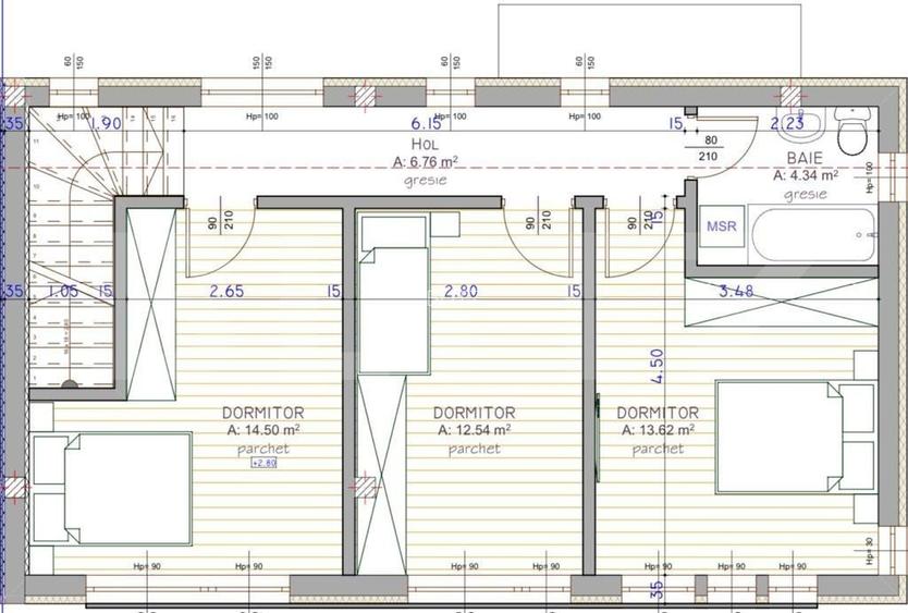
Blitz ofera spre vanzare Duplexuri pozitionate in zona Terra. Regim de inaltime P + E, casele au o suprafata utila de 92 mp si gradina de aprox 50 mp, in functie de unitatea aleasa. Constructia este din caramida, izolatie exterioara si acoperis din tabla. Predare caselor se face la stadiul de finisat ( gresie/ parchet/ peretii facuti dupa bunul plac ), usi de interior, baile facute complet ( la alegere daca nu sunt deja facute ), corpuri de iluminat, prize, intrerupatoare, bucatarie la alegere la comanda inclusa in pret, centrala termica. Accesul va fi privat cu bariera sau poarta. Va fi amenajat si un mic spatiu de joaca pentru copii. Casa este predata si cu mobila, electronice, electrocasnice etc, conform pozelor. Utilitati: apa, gaz, curent , canalizare. Terenul se va preda delimitat si imprejmuit cu gard si o parcare amenajata. Casa poate fi predata si cu mobila, electronice, electrocasnice etc. Utilitati: apa, gaz, curent , canalizare. Cod oferta / ID BLITZ: P93318
Citește mai mult Citește mai puțin
Semidecomandat Mobilat Mobilat 1 Balcon / Terasă / Logie 1 Parcare 1 Parcare / Garaj / Parcare subterană

Detalii apartament

ID anunț: XFTI102J9 Copiat! 261092168 Copiat!
Actualizat în: 06 Martie 2026
Nr. băi: 2
Structură rezistență: Beton
Tip imobil: Casă/Vilă
Regim înălțime: P+1E

Utilități

Izolații termice
Exterior
Comision
%

Disponibilitate proprietate:

Azi

Puncte de interes

Mijloace transport
bus-station
M-Cartier Terra
Stații autobuz aprox. 667 m
bus-station
M-Prof. Dumitru Mocanu
Stații autobuz aprox. 817 m
bus-station
M-Prof. Dumitru Mocanu E
Stații autobuz aprox. 818 m
bus-station
Eroilor V
Stații autobuz aprox. 825 m
Recreere
park
Parc
Parcuri aprox. 118 m
restaurant
Pizza Pizza
Restaurant aprox. 236 m
supermarket
Profi Floresti
Supermarket aprox. 875 m
sports-ground
Teren Fotbal Sintetic
Terenuri sport aprox. 1000 m

Detalii despre preț și costuri

Prețul pe piață

Preț cerut: 235.000 €

Preț min. zonă 93.000 €
Preț max. zonă 280.000 €

91% dintre proprietățile similare ca zonă și nr. camere au prețul cerut mai mic. mai multe...

Bine de știut: prețul unei proprietăți este influențat și de alte caracteristici, cum ar fi: vechime, localizare, vecinătăți, suprafață, compartimentare, amenajări, dotări, etc. mai puțin...

Costuri cu achiziția

Fără credit
10.968 RON
Credit ipotecar
13.078 RON
Noua casă
1.337 RON+ taxe notariale

i

Costuri adiționale mai puțin știute la achiziție: taxe notariale, comisioane etc.

Proprietăți recomandate

Detalii de contact

BLITZ

BLITZ ROMANIA

4.70(105 review-uri)

BLITZ
PRO

Abonează-te la newsletter să fii primul care primește cele mai noi recomandări de proprietăți și sfaturi de la experți.

CONTACT

Creează alertă

Salvează căutarea ca să primești pe email ultimele anunțuri publicate

Apartamente noi cu 4+ camere de vânzare în Florești, Județul Cluj