Apartament cu 2 camere, finisat, zona Cetatii

90.705 €

Florești, Județul Cluj

Nr. cam.:
2
Sup. utilă:
43 mp
Etaj:
1 / 4
An constr.:
2026 (În construcție)
  • • Locație exactă

Descriere apartament

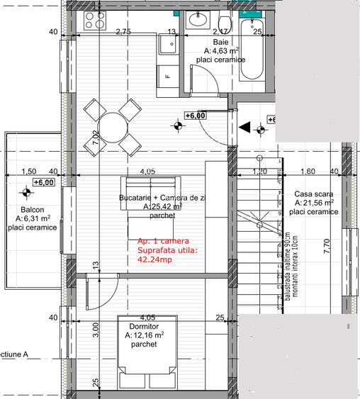
Ofertă excepțională situată într-o zonă cu potențial, în ansamblul rezidențial nou, pe Strada Cetății, Florești. Imobilul este certificat NZEB (Near Zero Energy Building), garantând eficiență energetică maximă și costuri reduse la întreținere.EDIL Florești oferă spre vânzare un apartament cu 2 camere, situat la etajul 1 din 4, într-un bloc dotat cu lift. Apartamentul este confort 1 semidecomandat, cu o suprafață utilă de 42 mp și orientare Vest. Se predă complet finisat cu materiale premium, incluzând faiantă și gresie modernă, parchet laminat. Beneficiază de centrală proprie cu pompă de căldură pentru încălzire în pardoseală și funcție de răcire, asigurând confort optim pe tot parcursul anului. Dispune de un balcon generos.Compartimentare: hol intrare, living cu bucătărie open space, dormitor, baie.Ansamblul este amplasat în apropiere de Carrefour, Profi, Mega Image și stații de autobuz. Beneficiază de 3000 mp spații verzi amenajate, incluzând mau multe parcuri de joacă, lift și interfon. La parterul primului bloc va funcționa și un spațiu comercial.Dacă vă interesează această ofertă sau pentru alte opțiuni de apartamente ( 2, 3 camere) în acest proiect, nu ezitați să ne contactați telefonic sau la sediul nostru: EDIL Florești, Str. Eroilor, Nr. 25, Ap. 15 (et. 1), Florești.
Citește mai mult Citește mai puțin
Confort 1 Semidecomandat Parțial mobilat 1 Balcon / Terasă / Logie Curte comună Centrală proprie Încălzire prin pardoseală Bine întreținut (Bună)

Detalii apartament

ID anunț: XEJQ000NB Copiat! 270465160 Copiat!
Actualizat în: 09 Martie 2026
Suprafață utilă totală: 49 mp
Nr. bucătării: 1
Nr. băi: 1
Structură rezistență: Beton
Tip imobil: Bloc de apartamente
Regim înălțime: P+4E

Utilități

Destinație
Rezidențial
Pereți
Faianță Vopsea lavabilă
Podele
Gresie Parchet
Ușă intrare
Metal
Uși interior
Lemn
Izolații termice
Exterior
Ferestre cu geam termopan
PVC
Contorizare
Contor gaz Apometre
Diverse
Senzor de fum
Facilități imobil
Spații agrement Lift Interfon Acoperiș
Utilități
CATV Gaze Telefon Curent Canalizare Apă
Internet
Fibră optică
Servicii imobil
Supraveghere video
Amenajare străzi
Asfaltate Iluminat stradal Mijloace de transport în comun
Comision
2%

Certificat energetic:

Clasa energetică: A

Vecinătăți:

blocuri,magazine,parcuri,statiide autobus

Puncte de interes

Mijloace transport
bus-station
Luxor N
Stații autobuz aprox. 56 m
bus-station
Luxor V
Stații autobuz aprox. 113 m
bus-station
Sub Cetate E
Stații autobuz aprox. 501 m
bus-station
Sub Cetate V
Stații autobuz aprox. 527 m
Recreere
restaurant
Atelierul de Pizza
Restaurant aprox. 60 m
sports-ground
Teren Fotbal Sintetic
Terenuri sport aprox. 401 m
supermarket
Profi Floresti
Supermarket aprox. 645 m
park
Parc
Parcuri aprox. 806 m

Detalii despre preț și costuri

Prețul pe piață

Preț cerut: 90.705 €

Preț min. zonă
Preț max. zonă

55% dintre proprietățile similare ca zonă și nr. camere au prețul cerut mai mic. mai multe...

Bine de știut: prețul unei proprietăți este influențat și de alte caracteristici, cum ar fi: vechime, localizare, vecinătăți, suprafață, compartimentare, amenajări, dotări, etc. mai puțin...

Insight premium disponibil după login

Costuri cu achiziția

Fără credit
Credit ipotecar
Noua casă

i

Costuri adiționale mai puțin știute la achiziție: taxe notariale, comisioane etc.

Insight premium disponibil după login

Proprietăți recomandate

Detalii de contact

EDIL

Marius Coprean AGENT

EDIL
PRO

Abonează-te la newsletter să fii primul care primește cele mai noi recomandări de proprietăți și sfaturi de la experți.

CONTACT

Creează alertă

Salvează căutarea ca să primești pe email ultimele anunțuri publicate

Apartamente cu 2 camere de vânzare în Florești, Județul Cluj