1

Apartament 3 Camere | 64 mp | Curte 60 mp | Parcare | Terra Floresti

115.000 €

Florești, Județul Cluj

Nr. cam.:
3
Sup. utilă:
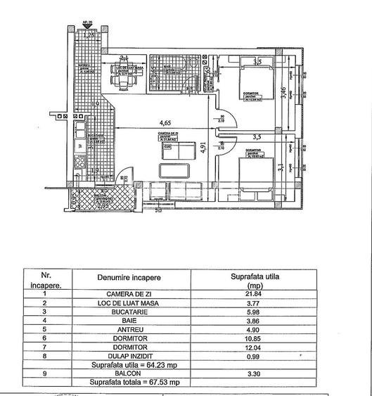
64,23 mp
Etaj:
Parter / 4
An constr.:
2012 (Finalizată)
  • • Comision 0%
  • • Exclusivitate
  • • Locație aproximativă

Descriere apartament

ID: OFC 2849490 Oferta in Reprezentare Exclusiva cu Comision 0% pentru cumparator. Va oferim spre vanzare un apartament de 3 camere semidecomandat, situat in zona Terra, mai exact pe strada Sesul de Sus. Proprietatea este ideala pentru o familie care isi doreste confort, intimitate, si acces facil catre toate punctele de interes din zona. Locuinta are o suprafata utila de 64,23 mp si este compartimentata astfel: - 1 living spatios impreuna cu bucataria si cu iesire in curte - 2 dormitoare - 1 baie - 1 hol de acces - 1 balcon de 3,30 mp Curtea are o suprafata de aproximativ 60 mp, este amenajata, contine si un foisor, spatiu verde, fiind ideala pentru relaxare sau momente petrecute impreuna cu familia si prietenii. Apartamentul se vinde partial mobilat, utilat si cu un loc de parcare exterior, inclus in pretul afisat. Confortul termic este asigurat de centrala termica proprie si izolatia exterioara, iar la nivelul finisajelor regasim: parchet, geamuri termopan, gresie, faianta, aer conditionat, usa de metal la intare, vopsea lavabila, etc. Proprietatea este amplasta in imediata vecinatate a multor puncte majore de interes: statie de autobuz, gradinita, supermarket, diferite magazine, farmacie, cabinete medicale, restaurante, etc. Pentru mai multe detalii sau programarea unei vizionari, nu ezitati sa ne contactati! ID: OFC 2849490
Citește mai mult Citește mai puțin
Confort 1 Semidecomandat Mobilat Parțial mobilat 1 Balcon / Terasă / Logie Aer condiționat Calorifere Centrală proprie 1 Parcare Bine întreținut (Bună)

Detalii apartament

ID anunț: XEBM10167 Copiat! 274188702 Copiat!
Actualizat în: 25 Februarie 2026
Suprafață construită: 75 mp
Nr. bucătării: 1
Nr. băi: 1
Structură rezistență: Cărămidă
Tip imobil: Bloc de apartamente
Regim înălțime: P+4E

Utilități

Destinație
Rezidențial
Pereți
Faianță Vopsea lavabilă
Podele
Gresie Parchet
Ușă intrare
Metal
Uși interior
Lemn
Izolații termice
Exterior
Contorizare
Apometre Contor gaz
Bucătărie
Mobilată Utilată
Electrocasnice
Aragaz Frigider Hotă Mașină de spălat Mașină spălat vase TV
Facilități imobil
Interfon
Utilități
Curent Apă Canalizare CATV Gaze Telefon
Internet
Cablu
Amenajare străzi
Iluminat stradal Mijloace de transport în comun Asfaltate
Comision
0%

Disponibilitate proprietate:

Imediat

Puncte de interes

Mijloace transport
bus-station
M-Cartier Terra
Stații autobuz aprox. 429 m
bus-station
M-Prof. Dumitru Mocanu
Stații autobuz aprox. 655 m
bus-station
M-Prof. Dumitru Mocanu E
Stații autobuz aprox. 659 m
bus-station
M-Prof. Dumitru Mocanu V
Stații autobuz aprox. 665 m
Recreere
park
Parc
Parcuri aprox. 424 m
restaurant
Pizza Pizza
Restaurant aprox. 548 m
supermarket
Profi Floresti
Supermarket aprox. 1090 m
sports-ground
Teren Fotbal Sintetic
Terenuri sport aprox. 1280 m

Detalii despre preț și costuri

Prețul pe piață

Preț cerut: 115.000 €

Preț min. zonă 85.000 €
Preț max. zonă 195.000 €

68% dintre proprietățile similare ca zonă și nr. camere au prețul cerut mai mare. mai multe...

Bine de știut: prețul unei proprietăți este influențat și de alte caracteristici, cum ar fi: vechime, localizare, vecinătăți, suprafață, compartimentare, amenajări, dotări, etc. mai puțin...

Costuri cu achiziția

Fără credit
6.816 RON
Credit ipotecar
8.417 RON
Noua casă
726 RON+ taxe notariale

i

Costuri adiționale mai puțin știute la achiziție: taxe notariale, comisioane etc.

Proprietăți recomandate

Detalii de contact

OFICIAL Imobiliare

Dumitru Marius Sales Associate

OFICIAL Imobiliare
PRO

Abonează-te la newsletter să fii primul care primește cele mai noi recomandări de proprietăți și sfaturi de la experți.

CONTACT

Creează alertă

Salvează căutarea ca să primești pe email ultimele anunțuri publicate

Apartamente cu 3 camere de vânzare în Florești, Județul Cluj