3

Apartament 3 camere/76mp/Terasa 73mp/garaj.

195.000 €

Florești, Județul Cluj

Nr. cam.:
3
Sup. utilă:
75,6 mp
Etaj:
4 / 4
An constr.:
2021 (Finalizată)
  • • Locație aproximativă

Descriere apartament

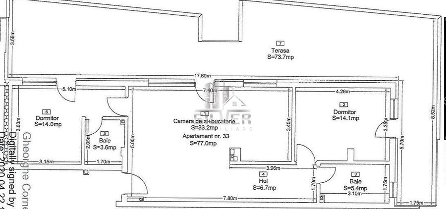
Silver Imobiliare ofera spre vanzare apartament cu 3 camere situat in Floresti, zona Strazii Sub Cetate la etaj 4 intr-un imobil dispus, D+P+4E prevazut cu Lift tip Kleemann la 5 minute de Baza Sportiva si Parcul Poligon. Apartamentul este orientat sud-est, cu suprafata utila de 75.6 mp+terasa de 73 mp, fiind compartimentat astfel: - camera de zi spatioasa impreuna cu bucataria; - 2 dormitoare (1 dormitor beneficiaza de baie proprie) - 2 bai (1 baie este prevazuta cu geam) - terasa cu panorama deosebita cu acces din fiecare camera. La nivel de constructie, finisaje si inbunatatiri apartamentul beneficiaza de finisaje si electrocasnice de calitate superioara, dupa cum urmeaza: - imobil construit cu zidarie din caramida; - termosistem cu polistiren de 10 cm; - izolatie peste etaj cu vata bazaltica de 25 cm; - geamuri termoizolante din Pvc cu 3 foi de sticla/5 camere; - pereti interiori zugraviti cu vopsea lavabila; - usi interioare tip Filomuro; - pardosea cu parchet din stejar dublu stratificat; - bai finisate cu microciment; - feronerii premium ( grohe, hansgrohe, kludi, franke ) - mobillier bucatarie personalizat tip MDF vopsit; - mobilier living MDF infoliat - electrocasnice premium ( electrolux, bosch ) - 3 SISTEME DE VENTILATIE MELTEM M-WRG-II +GATEWAY ( controlabil prin aplicatie ) - aparat de aer conditionat DAIKIN Stylish 18k BTU; - masina de spalat rufe/uscator rufe BOSCH; - panou electric imbunatatit - sistem de incalzire in pardosea cu centrala termica proprie in condensare tip Saunier Duval; SE VINDE COMPLET MOBILAT SI UTILAT, INCLUSIV TV. PARCAREA SUBTERANA NU ESTE INCLUSA IN PRETUL LISTAT, SE POATE ACHIZITIONA CONTRACOST LA PRETUL DE 8.000 Euro. Pentru alte detalii sau programarea unei vizionari, contactati-ne cu incredere!
Citește mai mult Citește mai puțin
Confort 1 Semidecomandat Mobilat Aer condiționat Centrală proprie Încălzire prin pardoseală 1 Garaj

Detalii apartament

ID anunț: XF6T10067 Copiat! 274419270 Copiat!
Actualizat în: 06 Aprilie 2026
Suprafață construită: 91 mp
Nr. bucătării: 1
Nr. băi: 2
Structură rezistență: Cărămidă
Tip imobil: Bloc de apartamente
Tip tranzacție: De vânzare prin agent
Regim înălțime: D+P+4E
Modalitate de plată: Cash sau Credit

Utilități

Pereți
Tapet Vopsea lavabilă
Podele
Parchet
Ușă intrare
Metal
Izolații termice
Exterior
Ferestre cu geam termopan
PVC
Contorizare
Apometre Contor gaz
Bucătărie
Mobilată Utilată
Electrocasnice
Aragaz Frigider Mașină de spălat Mașină spălat vase TV
Diverse
Jacuzzi Telecomandă poartă garaj
Facilități imobil
Acoperiș Interfon Lift Spații agrement
Utilități
Curent Apă Canalizare CATV Gaze
Internet
Cablu
Servicii imobil
Supraveghere video
Amenajare străzi
Asfaltate
Comision
standard

Certificat energetic:

Clasa energetică: B

Vecinătăți:

Baza Sportiva, Parcul Poligon, Centura spre Vivo.

Disponibilitate proprietate:

Imediat

Puncte de interes

Mijloace transport
bus-station
Tautiului S
Stații autobuz aprox. 280 m
bus-station
Tautiului N
Stații autobuz aprox. 298 m
bus-station
Sub Cetate V
Stații autobuz aprox. 569 m
bus-station
Poligonului V
Stații autobuz aprox. 579 m
Recreere
park
Parc
Parcuri aprox. 156 m
bar
City Cafe
Bar aprox. 811 m
supermarket
Diana
Supermarket aprox. 1232 m
sports-ground
Teren Fotbal Sintetic
Terenuri sport aprox. 1405 m

Istoricul prețurilor

Acces la informații premium după autentificare
Login Gratuit

Detalii despre preț și costuri

Prețul pe piață

Preț cerut: 195.000 €

Preț min. zonă
Preț max. zonă

89% dintre proprietățile similare ca zonă și nr. camere au prețul cerut mai mic. mai multe...

Bine de știut: prețul unei proprietăți este influențat și de alte caracteristici, cum ar fi: vechime, localizare, vecinătăți, suprafață, compartimentare, amenajări, dotări, etc. mai puțin...

Acces la informații premium după autentificare
Login Gratuit

Costuri cu achiziția

Fără credit
Credit ipotecar
Noua casă

i

Costuri adiționale mai puțin știute la achiziție: taxe notariale, comisioane etc.

Acces la informații premium după autentificare
Login Gratuit

Proprietăți similare

Apartament cu 2 camere semidecomandat, mobilat în Florești
178.000 €
Județul Cluj, Florești
2 camere
53 mp
Etaj 4
Apartament cu 3 camere semidecomandat în Florești
179.000 €
Județul Cluj, Florești
3 camere
73 mp
Etaj 1
Apartament cu 3 camere semidecomandat în Florești
186.000 €
Județul Cluj, Florești
3 camere
87 mp
Etaj 4 / 11

Detalii de contact

SILVER IMOBILIARE

Dorel Lacatus Senior Broker

SILVER IMOBILIARE
PRO

Abonează-te la newsletter să fii primul care primește cele mai noi recomandări de proprietăți și sfaturi de la experți.

CONTACT

Creează alertă

Salvează căutarea ca să primești pe email ultimele anunțuri publicate

Apartamente noi cu 3 camere de vânzare în Florești, Județul Cluj