REA1024706 2 Camere - Bloc Nou Fundeni-Dobroesti

96.000 €

Fundeni, Județul Ilfov

Nr. cam.:
2
Sup. utilă:
58 mp
Etaj:
1 / 3
An constr.:
2025 (Finalizată)
  • • Locație aproximativă
  • • Vizionare prin apel video

Descriere apartament

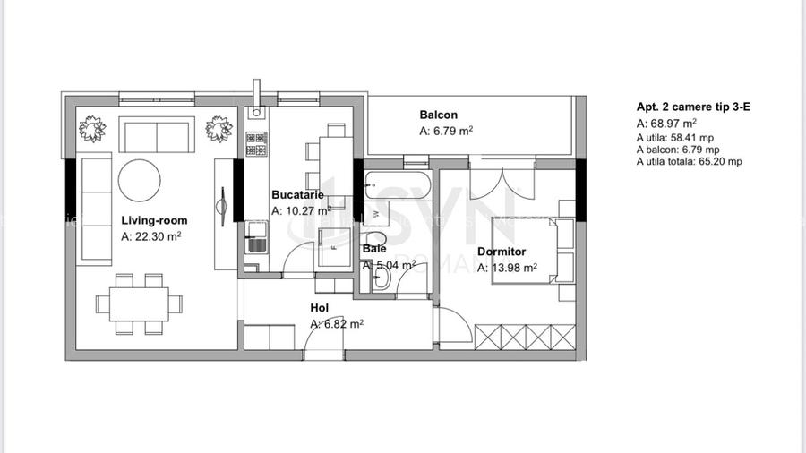
Avem deosebita placere de a va oferi spre vanzare un apartament de 2 camere aflat in zona Fundeni-Dobroesti. Apartamentul este situat la etajul 1 al unui imobil cu 3 etaje finalizat in anul 2025 (imobilul detine lift). Apartamentul dispune de o impartire decomandata, este compus din: hol, living, bucatarie separata, dormitor, baie si terasa, astfel suprafata totala a apartamentului fiind de 65,20 mp. Imobilul are o structura de rezistenta din beton armat, peretii exteriori si interiori sunt realizati din caramida Porotherm, izolatie termica exterioara din polistiren de 10 cm grosime. Apartamentul beneficiaza de finisaje de calitate superioara: parchet, gresie, faianta, centrala termica individuala marca Romstal, ferestre termopan cu tamplarie PVC Salamander, usa metalica, interfon. Separat, se poate achizitiona si 1 loc de parcare exterior la pretul de 3000 euro. Nu se accepta plata prin rate la dezvoltator. In vecinatate se afla complexul comercial Dragonul Rosu, Scoala Campus, Institutul clinic Fundeni, gradinite, restaurante, farmacii si magazine. Pentru mai multe detalii si vizionari va stau la dispozitie.
Citește mai mult Citește mai puțin
Confort 1 Decomandat Acceptă animale de companie 1 Balcon / Terasă / Logie Aer condiționat Calorifere Centrală proprie 1 Parcare

Detalii apartament

ID anunț: X658006KL Copiat! 275276749 Copiat!
Actualizat în: 19 Martie 2026
Suprafață utilă totală: 65 mp
Suprafață construită: 69 mp
Nr. bucătării: 1
Nr. băi: 1
Structură rezistență: Beton
Tip imobil: Bloc de apartamente
Regim înălțime: P+3E

Utilități

Destinație
Rezidențial
Pereți
Faianță
Podele
Gresie Parchet
Ferestre cu geam termopan
PVC
Facilități imobil
Interfon Lift
Utilități
Gaze CATV Curent
Internet
Wireless
Comision
Standard

Vicii:

Fără vicii.

Disponibilitate proprietate:

Disponibil din 18/01/2026.

Puncte de interes

Mijloace transport
bus-station
Complex Comercial Niro statie 254
Stații autobuz aprox. 1385 m
train-station
p.o. Pantelimon Sud
Stații tren aprox. 1464 m
bus-station
Pantelimon Sud
Stații autobuz aprox. 1474 m
tram-station
Capat Pasaj Colentina linia:21
Stații tramvai aprox. 1988 m
Școală
school
Scoala Generala Nr. 60 (en)
Școli aprox. 1649 m
school
Colegiul national Victor Babes
Școli aprox. 1710 m
school
"Victor Babes" Highschool (en)
Școli aprox. 1723 m
school
Scoala
Școli aprox. 1739 m
Recreere
supermarket
Alege
Supermarket aprox. 749 m
park
Parc Ion Creanga
Parcuri aprox. 1080 m
mall
Dragonul Rosu 2
Mall aprox. 1415 m
hypermarket
Carrefour
Hipermarket aprox. 1876 m

Detalii despre preț și costuri

Prețul pe piață

Preț cerut: 96.000 €

Preț min. zonă 63.929 €
Preț max. zonă 100.000 €

79% dintre proprietățile similare ca zonă și nr. camere au prețul cerut mai mic. mai multe...

Bine de știut: prețul unei proprietăți este influențat și de alte caracteristici, cum ar fi: vechime, localizare, vecinătăți, suprafață, compartimentare, amenajări, dotări, etc. mai puțin...

Costuri cu achiziția

Fără credit
5.922 RON
Credit ipotecar
7.434 RON
Noua casă
629 RON+ taxe notariale

i

Costuri adiționale mai puțin știute la achiziție: taxe notariale, comisioane etc.

Proprietăți similare

Apartament cu 2 camere decomandat, mobilat în Fundeni
105.000 €
Județul Ilfov, Fundeni
2 camere
69 mp
Etaj 3
Apartament cu 2 camere decomandat în Fundeni
89.800 € + TVA
Județul Ilfov, Fundeni
2 camere
76 mp
Etaj 2
Apartament cu 3 camere semidecomandat, mobilat în Fundeni
100.000 €
Județul Ilfov, Fundeni
3 camere
67 mp
Parter

Detalii de contact

Abonează-te la newsletter să fii primul care primește cele mai noi recomandări de proprietăți și sfaturi de la experți.

CONTACT

Creează alertă

Salvează căutarea ca să primești pe email ultimele anunțuri publicate

Apartamente noi cu 2 camere de vânzare în Fundeni, Județul Ilfov