Apartament 3 camere, Str. Brăilei, Etaj 5/10, suprafata 74 mp.

79.900 €

Micro 18, Galați

Nr. cam.:
3
Sup. utilă:
74 mp
Etaj:
5 / 10
An constr.:
1980
  • • Locație exactă

Descriere apartament

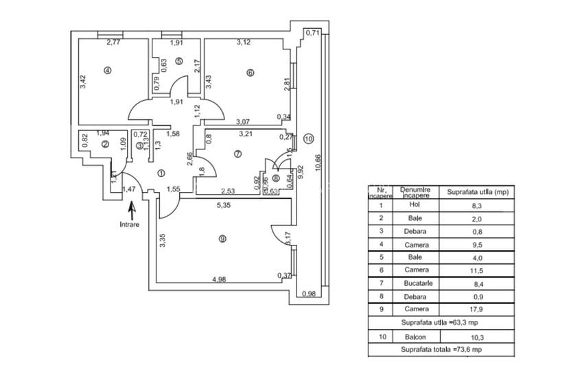
Proactiv Imobiliare vă propune spre achiziție un apartament cu 3 camere, decomandat, prevăzut cu două grupuri sanitare și un balcon generos, cu vedere pe două puncte cardinale – sud și est. Proprietatea este situată în cartierul Micro 18, la etajul 5 din 10 al unui imobil edificat în anul 1980. Cu o suprafață de 74 mp, locuința se remarcă prin compartimentarea eficientă și luminozitatea naturală oferită de orientarea favorabilă. Este o proprietate care se adresează cumpărătorilor ce își doresc să își amenajeze căminul conform propriilor preferințe, având posibilitatea de a valorifica spațiul după standarde personale de confort și estetică. Liftul imobilului a fost înlocuit recent, iar casa scării se prezintă într-o stare bună, îngrijită. Zona este bine cunoscută și apreciată, beneficiind de acces facil către stații ale mijloacelor de transport în comun, centre comerciale, supermarketuri, instituții de învățământ, unități medicale, instituții financiare și numeroase alte facilități de interes public. Separat de prețul apartamentului, se poate achiziționa un garaj situat în apropierea imobilului (în zona Restaurantului Cina), cu o suprafață de 25 mp și beci de aproximativ 20 mp. Preț garaj: 15.000 euro. Vă recomandăm vizionarea acestei proprietăți pentru a descoperi potențialul său real. Preț: 79.900 euro Contact: – Alina B. – Madalina I.
Citește mai mult Citește mai puțin
Confort 1 Decomandat

Detalii apartament

ID anunț: XA0O000R7 Copiat! 275119809 Copiat!
Actualizat în: 26 Februarie 2026
Nr. bucătării: 1
Tip imobil: Bloc de apartamente
Regim înălțime: P+10E

Utilități

Destinație
Rezidențial

Puncte de interes

Mijloace transport
tram-station
Posta Micro 19
Stații tramvai aprox. 139 m
tram-station
Posta Micro 19
Stații tramvai aprox. 184 m
bus-station
Micro 19
Stații autobuz aprox. 447 m
bus-station
Facultatea de Medicina
Stații autobuz aprox. 449 m
Școală
school
Scoala gimnaziala nr. 29
Școli aprox. 166 m
kindergarten
Gradinita Motanul incaltat
Gradinițe aprox. 202 m
school
Scoala Generala nr. 3
Școli aprox. 435 m
university
Universitatea Danubius
Universități aprox. 1124 m
Recreere
supermarket
XXL
Supermarket aprox. 100 m
park
Parc
Parcuri aprox. 266 m
cafe
Chris
Cafenea aprox. 328 m
sports-ground
ICMRSG
Terenuri sport aprox. 661 m

Detalii despre preț și costuri

Prețul pe piață

Preț cerut: 79.900 €

Preț min. zonă 57.000 €
Preț max. zonă 115.000 €

82% dintre proprietățile similare ca zonă și nr. camere au prețul cerut mai mare. mai multe...

Bine de știut: prețul unei proprietăți este influențat și de alte caracteristici, cum ar fi: vechime, localizare, vecinătăți, suprafață, compartimentare, amenajări, dotări, etc. mai puțin...

Costuri cu achiziția

Fără credit
5.164 RON
Credit ipotecar
6.549 RON
Noua casă
547 RON+ taxe notariale

i

Costuri adiționale mai puțin știute la achiziție: taxe notariale, comisioane etc.

Proprietăți similare

Apartament cu 3 camere decomandat în Micro 18
85.000 €
Galați, Micro 18
3 camere
65 mp
Etaj 7
Apartament cu 2 camere decomandat în Micro 18
74.000 €
Galați, Micro 18
2 camere
50 mp
Etaj 6 / 10
Apartament cu 3 camere decomandat în Micro 20
80.000 €
Galați, Micro 20
3 camere
67,9 mp
Etaj 10

Detalii de contact

AGENTIA IMOBILIARA PROACTIV

Alina Bourceanu Agenti Imobiliar

AGENTIA IMOBILIARA PROACTIV

Abonează-te la newsletter să fii primul care primește cele mai noi recomandări de proprietăți și sfaturi de la experți.

CONTACT

Creează alertă

Salvează căutarea ca să primești pe email ultimele anunțuri publicate

Apartamente cu 3 camere de vânzare în zona Micro 18, Galați