1

Apartament cu 3 camere decomandat, situat la etajul 7, in Micro 20.

77.000 €

Micro 20, Galați

Nr. cam.:
3
Sup. utilă:
65 mp
Etaj:
7 / 10
An constr.:
1976
  • • Locație exactă

Descriere apartament

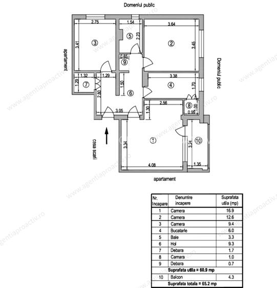
ProActiv Imobiliare vă propune spre vânzare un apartament cu 3 camere decomandat, situat la etajul 7 al unui bloc cu 10 niveluri, prevăzut cu lift, în cartierul Micro 20. Locuința are o suprafață totală de 65,2 mp și beneficiază de o compartimentare practică și funcțională. Apartamentul este orientat S-E, oferind lumină naturală pe tot parcursul zilei, iar dormitorul mic are orientare N-E. Imobilul dispune de: • centrală termică proprie; • aparat de aer condiționat; • ușă metalică la intrare; • uși interioare schimbate; • baie cu fereastră pentru aerisire natural; • balcon amplasat la sufragerie. Poziționarea excelentă oferă acces rapid către toate punctele de interes: mijloace de transport în comun, centre comerciale, unități de învățământ, piață, parcuri și alte facilități urbane. Pentru mai multe detalii sau pentru programarea unei vizionări, vă stăm la dispoziție telefonic.
Citește mai mult Citește mai puțin
Confort 1 Decomandat 1 Balcon / Terasă / Logie

Detalii apartament

ID anunț: XA0O000R3 Copiat! 274990095 Copiat!
Actualizat în: 17 Februarie 2026
Nr. bucătării: 1
Nr. băi: 1
Tip imobil: Bloc de apartamente
Tip tranzacție: De vânzare prin agent
Regim înălțime: P+10E
Modalitate de plată: Cash sau Credit

Utilități

Destinație
Rezidențial

Puncte de interes

Mijloace transport
bus-station
Micro 19
Stații autobuz aprox. 94 m
tram-station
Micro 19
Stații tramvai aprox. 330 m
bus-station
Service vechi
Stații autobuz aprox. 361 m
tram-station
Micro 19
Stații tramvai aprox. 386 m
Școală
school
Scoala gimnaziala nr. 29
Școli aprox. 463 m
kindergarten
Gradinita Motanul incaltat
Gradinițe aprox. 575 m
school
Scoala Generala nr. 3
Școli aprox. 699 m
university
Universitatea Danubius
Universități aprox. 1171 m
Recreere
cafe
Cafe No 9
Cafenea aprox. 106 m
park
Parc
Parcuri aprox. 164 m
supermarket
LIDL
Supermarket aprox. 382 m
sports-ground
ICMRSG
Terenuri sport aprox. 1188 m

Detalii despre preț și costuri

Prețul pe piață

Preț cerut: 77.000 €

Preț min. zonă
Preț max. zonă

59% dintre proprietățile similare ca zonă și nr. camere au prețul cerut mai mare. mai multe...

Bine de știut: prețul unei proprietăți este influențat și de alte caracteristici, cum ar fi: vechime, localizare, vecinătăți, suprafață, compartimentare, amenajări, dotări, etc. mai puțin...

Acces la informații premium după autentificare
Login Gratuit

Costuri cu achiziția

Fără credit
Credit ipotecar
Noua casă

i

Costuri adiționale mai puțin știute la achiziție: taxe notariale, comisioane etc.

Acces la informații premium după autentificare
Login Gratuit

Proprietăți similare

Apartament cu 2 camere, mobilat în Mazepa 2
75.000 €
Galați, Mazepa 2
2 camere
59 mp
Etaj 4
Apartament cu 3 camere decomandat în Micro 20
72.000 €
Galați, Micro 20
3 camere
71 mp
Etaj 6
Apartament cu 2 camere în Micro 20
77.000 €
Galați, Micro 20
2 camere
60 mp
Etaj 7

Detalii de contact

AGENTIA IMOBILIARA PROACTIV

Alina Bourceanu Agenti Imobiliar

AGENTIA IMOBILIARA PROACTIV

Abonează-te la newsletter să fii primul care primește cele mai noi recomandări de proprietăți și sfaturi de la experți.

CONTACT

Creează alertă

Salvează căutarea ca să primești pe email ultimele anunțuri publicate

Apartamente cu 3 camere de vânzare în zona Micro 20, Galați