10

Apartament 4 camere, parter, b-dul Dunarea Micro 21

100.000 €

Micro 21, Galați

Nr. cam.:
4
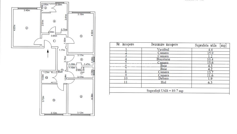
Sup. utilă:
90 mp
Etaj:
Parter / 4
An constr.:
1985
  • • Locație Verificată
  • • Locație exactă

Descriere apartament

Agentia Imobiliară Domus vă oferă spre vânzare un apartament spații de 4 camere decomandate, cu o suprafață utilă de 90 mp, situată în zona Micro 21, în imediata apropiere a Școlii nr. 3 și a Bulevardului Dunărea. Apartamentul beneficiază de o orientare dublă, astfel încât să vezi pe ambele părți ale blocului, oferind flexibilitate pentru utilizarea spațiului de locuit sau pentru activități. Datorită poziționării excelente față de Bulevardul Dunărea, imobilul este ideal pentru amenajarea unui spațiu comercial sau de birouri. Zona în care se află apartamentul este foarte bine deservită de mijloacele de transport în comun și oferă acces rapid la supermarketuri, grădinițe, școli, bănci, farmacii și parcuri, făcându-l astfel potrivit atât pentru locuință, c. Printre dotările apartamentului se numără o centrală termică proprie, branșament separat la apă, scurgere separată și tâmplărie din PVC cu geam termopan. Apartamentul este liber și disponibil imediat pentru mutare sau amenajare.
Citește mai mult Citește mai puțin
Confort 1 Decomandat 1 Balcon / Terasă / Logie

Detalii apartament

ID anunț: X5TL000T8 Copiat! 243921281 Copiat!
Actualizat în: 23 Iulie 2025
Suprafață utilă totală: 90 mp
Nr. bucătării: 1
Nr. băi: 2
Structură rezistență: Beton
Tip imobil: Bloc de apartamente
Tip tranzacție: De vânzare prin agent
Regim înălțime: P+4E
Modalitate de plată: Cash sau Credit

Utilități

Destinație
Comercial Birouri

Puncte de interes

Mijloace transport
bus-station
Facultatea de Medicina
Stații autobuz aprox. 268 m
bus-station
Facultatea de Medicina
Stații autobuz aprox. 296 m
tram-station
Micro 19
Stații tramvai aprox. 357 m
tram-station
Micro 19
Stații tramvai aprox. 371 m
Școală
school
Scoala Generala nr. 3
Școli aprox. 29 m
school
Scoala gimnaziala nr. 29
Școli aprox. 590 m
kindergarten
Gradinita Motanul incaltat
Gradinițe aprox. 645 m
university
Universitatea Danubius
Universități aprox. 687 m
Recreere
park
Parc
Parcuri aprox. 93 m
supermarket
Kaufland
Supermarket aprox. 240 m
cafe
Chris
Cafenea aprox. 402 m
sports-ground
ICMRSG
Terenuri sport aprox. 795 m

Detalii despre preț și costuri

Prețul pe piață

Preț cerut: 100.000 €

Preț min. zonă
Preț max. zonă

59% dintre proprietățile similare ca zonă și nr. camere au prețul cerut mai mare. mai multe...

Bine de știut: prețul unei proprietăți este influențat și de alte caracteristici, cum ar fi: vechime, localizare, vecinătăți, suprafață, compartimentare, amenajări, dotări, etc. mai puțin...

Acces la informații premium după autentificare
Login Gratuit

Costuri cu achiziția

Fără credit
Credit ipotecar
Noua casă

i

Costuri adiționale mai puțin știute la achiziție: taxe notariale, comisioane etc.

Acces la informații premium după autentificare
Login Gratuit

Proprietăți similare

Apartament cu 3 camere decomandat, mobilat în Micro 17
99.000 €
Galați, Micro 17
3 camere
70 mp
Etaj 3
Apartament cu 3 camere semidecomandat, mobilat în Micro 39
92.500 €
Galați, Micro 39
3 camere
54 mp
Etaj 4
Apartament cu 3 camere decomandat în Mazepa 1
99.000 €
Galați, Mazepa 1
3 camere
93 mp
Etaj 9

Detalii de contact

Agentia Imobiliara D O M U S

BOGDAN Agent imobiliar

5.00(3 review-uri)

Agentia Imobiliara D O M U S

Abonează-te la newsletter să fii primul care primește cele mai noi recomandări de proprietăți și sfaturi de la experți.

CONTACT

Creează alertă

Salvează căutarea ca să primești pe email ultimele anunțuri publicate

Apartamente cu 4+ camere de vânzare în zona Micro 21, Galați