Apartament luminos în Țiglina 1 – ideal pentru personalizare, aproape de Faleza

54.000 €

Țiglina 1, Galați

Nr. cam.:
2
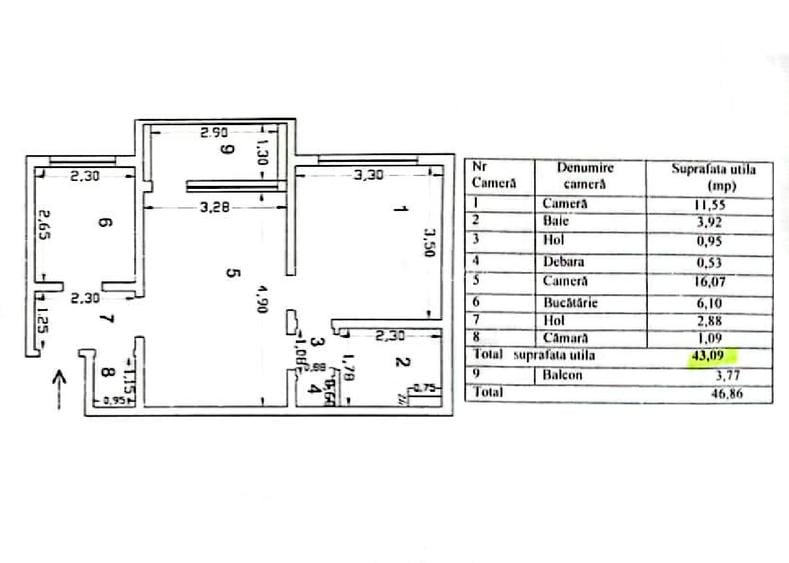
Sup. utilă:
47 mp
Etaj:
3 / 4
An constr.:
1965
  • • Locație Verificată
  • • Locație exactă

Descriere apartament

anubius Imobiliare vă propune spre achiziție un apartament cu adevărat promițător, situat în inima cartierului Țiglina 1, pe strada Saturn. Poziționat la etajul 3 și orientat către Vest, imobilul se bucură de lumină naturală pe tot parcursul după-amiezii, oferind un ambient cald și plăcut. Apartamentul dispune de izolație exterioară, tâmplărie PVC cu geam termopan și centrală termică – avantaje esențiale pentru confort și eficiență energetică. Interiorul necesită renovare, oferindu-vă însă oportunitatea ideală de a-l amenaja exact după gustul și nevoile dumneavoastră – transformându-l într-un cămin cu adevărat personal. Apartamentul se vinde nemobilat si neutilat. Localizarea este unul dintre marile atuuri: la doar câteva minute de Faleza Dunării, cu acces rapid către piață, școli și instituții de învățământ apreciate, mijloace de transport în comun și numeroase facilități urbane. Zona este bine conectată și oferă acces facil către toate punctele importante ale orașului. Pentru detalii suplimentare sau programarea unei vizionări, nu ezitați să mă contactați!
Citește mai mult Citește mai puțin
Confort 1 Semidecomandat 1 Balcon / Terasă / Logie Centrală proprie

Detalii apartament

ID anunț: XGH200006 Copiat! 275426080 Copiat!
Actualizat în: 16 Aprilie 2026
Nr. bucătării: 1
Nr. băi: 1
Tip imobil: Bloc de apartamente
Regim înălțime: P+4E

Utilități

Destinație
Rezidențial
Utilități
Gaze Apă Canalizare Curent
Amenajare străzi
Asfaltate Iluminat stradal Mijloace de transport în comun
Comision
1%

Puncte de interes

Mijloace transport
bus-station
Oraselul Copiilor
Stații autobuz aprox. 384 m
bus-station
Tiglina 1
Stații autobuz aprox. 446 m
tram-station
Spitalul Judetean
Stații tramvai aprox. 789 m
tram-station
Spitalul Judetean
Stații tramvai aprox. 793 m
Școală
school
Liceul Alexandru Ioan Cuza
Școli aprox. 220 m
school
Liceul Alexandru Ioan Cuza
Școli aprox. 235 m
kindergarten
Gradinita nr. 9 Sf. Nicolae
Gradinițe aprox. 892 m
kindergarten
Gradinita nr. 44
Gradinițe aprox. 1049 m
Recreere
park
Oraselul Copiilor
Parcuri aprox. 273 m
restaurant
Interplaza
Restaurant aprox. 336 m
supermarket
Kaufland
Supermarket aprox. 613 m
sports-ground
Atlas
Terenuri sport aprox. 926 m

Detalii despre preț și costuri

Prețul pe piață

Preț cerut: 54.000 €

Preț min. zonă
Preț max. zonă

67% dintre proprietățile similare ca zonă și nr. camere au prețul cerut mai mare. mai multe...

Bine de știut: prețul unei proprietăți este influențat și de alte caracteristici, cum ar fi: vechime, localizare, vecinătăți, suprafață, compartimentare, amenajări, dotări, etc. mai puțin...

Insight premium disponibil după login

Costuri cu achiziția

Fără credit
Credit ipotecar
Noua casă

i

Costuri adiționale mai puțin știute la achiziție: taxe notariale, comisioane etc.

Insight premium disponibil după login

Proprietăți similare

Apartament cu 2 camere semidecomandat în Țiglina 1
53.500 €
Galați, Țiglina 1
2 camere
44 mp
Etaj 1
Apartament cu 2 camere decomandat în Țiglina 1
55.000 €
Galați, Țiglina 1
2 camere
54 mp
Etaj 4
Apartament cu 2 camere decomandat în Țiglina 1
55.000 €
Galați, Țiglina 1
2 camere
48 mp
Etaj 4

Detalii de contact

Abonează-te la newsletter să fii primul care primește cele mai noi recomandări de proprietăți și sfaturi de la experți.

CONTACT

Creează alertă

Salvează căutarea ca să primești pe email ultimele anunțuri publicate

Apartamente cu 2 camere de vânzare în zona Țiglina 1, Galați