Apartament luminos, 2 camere, semidecomandat, etaj 2 – Tiglina 2

74.400 €

Țiglina 2, Galați

Nr. cam.:
2
Sup. utilă:
45 mp
Etaj:
2 / 4
An constr.:
1970 (Finalizată)
  • • Locație aproximativă

Descriere apartament

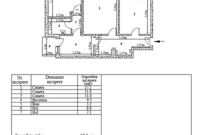
Apartament luminos, 2 camere, semidecomandat, etaj 2 – Tiglina 2 Agenția Imobiliară Familia vă propune spre cumpărare un apartament semidecomandat cu două camere, situat în Galați, zona Tiglina 2. Imobilul este amplasat la etajul 2 al unui bloc de 4 etaje, construit în 1970 și are acces la balconul închis cu tâmplărie PVC cu geam termopan, din bucătărie. Situat într-o zonă liniștită, în inima cartierului și aproape de bulevardul Siderurgiștilor, apartamentul este orientat spre vest, beneficiind de luminozitate naturală în a doua parte a zilei. Zona este înconjurată de vegetație matură și oferă acces rapid la: • Stațiile mijloacelor de transport în comun • Supermarketuri și magazine diverse • Farmacii, cabinete medicale și bănci • Restaurante și stații de taxi • Parcul de la sensul giratoriu de la Ultimul Leu • Unele dintre cele mai bine cotate grădinițe, școli și licee din oraș Cu o suprafață utilă totală de 50 mp (din care 5 mp balcon), apartamentul, recent renovat, dispune de: • Izolație termică exterioară • Centrală termică proprie și calorifere din aluminiu • Separare la alimentarea cu apă și gaz • Instalație electrică refăcută • Tâmplărie PVC cu geam termopan, inclusiv la balcon • Uși interioare schimbate • Baie renovată cu gresie și faianță, cu cabină de duș • Parchet și ușă metalică la intrare Curat și bine întreținut, apartamentul este pregătit pentru noii proprietari. Imobilul beneficiază de parcare publică gratuită. Se vinde mobilat și utilat, așa cum este prezentat în imagini. Se acceptă credit imobiliar. Preț apartament: 74.400 euro 📞 Detalii suplimentare: Valentina Vevera – 0746* 716* 535 Aurelian Iordache – 0772* 064* 583 Agenția Imobiliară Familia
Citește mai mult Citește mai puțin
Confort 1 Semidecomandat Mobilat 1 Balcon / Terasă / Logie Calorifere Centrală proprie

Detalii apartament

ID anunț: X4S400171 Copiat! 275435557 Copiat!
Actualizat în: 15 Aprilie 2026
Suprafață construită: 47 mp
Nr. bucătării: 1
Nr. băi: 1
Structură rezistență: Cărămidă
Tip imobil: Bloc de apartamente
Regim înălțime: S+P+4E

Utilități

Destinație
Birouri Rezidențial
Pereți
Faianță Var
Podele
Gresie Parchet
Ușă intrare
Metal
Uși interior
Celulare
Izolații termice
Exterior
Ferestre cu geam termopan
PVC
Contorizare
Apometre Contor gaz
Bucătărie
Mobilată Utilată
Electrocasnice
Aragaz Frigider Hotă Mașină de spălat
Alte spații utile
Debara
Facilități imobil
Interfon
Utilități
Curent Apă Canalizare CATV Gaze
Internet
Cablu
Amenajare străzi
Iluminat stradal Mijloace de transport în comun Asfaltate
Comision
standard

Disponibilitate proprietate:

Imediat

Puncte de interes

Mijloace transport
bus-station
CEC Tiglina 2
Stații autobuz aprox. 544 m
tram-station
Strada Gheorghe Doja
Stații tramvai aprox. 563 m
tram-station
Spitalul de copii
Stații tramvai aprox. 565 m
bus-station
Papadie
Stații autobuz aprox. 568 m
Școală
kindergarten
Gradinita nr. 9 Sf. Nicolae
Gradinițe aprox. 187 m
kindergarten
Gradinita Alba ca Zapada
Gradinițe aprox. 591 m
school
Scoala Generala nr. 2
Școli aprox. 766 m
university
Facultatea de Educatie Fizica si Sport
Universități aprox. 1816 m
Recreere
park
Parc
Parcuri aprox. 288 m
supermarket
Profi
Supermarket aprox. 317 m
restaurant
Moldova (closed)
Restaurant aprox. 407 m
sports-ground
Five Star Bowling
Terenuri sport aprox. 985 m

Detalii despre preț și costuri

Prețul pe piață

Preț cerut: 74.400 €

Preț min. zonă
Preț max. zonă

88% dintre proprietățile similare ca zonă și nr. camere au prețul cerut mai mic. mai multe...

Bine de știut: prețul unei proprietăți este influențat și de alte caracteristici, cum ar fi: vechime, localizare, vecinătăți, suprafață, compartimentare, amenajări, dotări, etc. mai puțin...

Insight premium disponibil după login

Costuri cu achiziția

Fără credit
Credit ipotecar
Noua casă

i

Costuri adiționale mai puțin știute la achiziție: taxe notariale, comisioane etc.

Insight premium disponibil după login

Proprietăți similare

Apartament cu 3 camere decomandat, mobilat în Țiglina 2
72.000 €
Galați, Țiglina 2
3 camere
64 mp
Etaj 4
Apartament cu 3 camere în Țiglina 2
72.000 €
Galați, Țiglina 2
3 camere
66 mp
Etaj 4 / 9
Apartament cu 3 camere decomandat în Țiglina 2
81.800 €
Galați, Țiglina 2
3 camere
64 mp
Parter

Detalii de contact

Abonează-te la newsletter să fii primul care primește cele mai noi recomandări de proprietăți și sfaturi de la experți.

CONTACT

Creează alertă

Salvează căutarea ca să primești pe email ultimele anunțuri publicate

Apartamente cu 2 camere de vânzare în zona Țiglina 2, Galați