1

Apartament 3 camere Ghiroda – 57 mp, open space, construcție 2010, fără comision

94.000 €

Ghiroda, Județul Timiș

Nr. cam.:
3
Sup. utilă:
57 mp
Etaj:
Parter / 3
An constr.:
2010
  • • Comision 0%
  • • Locație exactă

Descriere apartament

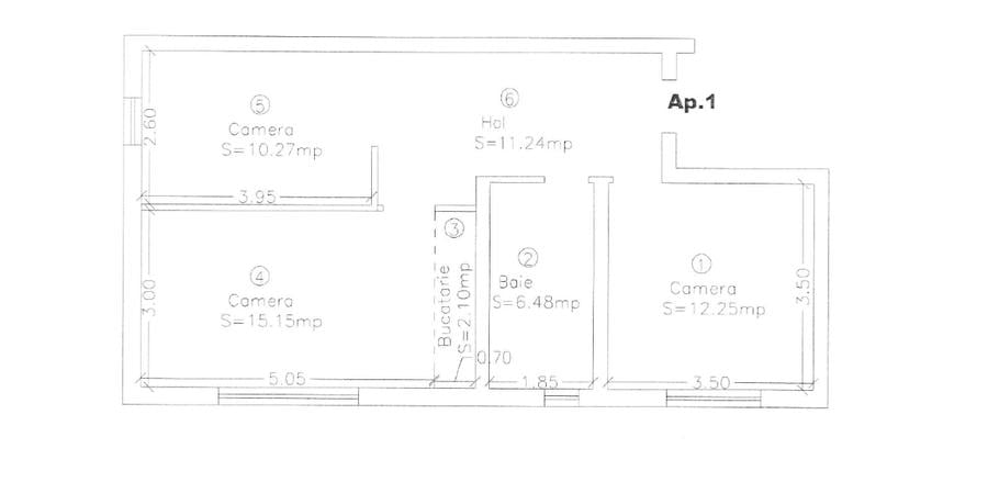
Apartament 3 camere în Ghiroda – funcțional, cu potențial, ideal pentru locuit sau investiție Proprietate situată la parter, pe strada Semenic, cu o suprafață utilă de 57 mp (conform CF), într-un imobil construit în 2010. Compartimentarea este practică și bine echilibrată: – living cu bucătărie open space – 2 dormitoare – baie – hol Apartamentul este recent eliberat după închiriere, este funcțional și poate fi utilizat imediat, oferind în același timp libertatea de a fi reamenajat după propriul gust. Se vinde mobilat, în starea actuală. Localizarea este un avantaj clar – zonă liniștită din Ghiroda, cu acces rapid către Timișoara, potrivită atât pentru locuință personală, cât și pentru închiriere. Preț: 94.000 € (negociabil) Persoană fizică – fără comision Contact exclusiv prin mesaj în platformă.
Citește mai mult Citește mai puțin
Confort 1 Decomandat Mobilat Aer condiționat Centrală proprie 1 Parcare / Garaj / Parcare subterană Bine întreținut (Bună)

Detalii apartament

ID anunț: XV1000GPE Copiat! 275450108 Copiat!
Actualizat în: 20 Aprilie 2026
Tip imobil: Bloc de apartamente
Regim înălțime: P+3E
Curte/Grădină: Da

Utilități

Utilități
Apă Gaze
Sistem încălzire
Centrală proprie pe Gaz cu Calorifere
Servicii imobil
Administrare
Comision
0%

Puncte de interes

Mijloace transport
bus-station
Statie Lugojului E4
Stații autobuz aprox. 90 m
bus-station
Lugojului
Stații autobuz aprox. 302 m
bus-station
Stație Ghiroda E4 RATT
Stații autobuz aprox. 350 m
train-station
Halta Ghiroda
Stații tren aprox. 376 m
Școală
school
Scoala Generala Ghiroda
Școli aprox. 625 m
school
Gradinita Ghiroda (en)
Școli aprox. 744 m
kindergarten
Gradinita Pygmalion
Gradinițe aprox. 1295 m
kindergarten
Gradinita Pygmalion
Gradinițe aprox. 1518 m
Recreere
restaurant
HOTEL-RESTAURAN-TITANIC TIMISOARA (en)
Restaurant aprox. 567 m
pub
Km0 Pub and Restaurant
Pub aprox. 693 m
park
Parc de joaca copii
Parcuri aprox. 728 m
sports-ground
Teren Fotbal/Tenis
Terenuri sport aprox. 1218 m

Detalii despre preț și costuri

Prețul pe piață

Preț cerut: 94.000 €

Preț min. zonă
Preț max. zonă

i

Proprietate cu prețul cerut în afara intervalului mai multe...

Posibile explicații pentru faptul că prețul proprietății este sub cel minim: imobil cu risc seismic, imobil cu probleme structurale, imobil demolabil, poziționare în altă zonă
Bine de știut: prețul unei proprietăți este influențat și de alte caracteristici, cum ar fi: vechime, localizare, vecinătăți, suprafață, compartimentare, amenajări, dotări, etc.
Insight premium disponibil după login

Costuri cu achiziția

Fără credit
Credit ipotecar
Noua casă

i

Costuri adiționale mai puțin știute la achiziție: taxe notariale, comisioane etc.

Insight premium disponibil după login

Proprietăți similare

Apartament cu 2 camere, mobilat în Ghiroda
91.990 €
Județul Timiș, Ghiroda
2 camere
56 mp
Etaj 2
Apartament cu 2 camere semidecomandat, mobilat în Ghiroda
89.000 €
Județul Timiș, Ghiroda
2 camere
55 mp
Etaj 3 / 3
Apartament cu 2 camere decomandat, mobilat în Ghiroda
103.000 €
Județul Timiș, Ghiroda
2 camere
66 mp
Etaj 2 / 3

Detalii de contact

Abonează-te la newsletter să fii primul care primește cele mai noi recomandări de proprietăți și sfaturi de la experți.

Feedback apel

CONTACT

Creează alertă

Salvează căutarea ca să primești pe email ultimele anunțuri publicate

Apartamente cu 3 camere de vânzare în Ghiroda, Județul Timiș