5

Apartamente cu 2 camere disponibile imediat la intrare in Giroc.

94.000 €

Giroc, Județul Timiș

Nr. cam.:
2
Sup. utilă:
53 mp
Etaj:
Parter / 3
An constr.:
2025 (Finalizată)
  • • Locație aproximativă
  • • Vizionare prin apel video

Descriere apartament

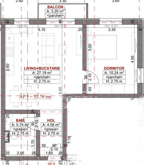
APOSTU ESTATE va ofera spre vanzare apartamente cu 2 camere situate la intrare in Giroc.. In apropiere sunt magazine si supermarket-uri precum: Lidl, Profi, Mega Image, mijloc de transport in comun, scoala si gradinita la o distanta de 5 minute. Imobilul este complet finalizat si pregatit pentru noul proprietar. Modelul de apartament este disponibil la parter, etajul 2 si etajul 3. Suprafata apartamentului este de 53 mp utili. Compartimentare: - hol acces - living si bucatarie open space - dormitor - baie cu dus - terasa Toate finisajele sunt realizate mecanizat cu produse de calitate superioara atent creionate. Detalii tehnice: - regim de inaltime Parter + 3 etaje. - constructie realizata in anul 2025 din caramida Porotherm de 30 cm. - exterior izolat cu polistiren de 10 cm eps 80. - pereti despartitori complet din caramida (fara rigips) tencuiti mecanizat finisati cu glet si vopsea lavabila alba. - geamuri termopan cu 3 sticle pentru izolare atat fonica cat si termica superioara, foarte mari si luminoase. - centrala proprie pe gaz, sistem eficient de incalzire in pardoseala. - usa acces securizata, usi interioare Porta Doors. - baia este dotata cu obiecte sanitare. .- 1 loc de parcare inscris in cf. Utilitati complete: curent, apa de la retea, canalizare, gaz, internet prin fibra optica, cablu Tv. Pentru mai multe detalii nu ezitati sa ne contactati! Acceptam orice fel de credit bancar. Oferim consultanta si solutii financiare prin colaboratorii nostri pentru a obtine cel mai avantajos credit Ipotecar sau Noua Casa. Va asteptam cu drag la o vizionare chiar astazi! CP2584999
Citește mai mult Citește mai puțin
Confort 1 Semidecomandat Nemobilat 1 Balcon / Terasă / Logie Centrală proprie Încălzire prin pardoseală 1 Parcare

Detalii apartament

ID anunț: XBAF10KP4 Copiat! 264223641 Copiat!
Actualizat în: 25 Martie 2026
Suprafață construită: 57 mp
Nr. bucătării: 1
Nr. băi: 1
Tip imobil: Bloc de apartamente
Regim înălțime: P+3E+M

Utilități

Destinație
Rezidențial
Pereți
Vopsea lavabilă
Podele
Gresie Parchet
Ușă intrare
Metal
Uși interior
Celulare
Izolații termice
Exterior
Ferestre cu geam termopan
PVC
Contorizare
Apometre Contor căldură Contor gaz
Facilități imobil
Acoperiș Interfon Videointerfon
Utilități
Curent Apă Canalizare CATV Gaze Telefon
Internet
Cablu
Amenajare străzi
Iluminat stradal Mijloace de transport în comun Asfaltate
Comision
standard

Disponibilitate proprietate:

Imediat

Puncte de interes

Mijloace transport
bus-station
Statie Apicultorilor E3
Stații autobuz aprox. 481 m
tram-station
Statie P. Pavlov Tv7
Stații tramvai aprox. 1266 m
trolleybus-station
Statie Maresal C-tin Prezan T15, T19
Stații troleibuz aprox. 1444 m
train-station
Halta Giroc hc
Stații tren aprox. 1449 m
Școală
university
CENTRU REGIONALDE PREGATIRE PROFESIONALA PENTRU MAGISTRATI, GIROC, tIMISOARA
Universități aprox. 419 m
university
Institutul de Cercetari pentru Energii Regenerabile
Universități aprox. 831 m
kindergarten
Gradinita Goghita
Gradinițe aprox. 1129 m
school
Școala generală nr. 14
Școli aprox. 1218 m
Recreere
park
Viitor Parc Braytim
Parcuri aprox. 761 m
supermarket
Lidl
Supermarket aprox. 1155 m
sports-ground
Teren sportiv
Terenuri sport aprox. 1509 m
public-square
Piata Aron Cotrus
Piețe publice aprox. 1802 m

Detalii despre preț și costuri

Prețul pe piață

Preț cerut: 94.000 €

Preț min. zonă
Preț max. zonă

55% dintre proprietățile similare ca zonă și nr. camere au prețul cerut mai mare. mai multe...

Bine de știut: prețul unei proprietăți este influențat și de alte caracteristici, cum ar fi: vechime, localizare, vecinătăți, suprafață, compartimentare, amenajări, dotări, etc. mai puțin...

Insight premium disponibil după login

Costuri cu achiziția

Fără credit
Credit ipotecar
Noua casă

i

Costuri adiționale mai puțin știute la achiziție: taxe notariale, comisioane etc.

Insight premium disponibil după login

Proprietăți recomandate

Detalii de contact

APOSTU ESTATE

Alexandra Iulia Team Leader

APOSTU ESTATE
PRO

Abonează-te la newsletter să fii primul care primește cele mai noi recomandări de proprietăți și sfaturi de la experți.

Feedback apel

CONTACT

Creează alertă

Salvează căutarea ca să primești pe email ultimele anunțuri publicate

Apartamente noi cu 2 camere de vânzare în Giroc, Județul Timiș