Bloc finalizat la asfalt. Balcon. Loc de parcare.

89.000 €

Giroc, Județul Timiș

Nr. cam.:
2
Sup. utilă:
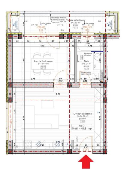
42 mp
Etaj:
1 / 3
An constr.:
2024 (Finalizată)
  • • Locație aproximativă

Descriere apartament

ZayHome va propune un bloc nou in Giroc, ferit de aglomeratia din oras dar totodata cu acces facil la mijloacele de trasport in comun, gradinite private si la magazinele de tip supermarket (Lidl, Profi, Pepco, Carrefour si Kik). Imobilul are regimul de intalnite P+3E si este format din apartamente cu 2 camere. Fiecare apartament dispune de 1 loc de parcare inclus in pret. Modele de apartamente: - 42 mp utili + balcon 8 mp - disponibil la Etaj 1, Etaj 2, Etaj 3 - Pret: 89.000 Euro - 46 mp utili + balcon 8 mp - disponibil la Etaj 1, Etaj 2, Etaj 3 - Pret: 95.000 Euro - 52 mp utili + balcon 8 mp - disponibil la Etaj 1, Etaj 2, Etaj 3 - Pret: 102.000 Euro Dotari: - Centrala termica proprie Ariston - Incalzire prin pardoseala - Gresie si faianta Tempini - Usi interioare Porta Door - Videointerfon - Loc de parcare - Drum asfaltat Apartamentele se predau finisate la "cheie" si racordate la toate utilitatile (apa, canalizare, curent si gaz). Fiind multe de vazut si de prezentat in realitate, te invitam la o intalnire in urma careia vei obtine raspunsuri la toate intrebarile tale. Lasa procesul de achizitie al imobilului mult visat in seama noastra, vei avea mai putine griji si vei beneficia de consultanta imobiliara, financiar-bancara si juridica pe tot parcusul acestuia.
Citește mai mult Citește mai puțin
Confort 1 1 Balcon / Terasă / Logie Centrală proprie Încălzire prin pardoseală 1 Parcare

Detalii apartament

ID anunț: XC6P100U9 Copiat! 272379535 Copiat!
Actualizat în: 22 Aprilie 2026
Suprafață construită: 50.4 mp
Nr. bucătării: 1
Nr. băi: 1
Structură rezistență: Cărămidă
Tip imobil: Bloc de apartamente
Regim înălțime: P+3E

Utilități

Destinație
Rezidențial
Pereți
Faianță Vopsea lavabilă
Podele
Gresie Parchet
Ușă intrare
Metal
Izolații termice
Exterior
Ferestre cu geam termopan
PVC
Contorizare
Apometre Contor gaz
Facilități imobil
Acoperiș Videointerfon
Utilități
Curent Apă Canalizare CATV Gaze Telefon
Internet
Cablu
Amenajare străzi
Iluminat stradal Mijloace de transport în comun Asfaltate
Comision
standard

Vecinătăți:

Shopping :
- Supermarketuri : Lidl, Carrefour, Penny, Mega Image
- Magazine alimentare : Profi
- Magazin de articole casnice: Pepco, Sinsay,

Educatie :
- Gradinita cu Program Prelungit Giroc
- Scoala Gimnaziala Giroc
- Liceul "David Voniga"

Spatii recreere :
- Club Sportiv Dyadora
- Lake Side
- Poligon MAG Tehnica

Sanatate :
- Spitalul Judetean
- Cabinete medicale
- Farmacii
- Cabinete veterinare

Mijloace de transport:
- Autobuze : Giroceana

Disponibilitate proprietate:

Imediat

Puncte de interes

Mijloace transport
bus-station
Giroceana
Stații autobuz aprox. 249 m
train-station
Halta Giroc hc
Stații tren aprox. 943 m
tram-station
Statie P. Pavlov Tv7
Stații tramvai aprox. 1303 m
trolleybus-station
Statie Maresal C-tin Prezan T15, T19
Stații troleibuz aprox. 1873 m
Școală
university
CENTRU REGIONALDE PREGATIRE PROFESIONALA PENTRU MAGISTRATI, GIROC, tIMISOARA
Universități aprox. 197 m
university
Institutul de Cercetari pentru Energii Regenerabile
Universități aprox. 1086 m
kindergarten
Gradinita Program Prelungit Nr. 1
Gradinițe aprox. 1217 m
school
Școala generală nr. 14
Școli aprox. 1238 m
Recreere
restaurant
Arizona
Restaurant aprox. 1129 m
supermarket
Carrefour Market
Supermarket aprox. 1147 m
park
Viitor Parc Braytim
Parcuri aprox. 1284 m
sports-ground
Teren sportiv
Terenuri sport aprox. 1609 m

Detalii despre preț și costuri

Prețul pe piață

Preț cerut: 89.000 €

Preț min. zonă
Preț max. zonă

89% dintre proprietățile similare ca zonă și nr. camere au prețul cerut mai mic. mai multe...

Bine de știut: prețul unei proprietăți este influențat și de alte caracteristici, cum ar fi: vechime, localizare, vecinătăți, suprafață, compartimentare, amenajări, dotări, etc. mai puțin...

Insight premium disponibil după login

Costuri cu achiziția

Fără credit
Credit ipotecar
Noua casă

i

Costuri adiționale mai puțin știute la achiziție: taxe notariale, comisioane etc.

Insight premium disponibil după login

Proprietăți recomandate

Detalii de contact

Abonează-te la newsletter să fii primul care primește cele mai noi recomandări de proprietăți și sfaturi de la experți.

Feedback apel

CONTACT

Creează alertă

Salvează căutarea ca să primești pe email ultimele anunțuri publicate

Apartamente noi cu 2 camere de vânzare în Giroc, Județul Timiș