1

Decomandat. Etaj intermediar. Balcon mare. Loc de parcare.

96.000 €

Giroc, Județul Timiș

Nr. cam.:
2
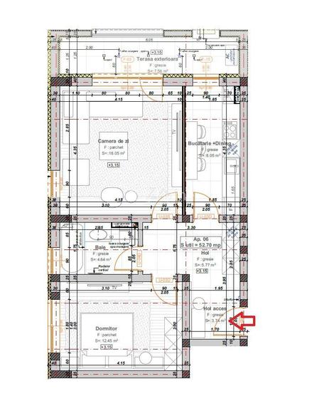
Sup. utilă:
52,7 mp
Etaj:
2 / 3
An constr.:
2025 (În construcție)
  • • Locație aproximativă

Descriere apartament

ZayHome va propune un ansamblu de blocuri noi la cateva minute de Timisoara, mai exact in Giroc, ferit de aglomeratia din oras dar totodata cu acces facil la mijloacele de trasport in comun, institutii de invatamant si la magazinele de tip supermarket (Lidl, Profi, Pepco, Carrefour si Kik). Regimul de inaltime P+3E, iar blocurile sunt formate din apartamente cu 2 si 3 camere. Fiecare apartament dispune de 1 loc de parcare inclus in pret. Modele de apartamente cu 2 camere: - 45 mp utili + balcon 3 mp, disponibil la Etaj 2 sau Etaj 3 - Pret 83.000 euro - 53 mp utili + balcon 7.50 mp, disponibil la Etaj 1, Etaj 2 sau Etaj 3 - Pret 96.000 euro - 54 mp utili + balcon 7.50 mp, disponibil la Etaj 1, Etaj 2 sau Etaj 3- Pret 98.500 euro - 55 mp utili + balcon 5 mp disponibil la Etaj 1, Etaj 2 sau Etaj 3 - Pret 99.000 euro Modele de apartamente cu 3 camere: - 62 mp utili + balcon 9 mp, disponibil la Etaj 3 - Pret 115.000 euro Termen de predare Aprilie 2026. Apartamentele se predau finisate la "cheie" si racordate la toate utilitatile (apa, canalizare, curent si gaz). **Fotografiile sunt cu titlu de prezentare din proiecte anterioare. Lasa procesul de achizitie al imobilului mult visat in seama noastra, vei avea mai putine griji si vei beneficia de consultanta imobiliara, financiar-bancara si juridica pe tot parcusul acestuia.
Citește mai mult Citește mai puțin
Confort 1 Decomandat 1 Balcon / Terasă / Logie Centrală proprie Încălzire prin pardoseală 1 Parcare

Detalii apartament

ID anunț: XC6P100UG Copiat! 274064571 Copiat!
Actualizat în: 19 Februarie 2026
Suprafață construită: 63.24 mp
Nr. bucătării: 1
Nr. băi: 1
Structură rezistență: Cărămidă
Tip imobil: Bloc de apartamente
Regim înălțime: P+3E

Utilități

Pereți
Faianță Vopsea lavabilă
Podele
Gresie Parchet
Ușă intrare
Metal
Izolații termice
Exterior
Ferestre cu geam termopan
PVC
Contorizare
Apometre Contor gaz
Facilități imobil
Acoperiș Interfon
Utilități
Curent Apă Canalizare CATV Gaze Telefon
Internet
Cablu
Amenajare străzi
Iluminat stradal Mijloace de transport în comun Asfaltate
Comision
standard

Vecinătăți:

Shopping :
- Lidl, Profi, Penny, Pepco, Carrefour
Educatie :
- Gradinitele Nr. 32, 14, 11, 19
- Scoala Generala Nr. 25 ,Nr. 14
- Grup Scolar Azur, Liceul Iris
Spatii recreere :
- Parcul Padurice, Parcul Scuarul Elevilor,
Autobuze : Liniile 15, 16, E3, E2, 19

Disponibilitate proprietate:

Aprilie 2026

Puncte de interes

Mijloace transport
bus-station
Giroceana
Stații autobuz aprox. 92 m
bus-station
Giroceana
Stații autobuz aprox. 194 m
train-station
Halta Giroc hc
Stații tren aprox. 785 m
tram-station
Statie P. Pavlov Tv7
Stații tramvai aprox. 1360 m
Școală
university
CENTRU REGIONALDE PREGATIRE PROFESIONALA PENTRU MAGISTRATI, GIROC, tIMISOARA
Universități aprox. 345 m
university
Institutul de Cercetari pentru Energii Regenerabile
Universități aprox. 1210 m
kindergarten
Gradinita Program Prelungit Nr. 1
Gradinițe aprox. 1284 m
school
Școala generală nr. 14
Școli aprox. 1292 m
Recreere
supermarket
Carrefour Market
Supermarket aprox. 981 m
restaurant
DAF Junior
Restaurant aprox. 1126 m
park
Parc
Parcuri aprox. 1145 m
sports-ground
Teren sportiv
Terenuri sport aprox. 1678 m

Detalii despre preț și costuri

Prețul pe piață

Preț cerut: 96.000 €

Preț min. zonă
Preț max. zonă

56% dintre proprietățile similare ca zonă și nr. camere au prețul cerut mai mic. mai multe...

Bine de știut: prețul unei proprietăți este influențat și de alte caracteristici, cum ar fi: vechime, localizare, vecinătăți, suprafață, compartimentare, amenajări, dotări, etc. mai puțin...

Insight premium disponibil după login

Costuri cu achiziția

Fără credit
Credit ipotecar
Noua casă

i

Costuri adiționale mai puțin știute la achiziție: taxe notariale, comisioane etc.

Insight premium disponibil după login

Proprietăți recomandate

Detalii de contact

Abonează-te la newsletter să fii primul care primește cele mai noi recomandări de proprietăți și sfaturi de la experți.

Feedback apel

CONTACT

Creează alertă

Salvează căutarea ca să primești pe email ultimele anunțuri publicate

Apartamente cu 2 camere de vânzare în Giroc, Județul Timiș