Bloc nou cu finisaje superioare. Etaj intermediar. Loc de parcare

95.520 €

Giroc, Județul Timiș

Nr. cam.:
2
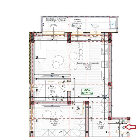
Sup. utilă:
47,76 mp
Etaj:
2 / 3
An constr.:
2026 (În construcție)
  • • Locație aproximativă

Descriere apartament

ZayHome va propune spre vanzare un bloc nou cu 3 etaje format din apartament cu 2 si 3 camere situat in Giroc,. Modele de apartamente cu 2 camere: - 40.67 mp utili + balcon 2.91 mp, disponibil la Etaj 2,3 - Pret: 79.300 Euro - 42.88 mp utili + balcon 7.05 mp, disponibil la Etaj 2,3- Pret: 83.600 Euro - 47.58 mp utili + balcon 6.39 mp, disponibil la Etaj 2,3 - Pret: 92.700 Euro - 47.76 mp utili + balcon 7.18 mp, disponibil la Etaj 2,3 - Pret: 93.000 Euro Modele de apartamente cu 3 camere: - 63.05 mp utili + balcon 6.40 mp, disponibil la Etaj 1 - Pret: 123.000 Euro - 72.03 mp utili + balcon 9.54 mp, disponibil la Etaj 1 - Pret: 140.000 Euro Fiecare apartament beneficiaza de 1 loc de parcare inclus in pret. Apartamentele de la etajul 3 au spatiu de depozitare cu acces din interior. Dotari: - Centrala termica proprie cu incalzire prin pardosea - Geamuri heliomate - Usa intrare metalica - Usi interioare MDF - Parchet laminat de 10 cm - Tamplarie Barrier - Inaltimea camerelor generoasa de 3m - Prize anti electrocutare - Finisaje din gama superioara - Pod izolat cu spuma - Plase tantari la geamuri - Videointerfon - Loc de parcare - Supraveghere video asupra imobilului Apartamentele se predau finisate " la cheie" si vor fi racordate la toate utilitatile publice. Finisaje la alegere din gama dezvoltatorului. Pozele sunt cu titlu informativ din proiectul anterior. Lasa procesul de achizitie al imobilului mult visat in seama noastra, vei avea mai putine griji si vei beneficia de consultanta imobiliara, financiar-bancara si juridica pe tot parcusul acestuia. Te asteptam cu drag la o vizionare!
Citește mai mult Citește mai puțin
Confort 1 1 Balcon / Terasă / Logie Aer condiționat Centrală proprie Încălzire prin pardoseală 1 Parcare

Detalii apartament

ID anunț: XC6P100V9 Copiat! 274279783 Copiat!
Actualizat în: 22 Aprilie 2026
Suprafață construită: 57.13 mp
Nr. bucătării: 1
Nr. băi: 1
Structură rezistență: Cărămidă
Tip imobil: Bloc de apartamente
Regim înălțime: P+3E

Utilități

Pereți
Faianță Vopsea lavabilă
Podele
Gresie Parchet
Ușă intrare
Metal
Izolații termice
Exterior
Ferestre cu geam termopan
PVC
Contorizare
Apometre Contor gaz
Facilități imobil
Acoperiș Videointerfon
Utilități
Curent Apă Canalizare CATV Gaze Telefon
Internet
Cablu
Amenajare străzi
Iluminat stradal Mijloace de transport în comun Asfaltate
Comision
standard

Disponibilitate proprietate:

Iunie 2026

Puncte de interes

Mijloace transport
train-station
Halta Giroc hc
Stații tren aprox. 331 m
bus-station
Giroc
Stații autobuz aprox. 361 m
bus-station
Giroceana
Stații autobuz aprox. 461 m
train-station
Halta Semenic Hm (en)
Stații tren aprox. 1654 m
Școală
university
CENTRU REGIONALDE PREGATIRE PROFESIONALA PENTRU MAGISTRATI, GIROC, tIMISOARA
Universități aprox. 1105 m
school
Scoala Generala si Gradinita Giroc (en)
Școli aprox. 1159 m
school
Scoala Gimnaziala Giroc
Școli aprox. 1162 m
university
Institutul de Cercetari pentru Energii Regenerabile
Universități aprox. 1993 m
Recreere
restaurant
DAF Junior
Restaurant aprox. 365 m
supermarket
Carrefour Market
Supermarket aprox. 516 m
park
Parc
Parcuri aprox. 605 m
supermarket
Profi City
Supermarket aprox. 706 m

Detalii despre preț și costuri

Prețul pe piață

Preț cerut: 95.520 €

Preț min. zonă
Preț max. zonă

81% dintre proprietățile similare ca zonă și nr. camere au prețul cerut mai mic. mai multe...

Bine de știut: prețul unei proprietăți este influențat și de alte caracteristici, cum ar fi: vechime, localizare, vecinătăți, suprafață, compartimentare, amenajări, dotări, etc. mai puțin...

Insight premium disponibil după login

Costuri cu achiziția

Fără credit
Credit ipotecar
Noua casă

i

Costuri adiționale mai puțin știute la achiziție: taxe notariale, comisioane etc.

Insight premium disponibil după login

Proprietăți recomandate

Detalii de contact

Abonează-te la newsletter să fii primul care primește cele mai noi recomandări de proprietăți și sfaturi de la experți.

Feedback apel

CONTACT

Creează alertă

Salvează căutarea ca să primești pe email ultimele anunțuri publicate

Apartamente cu 2 camere de vânzare în Giroc, Județul Timiș