BRAYTIM - 3 Camere - 2 Bai - Terasa 64 mp - Dressing - Finisaje la alegere

135.000 €

Giroc, Județul Timiș

Nr. cam.:
3
Sup. utilă:
73,5 mp
Etaj:
3 / 3
An constr.:
2025 (Finalizată)
  • • Locație aproximativă
  • • Vizionare prin apel video

Descriere apartament

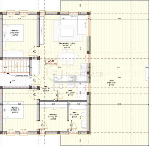
PRIMUM IMOBILIARE are placerea de a va prezenta spre vanzare un apartament spatios de tip penthouse cu 3 camere, situat in zona Braytim, intr-o zona cu potential investitional. Apartamentul este bine compartimentat, cu o asezare utila si inteligenta a suprafetelor, avand totodata si o terasa superba cu iesire din living si din dormitorul matrimonial. Apartamentul dispune de 73,5 mp utili + terasa de 64 mp, iar apartamentul are urmatoarea compartimentare: - living; - bucatarie deschisa; - dormitor; - dormtior matrimonial cu baie si dressing; - baie; - hol de trecere; Confortul termic se realizeaza prin centrala proprie, cu incalzire in pardoseala. In pretul de vanzare este inclus si un loc de parcare privat, inscris in CF. In momentul de fata, exista posibilitatea de alegere a finisajelor dupa bunul plac! In bloc mai este disponibil un apartament cu 3 camere si 2 bai, avand 76 mp utili + terasa de 30 mp, pretul fiind de 132.000 Euro cu TVA inclus. Se accepta credit. Pentru mai multe detalii si pentru o vizionare, nu ezitati sa ne contactati!
Citește mai mult Citește mai puțin
Confort lux Semidecomandat Centrală proprie Încălzire prin pardoseală 1 Parcare

Detalii apartament

ID anunț: XCPS1087M Copiat! 257407601 Copiat!
Actualizat în: 15 Aprilie 2026
Suprafață utilă totală: 73.5 mp
Suprafață construită: 160 mp
Nr. bucătării: 1
Nr. băi: 2
Structură rezistență: Cărămidă
Tip imobil: Bloc de apartamente
Regim înălțime: P+3E

Utilități

Destinație
Rezidențial
Pereți
Faianță Vopsea lavabilă
Podele
Parchet Gresie
Ușă intrare
Metal
Uși interior
PVC
Izolații termice
Exterior
Ferestre cu geam termopan
PVC
Contorizare
Apometre Contor gaz
Alte spații utile
Terasă
Utilități
Apă Curent Gaze Canalizare Telefon CATV
Amenajare străzi
Pietruite

Certificat energetic:

Clasa energetică: A

Puncte de interes

Mijloace transport
bus-station
Apicultorilor
Stații autobuz aprox. 1226 m
bus-station
Venus
Stații autobuz aprox. 1231 m
trolleybus-station
Statie Sudului bucla T16
Stații troleibuz aprox. 1309 m
tram-station
Statie I.O.T. Tv4
Stații tramvai aprox. 1481 m
Școală
kindergarten
Piticii din Vest
Gradinițe aprox. 1066 m
kindergarten
Gradinita Goghita
Gradinițe aprox. 1203 m
university
CENTRU REGIONALDE PREGATIRE PROFESIONALA PENTRU MAGISTRATI, GIROC, tIMISOARA
Universități aprox. 1285 m
school
Campus scolar Colegiul Tehnic Electrotimis
Școli aprox. 1327 m
Recreere
park
Viitor Parc Braytim
Parcuri aprox. 825 m
restaurant
Arizona
Restaurant aprox. 1038 m
sports-ground
Arena Ciarda Rosie
Terenuri sport aprox. 1118 m
supermarket
Profi
Supermarket aprox. 1409 m

Detalii despre preț și costuri

Prețul pe piață

Preț cerut: 135.000 €

Preț min. zonă
Preț max. zonă

63% dintre proprietățile similare ca zonă și nr. camere au prețul cerut mai mic. mai multe...

Bine de știut: prețul unei proprietăți este influențat și de alte caracteristici, cum ar fi: vechime, localizare, vecinătăți, suprafață, compartimentare, amenajări, dotări, etc. mai puțin...

Insight premium disponibil după login

Costuri cu achiziția

Fără credit
Credit ipotecar
Noua casă

i

Costuri adiționale mai puțin știute la achiziție: taxe notariale, comisioane etc.

Insight premium disponibil după login

Proprietăți recomandate

Detalii de contact

PRIMUM

Vlad Stefanescu Team Leader si Consultant Imobiliar

4.88(3 review-uri)

PRIMUM
PRO

Abonează-te la newsletter să fii primul care primește cele mai noi recomandări de proprietăți și sfaturi de la experți.

Feedback apel

CONTACT

Creează alertă

Salvează căutarea ca să primești pe email ultimele anunțuri publicate

Apartamente noi cu 3 camere de vânzare în Giroc, Județul Timiș