Penthouse 3 camere | Spațios | Giroc - Zona Lidl

136.500 €

Giroc, Județul Timiș

Nr. cam.:
3
Sup. utilă:
82 mp
Etaj:
3 / 3
An constr.:
2024 (Finalizată)
  • • Locație aproximativă
  • • Vizionare prin apel video

Descriere apartament

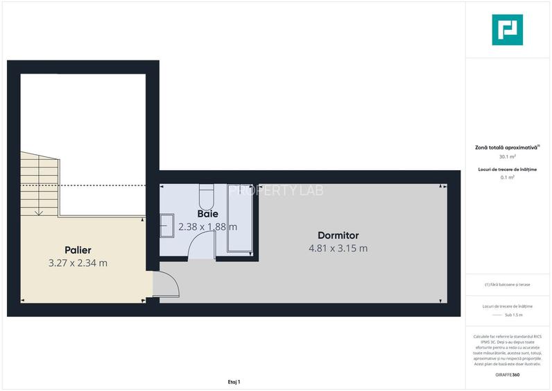
Penthouse modern cu 3 camere | Giroc – Zona Lidl Acest penthouse îmbină eleganța și funcționalitatea într-un spațiu perfect pentru un stil de viață modern. Proprietatea se adresează atât celor care caută o locuință permanentă într-o zonă liniștită, cât și investitorilor interesați de o achiziție sigură și profitabilă. ~ Detalii generale: • Suprafață utilă: 82 mp + balcon • Loc de parcare inclus în preț ~ Compartimentare și design: • 2 dormitoare spațioase • Living generos și luminos • 2 băi moderne, cu finisaje de calitate • Terasă generoasă, ideală pentru relaxare în aer liber • Scară interioară elegantă, cu acces către etajul superior ~ Avantaje ale locației: • Zona Lidl – Giroc, cu acces rapid la principalele artere de circulație • Aproape de supermarketuri, farmacii, cafenele și alte facilități comerciale • Cartier rezidențial liniștit, bine conectat la infrastructura locală ~ Beneficii suplimentare: • Apartament finalizat – disponibil pentru mutare imediată • Consultanță gratuită pentru obținerea celui mai avantajos credit • Potrivit pentru locuire permanentă sau investiție pe termen lung Contact: Marian Dobre – Consultant Imobiliar PropertyLab Timișoara Telefon: E-mail: Cod Proprietate: 2742754
Citește mai mult Citește mai puțin
Confort 1 Semidecomandat Nemobilat 1 Balcon / Terasă / Logie Centrală proprie Încălzire prin pardoseală 1 Parcare

Detalii apartament

ID anunț: X5I1101UN Copiat! 274196282 Copiat!
Actualizat în: 23 Aprilie 2026
Suprafață construită: 98 mp
Nr. bucătării: 1
Nr. băi: 2
Tip imobil: Bloc de apartamente
Regim înălțime: P+3E+M

Utilități

Destinație
Rezidențial
Podele
Gresie Parchet
Izolații termice
Exterior
Utilități
Curent Apă Canalizare CATV Gaze Telefon
Internet
Cablu
Amenajare străzi
Iluminat stradal Mijloace de transport în comun Betonate
Comision
standard

Disponibilitate proprietate:

Imediat

Puncte de interes

Mijloace transport
bus-station
Statie Rascoala 1907 E7 si M36
Stații autobuz aprox. 1224 m
bus-station
Metro
Stații autobuz aprox. 1239 m
bus-station
Statie Real A33, E5
Stații autobuz aprox. 1381 m
train-station
Gara Timișoara Vest
Stații tren aprox. 1767 m
Școală
school
Scoala Generala nr. 29
Școli aprox. 1559 m
school
Școala generală nr.29
Școli aprox. 1564 m
kindergarten
Gradinita Program Prelungit Nr. 7
Gradinițe aprox. 1572 m
Recreere
supermarket
Metro
Supermarket aprox. 1182 m
park
Parc
Parcuri aprox. 1447 m
supermarket
Auchan
Supermarket aprox. 1765 m
restaurant
Cantina Restaurant Bavaria (en)
Restaurant aprox. 1867 m

Detalii despre preț și costuri

Prețul pe piață

Preț cerut: 136.500 €

Preț min. zonă
Preț max. zonă

65% dintre proprietățile similare ca zonă și nr. camere au prețul cerut mai mare. mai multe...

Bine de știut: prețul unei proprietăți este influențat și de alte caracteristici, cum ar fi: vechime, localizare, vecinătăți, suprafață, compartimentare, amenajări, dotări, etc. mai puțin...

Insight premium disponibil după login

Costuri cu achiziția

Fără credit
Credit ipotecar
Noua casă

i

Costuri adiționale mai puțin știute la achiziție: taxe notariale, comisioane etc.

Insight premium disponibil după login

Proprietăți recomandate

Detalii de contact

PROPERTY LAB

Marian Dobre Real Estate Consultant Timisoara

PROPERTY LAB

Abonează-te la newsletter să fii primul care primește cele mai noi recomandări de proprietăți și sfaturi de la experți.

Feedback apel

CONTACT

Creează alertă

Salvează căutarea ca să primești pe email ultimele anunțuri publicate

Apartamente noi cu 3 camere de vânzare în Giroc, Județul Timiș