4

Complex NOU! Avans 20% Ap 2 camere, Pret Promotional!

73.000 €

Aeroport, Iași

Nr. cam.:
2
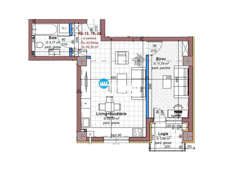
Sup. utilă:
42 mp
Etaj:
1 / 3
An constr.:
2025 (În construcție)
  • • Comision 0%
  • • Locație aproximativă
  • • Vizionare prin apel video

Descriere apartament

PANORAMIC RESIDENCE deschide vanzarile pentru noul proiect imobiliar situat in zona Cug – Valea Adanca, una dintre cele mai dinamice si cautate arii ale orasului. Amplasat excelent, ansamblul se afla in imediata apropiere a supermarketurilor, farmaciilor, spalatoriei auto, restaurantelor, cofetariilor si statiilor de transport in comun, oferind viitorilor locatari confort maxim si acces rapid la toate facilitatile esentiale. Proiectul se remarca printr-un concept modern, atent gandit pentru a raspunde nevoilor actuale ale clientilor: spatii bine compartimentate, blocuri bine organizate si o comunitate rezidentiala in plina dezvoltare. Panoramic Residence cuprinde 530 de apartamente noi, cu 1, 2 si 3 camere, toate decomandate si proiectate pentru a oferi luminozitate, confort si eficienta in utilizarea spatiului. Constructiile sunt realizate la standarde ridicate de siguranta si calitate, folosind materiale si tehnologii moderne pentru durabilitate pe termen lung. Ansamblul pune la dispozitia viitorilor proprietari 550 de locuri de parcare, atat supraterane, cat si subterane, disponibile spre achizitie. Cele 13 blocuri ale complexului au un regim de inaltime P + 3 etaje, formand un ansamblu aerisit si bine structurat. Accesul este facil datorita liniilor de autobuz care fac legatura directa cu zonele centrale ale orasului. Apartamentele se predau la cheie, complet finisate, bransate la utilitati si contorizate individual. Toate spatiile comune, inclusiv casa scarii si caile de acces, sunt finalizate si amenajate la standarde superioare. Pentru mai multe detalii vizite contactati reprezentantul nostru Tiberiu Ghiatau :
Citește mai mult Citește mai puțin
Confort lux Decomandat 1 Balcon / Terasă / Logie Centrală proprie

Detalii apartament

ID anunț: X3V4104B1 Copiat! 272951050 Copiat!
Actualizat în: 26 Martie 2026
Suprafață utilă totală: 42 mp
Suprafață construită: 42 mp
Nr. băi: 1
Structură rezistență: Altele
Tip imobil: Bloc de apartamente
Regim înălțime: P+3E

Utilități

Destinație
Rezidențial
Izolații termice
Exterior
Ferestre cu geam termopan
PVC
Comision
0%

Puncte de interes

Mijloace transport
bus-station
Statia "Tehnopolis", linia 27,41,41b,44
Stații autobuz aprox. 204 m
bus-station
Tehnopolis
Stații autobuz aprox. 222 m
bus-station
Statia "Biserica Inaltarea Domnului", linia 27,41,41b,44
Stații autobuz aprox. 445 m
train-station
Statia abandonata CUG Iasi
Stații tren aprox. 1138 m
Școală
school
Scoala "Nicolae Iorga"
Școli aprox. 691 m
school
Scoala Generala nr. 42
Școli aprox. 699 m
kindergarten
Gradinita cu program normal nr.26
Gradinițe aprox. 988 m
kindergarten
Gradinita cu program prelungit Nr. 1
Gradinițe aprox. 1190 m
Recreere
park
Parc
Parcuri aprox. 112 m
supermarket
Supermarket SMART CUG
Supermarket aprox. 161 m
restaurant
Selya-
Restaurant aprox. 212 m
sports-ground
Teren sportiv
Terenuri sport aprox. 1409 m

Detalii despre preț și costuri

Prețul pe piață

Preț cerut: 73.000 €

Preț min. zonă
Preț max. zonă

67% dintre proprietățile similare ca zonă și nr. camere au prețul cerut mai mare. mai multe...

Bine de știut: prețul unei proprietăți este influențat și de alte caracteristici, cum ar fi: vechime, localizare, vecinătăți, suprafață, compartimentare, amenajări, dotări, etc. mai puțin...

Insight premium disponibil după login

Costuri cu achiziția

Fără credit
Credit ipotecar
Noua casă

i

Costuri adiționale mai puțin știute la achiziție: taxe notariale, comisioane etc.

Insight premium disponibil după login

Proprietăți similare

Apartament cu 3 camere decomandat în Aeroport
79.900 € + TVA
Iași, Aeroport
3 camere
71 mp
Etaj 1
Apartament cu 2 camere semidecomandat în Aeroport
79.900 €
Iași, Aeroport
2 camere
50,2 mp
Parter / 3
Apartament cu 2 camere decomandat în Tătărași
72.000 €
Iași, Tătărași
2 camere
54 mp
Etaj 3

Detalii de contact

Imperia Imobiliare

Tiberiu GHIATAU MANAGER PROIECTE REZIDENTIALE

Imperia Imobiliare
PRO

Abonează-te la newsletter să fii primul care primește cele mai noi recomandări de proprietăți și sfaturi de la experți.

CONTACT

Creează alertă

Salvează căutarea ca să primești pe email ultimele anunțuri publicate

Apartamente cu 2 camere de vânzare în Iași, Județul Iași