Alexandru cel Bun, Piata, apartament cu 3 camere, liber

105.000 €

Alexandru cel Bun, Iași

Nr. cam.:
3
Sup. utilă:
55 mp
Etaj:
2 / 4
An constr.:
1981 (Finalizată)
  • • Exclusivitate
  • • Locație exactă
  • • Vizionare prin apel video

Descriere apartament

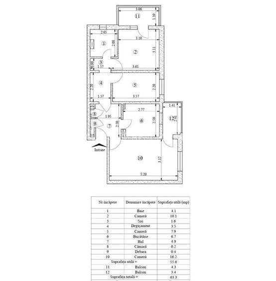
Se vinde apartament cu 3 camere, decomandat, model cu 2 balcoane si baie cu geam.Apartamntul este simplu, fara imbunatatiri recente, dotat doar cu centrala termica ( necesita inlocuire), instalatie gaz separata, fiind numai bun pentru a fi personalizat de viitorul proprietar.
Citește mai mult Citește mai puțin
Confort 1 Decomandat 2 Balcoane / Terase / Logii Centrală proprie Necesită renovare

Detalii apartament

ID anunț: X4A0000BM Copiat! 275236545 Copiat!
Actualizat în: 10 Martie 2026
Suprafață utilă totală: 55 mp
Suprafață construită: 64 mp
Nr. bucătării: 1
Nr. băi: 1
Structură rezistență: Altele
Tip imobil: Bloc de apartamente
Regim înălțime: P+4E

Utilități

Destinație
Rezidențial
Ușă intrare
Metal
Uși interior
Celulare
Izolații termice
Exterior
Ferestre cu geam termopan
PVC
Contorizare
Apometre Contor gaz
Facilități imobil
Interfon
Utilități
Apă Curent Gaze Canalizare CATV
Amenajare străzi
Asfaltate Iluminat stradal Mijloace de transport în comun

Certificat energetic:

Clasa energetică: C

Vecinătăți:

Scoala/gradinita, Piata, Trafic Pietonal, Supermarket, Zona comerciala, Autobuz

Puncte de interes

Mijloace transport
bus-station
Piata ACB
Stații autobuz aprox. 69 m
bus-station
Statia "Piata A.C.B", linia 28,44
Stații autobuz aprox. 136 m
tram-station
Statia "Subpasaj ACB", linia 2,6
Stații tramvai aprox. 254 m
train-station
Gara Iasi
Stații tren aprox. 727 m
Școală
school
Liceul Scolar Economic Nr.3 (Turism)
Școli aprox. 102 m
kindergarten
Gradinita cu Program Prelungit nr. 24
Gradinițe aprox. 277 m
school
Liceul Teoretic "Miron Costin"
Școli aprox. 315 m
university
Facultatea de Interpretare
Universități aprox. 803 m
Recreere
park
Parc
Parcuri aprox. 162 m
supermarket
LA DOI PASI
Supermarket aprox. 483 m
sports-ground
Teren sportiv
Terenuri sport aprox. 591 m
mall
Galeriile Ștefan cel Mare
Mall aprox. 932 m

Detalii despre preț și costuri

Prețul pe piață

Preț cerut: 105.000 €

Preț min. zonă 79.900 €
Preț max. zonă 149.900 €

70% dintre proprietățile similare ca zonă și nr. camere au prețul cerut mai mic. mai multe...

Bine de știut: prețul unei proprietăți este influențat și de alte caracteristici, cum ar fi: vechime, localizare, vecinătăți, suprafață, compartimentare, amenajări, dotări, etc. mai puțin...

Costuri cu achiziția

Fără credit
6.346 RON
Credit ipotecar
7.904 RON
Noua casă
675 RON+ taxe notariale

i

Costuri adiționale mai puțin știute la achiziție: taxe notariale, comisioane etc.

Proprietăți similare

Apartament cu 3 camere decomandat în Alexandru cel Bun
115.000 €
Iași, Alexandru cel Bun
3 camere
74 mp
Etaj 2
Apartament cu 3 camere semidecomandat, mobilat în Alexandru cel Bun
96.000 €
Iași, Alexandru cel Bun
3 camere
49 mp
Etaj 2
Apartament cu 3 camere decomandat în Alexandru cel Bun
114.900 €
Iași, Alexandru cel Bun
3 camere
72 mp
Etaj 9 / 10

Detalii de contact

Abonează-te la newsletter să fii primul care primește cele mai noi recomandări de proprietăți și sfaturi de la experți.

CONTACT

Creează alertă

Salvează căutarea ca să primești pe email ultimele anunțuri publicate

Apartamente cu 3 camere de vânzare în zona Alexandru cel Bun, Iași