Ultracentral | proprietate extrem de rara pe piata imobiliara | D+P

300.000 €

Central, Iași

Nr. cam.:
10
Sup. utilă:
234 mp
Etaj:
Demisol / 1
An constr.:
1934 (Finalizată)
  • • Locație exactă

Descriere apartament

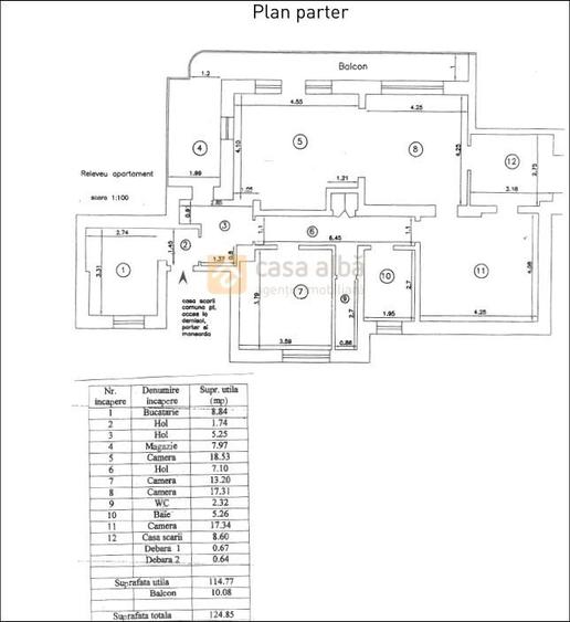
Agentia imobiliara Casa Alba va prezinta spre vanzare o proprietate extrem de rara pe piata imobiliara, excelent pozitionata in zona Ultracentrala, in imediata vecinatate a facultatii de Medicina si Farmacie si a Spitalului Sf. Spiridon, iind amplasata intr-o zona exclusivista de case. Proprietatea, respectiv demisolul si parterul cladirii cu 2 etaje, beneficiaza de o suprafata utila de 234 mp, atent compartimentata astfel: * Parter - suprafata utila de 114.77mp si un balcon de 10.08mp, compartimentat in bucatarie, 3 holuri, 4 camere, 2 debarale, magazie, 2 grupuri sanitare; * Demisol - suprafata utila de 119.28mp, compartimentat in 4 camere, 3 debarale, bucatarie, 2 grupuri sanitare, magazie, hol. Etajele 1 si 2 ale cladirii nu fac obiectul vanzarii, avand un alt proprietar. Locuinta beneficiaza de un garaj si de o gradina de 130mp, ideala pentru relaxare si deconectare de la agitatia si stresul cotidian. Datorita pozitionarii, imobilul se inscrie in portofoliul ofertelor premium existente pe piata imobiliara din Iasi. Puteti achizitiona aceasta proprietate unica, pentru suma de 300.000 euro. Sunati acum pentru a programa o vizionare! Pentru informatii suplimentare sau oferte, va rugam contactati consultantul Emilian Tarcan, la numarul de telefon sau accesati , ID PROPRIETATE 1322704.
Citește mai mult Citește mai puțin
Confort 1 Decomandat Calorifere Bine întreținut (Bună)

Detalii apartament

ID anunț: X0BG102CL Copiat! 275303359 Copiat!
Actualizat în: 18 Martie 2026
Suprafață construită: 234 mp
Structură rezistență: Cărămidă
Tip imobil: Casă/Vilă
Regim înălțime: D+P+1E

Utilități

Podele
Parchet
Utilități
Curent Apă Canalizare CATV Gaze Telefon
Internet
Cablu
Amenajare străzi
Iluminat stradal Mijloace de transport în comun Asfaltate
Comision
standard

Disponibilitate proprietate:

Imediat

Puncte de interes

Mijloace transport
bus-station
Piata Independentei
Stații autobuz aprox. 240 m
bus-station
Statia "Piata Independentei", linia 6b,18,20,28,41,42,43,43c,41b,46
Stații autobuz aprox. 260 m
tram-station
Statia "Piata Eminescu", linia 1,13
Stații tramvai aprox. 447 m
train-station
Gara Iasi
Stații tren aprox. 1065 m
Școală
school
Scoala Postliceala Sanitara de Stat "Grigore Ghica Voda"
Școli aprox. 92 m
school
Scoala soferi Vip Bdb Class
Școli aprox. 173 m
university
Universitatea Veche"
Universități aprox. 224 m
kindergarten
Gradinita nr 20
Gradinițe aprox. 496 m
Recreere
park
Piata Independentei
Parcuri aprox. 188 m
public-square
Independence Square (en)
Piețe publice aprox. 194 m
mall
Galeriile Ștefan cel Mare
Mall aprox. 740 m
supermarket
Magazinul Casei Tale
Supermarket aprox. 783 m

Detalii despre preț și costuri

Costuri cu achiziția

Fără credit
13.197 RON
Credit ipotecar
15.583 RON
Noua casă
1.668 RON+ taxe notariale

i

Costuri adiționale mai puțin știute la achiziție: taxe notariale, comisioane etc.

Proprietăți similare

Apartament cu 4 camere decomandat în Central
280.000 €
Iași, Central
4 camere
95 mp
Etaj 8
Apartament cu 3 camere decomandat în Central
289.527 €
Iași, Central
3 camere
81,1 mp
Etaj 4 / 4
Apartament cu 4 camere semidecomandat, mobilat în Central
320.000 €
Iași, Central
4 camere
93 mp
Etaj 11

Detalii de contact

Casa Alba

Emilian Tarcan Senior consultant vanzari

Casa Alba
PRO

Abonează-te la newsletter să fii primul care primește cele mai noi recomandări de proprietăți și sfaturi de la experți.

CONTACT

Creează alertă

Salvează căutarea ca să primești pe email ultimele anunțuri publicate

Apartamente cu 4+ camere de vânzare în zona Central, Iași