Apartament/spatiu bloc nou finalizat 2 camere Copou- Royal Town

149.900 €

Copou, Iași

Nr. cam.:
2
Sup. utilă:
50 mp
Etaj:
Parter / 11
An constr.:
2025
  • • Locație aproximativă

Descriere apartament

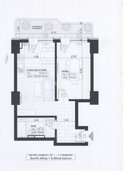
Ideal pentru o firma ca: spatiu de birouri sau diferite activitati. Deschiderea acestui apartament este catre magazinul Mega Image, la parter. !!Loc parcare+Tva 21% inclus Apartamentul/spatiu este nou,intabulat, are suprafata totala de 50 mp, din care 9 mp terasa si este situat la parter/11 într-un bloc care este finalizat în 2025. Apartamentul dispune de: · – Centrală termică în condensare marca Ariston cu operare digitală de pe telefonul mobil – Tâmplărie exterioară PVC Qfort 82 cm, 7 camere profil, cu 3 foi de sticlă – Uși interioare din lemn cu toc reglabil – Parchet 10 mm conceput special pentru încălzirea în pardoseală – Încălzire în pardoseală, kit complet REHAU – Obiecte sanitare încastrate și suspendate VILLEROY & BOCH, robineți GROHE – Pardoseli placate cu marmură (hol, baie, bucătărie) – Întrerupătoare digitale și videointerfon – Aer condiționat – Glafuri marmură interior/exterior – Înălțimea camerelor de 2,75 m – Gresie holuri comune ITALIA – Lifturi SCHINDLER de ultima generație Viteza 1m/s Clasa energetică : A Consumul total de energie primară: 122,24 Indicele de emisii echivalent CO2: 26,12 Consumul total specific de energie din surse regenerabile : 0 Pret 149900 euro. !!! Prețul include locul de parcare si TVA 21% inclus. Pentru detalii si vizionari apelati la numarul: Mihaela Tehutu
Citește mai mult Citește mai puțin
Confort 1 Nemobilat 1 Balcon / Terasă / Logie Alte metode electrice Centrală proprie Încălzire prin pardoseală

Detalii apartament

ID anunț: XD6T000O2 Copiat! 275034083 Copiat!
Actualizat în: 19 Februarie 2026
Suprafață utilă totală: 54 mp
Suprafață construită: 60 mp
Nr. bucătării: 1
Nr. băi: 1
Structură rezistență: Cărămidă
Tip imobil: Bloc de apartamente
Regim înălțime: P+11E

Utilități

Destinație
Rezidențial Birouri
Pereți
Faianță
Podele
Gresie Parchet
Diverse
Senzor de fum
Facilități imobil
Lift Videointerfon
Utilități
Gaze Curent Canalizare Apă
Amenajare străzi
Mijloace de transport în comun
Comision
discutabil%

Certificat energetic:

Clasa energetică: B

Puncte de interes

Mijloace transport
bus-station
Statia "I.V.V Copou", linia 6b
Stații autobuz aprox. 87 m
bus-station
Breazu
Stații autobuz aprox. 702 m
bus-station
Liceul Agricol
Stații autobuz aprox. 836 m
bus-station
Statia "Liceul Pedagogic", linia 6b
Stații autobuz aprox. 874 m
Școală
school
Scoala Normala 'Vasile Lupu'
Școli aprox. 291 m
school
Colegiul Agricol si de industrie alimentara Vasile Adamachi
Școli aprox. 769 m
university
Universitatea de Științe Agricole și Medicină Veterinară "Ion Ionescu de la Brad"- Facultatea de Medicina Veterinara si Facultatea de Zootehnie
Universități aprox. 1811 m
university
Agricultural and Veterinary Medicine University (en)
Universități aprox. 1969 m
Recreere
sports-ground
Teren sportiv
Terenuri sport aprox. 241 m
park
Parc
Parcuri aprox. 362 m
restaurant
La Castel
Restaurant aprox. 920 m
sports-ground
Teren sportiv
Terenuri sport aprox. 1106 m

Detalii despre preț și costuri

Prețul pe piață

Preț cerut: 149.900 €

Preț min. zonă 95.000 €
Preț max. zonă 183.000 €

86% dintre proprietățile similare ca zonă și nr. camere au prețul cerut mai mic. mai multe...

Bine de știut: prețul unei proprietăți este influențat și de alte caracteristici, cum ar fi: vechime, localizare, vecinătăți, suprafață, compartimentare, amenajări, dotări, etc. mai puțin...

Costuri cu achiziția

Fără credit
8.049 RON
Credit ipotecar
9.798 RON
Noua casă
904 RON+ taxe notariale

i

Costuri adiționale mai puțin știute la achiziție: taxe notariale, comisioane etc.

Proprietăți similare

Apartament cu 3 camere decomandat în Copou
148.605 €
Iași, Copou
3 camere
88 mp
Etaj 1 / 10
Apartament cu 3 camere decomandat în Copou
148.605 €
Iași, Copou
3 camere
88 mp
Etaj 3 / 10
Apartament cu 2 camere decomandat în Copou
145.000 €
Iași, Copou
2 camere
60 mp
Parter

Detalii de contact

IMO HUB

Mihaela Tehutu

IMO HUB

Abonează-te la newsletter să fii primul care primește cele mai noi recomandări de proprietăți și sfaturi de la experți.

CONTACT

Creează alertă

Salvează căutarea ca să primești pe email ultimele anunțuri publicate

Apartamente noi cu 2 camere de vânzare în zona Copou, Iași