2 camere Copou - Sadoveanu - Intabulat

110.000 € + TVA

Copou, Iași

Nr. cam.:
2
Sup. utilă:
69 mp
Etaj:
5 / 5
An constr.:
2024 (În construcție)
  • • Exclusivitate
  • • Locație exactă
  • • Proprietate nelocuită

Descriere apartament

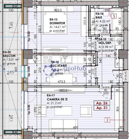
2 camere Copou – Sadoveanu | 69 mp | Intabulat | Mutare imediată Apartament modern în bloc nou P+5, orientare VEST, 56 mp utili + balcon 13 mp. Compartimentare practică: living cu balcon, bucătărie închisă, dormitor, dressing. ✔ Intabulat ✔ Disponibil imediat ✔ Finisaje premium, 2 lifturi ✔ Parcare supraterană + opțiune boxă 📞 Programează vizionarea – proprietățile intabulate din Copou se vând rapid.
Citește mai mult Citește mai puțin
Decomandat 1 Balcon / Terasă / Logie Servicii Curte Aer condiționat Alte metode electrice Centrală proprie Încălzire prin pardoseală 1 Parcare

Detalii apartament

ID anunț: XDB1100SM Copiat! 275127066 Copiat!
Actualizat în: 18 Martie 2026
Suprafață utilă totală: 69 mp
Suprafață construită: 85 mp
Nr. bucătării: 1
Nr. băi: 1
Structură rezistență: Cărămidă
Tip imobil: Bloc de apartamente
Regim înălțime: P+5E

Utilități

Destinație
Rezidențial Birouri
Pereți
Faianță
Podele
Gresie Parchet
Izolații termice
Exterior Interior
Ferestre cu geam termopan
PVC
Contorizare
Apometre
Facilități imobil
Lift Videointerfon
Utilități
Gaze Curent Canalizare Apă
Internet
Fibră optică
Servicii hoteliere
Curățenie Lenjerie de pat
Servicii imobil
Administrare Supraveghere video
Amenajare străzi
Iluminat stradal Mijloace de transport în comun
Comision
3%

Certificat energetic:

Clasa energetică: B

Puncte de interes

Mijloace transport
bus-station
Statia "I.V.V Copou", linia 6b
Stații autobuz aprox. 33 m
bus-station
Breazu
Stații autobuz aprox. 648 m
bus-station
Statia "Breazu", linia 6b
Stații autobuz aprox. 826 m
bus-station
Breazu
Stații autobuz aprox. 852 m
Școală
school
Scoala Normala 'Vasile Lupu'
Școli aprox. 318 m
school
Colegiul Agricol si de industrie alimentara Vasile Adamachi
Școli aprox. 813 m
school
SEMINARUL TEOLOGIC LICEAL ORTODOX SF. VASILE CEL MARE
Școli aprox. 961 m
university
Universitatea de Științe Agricole și Medicină Veterinară "Ion Ionescu de la Brad"- Facultatea de Medicina Veterinara si Facultatea de Zootehnie
Universități aprox. 1849 m
Recreere
sports-ground
Teren sportiv
Terenuri sport aprox. 250 m
park
Parc
Parcuri aprox. 394 m
restaurant
La Castel
Restaurant aprox. 865 m
sports-ground
Teren sportiv
Terenuri sport aprox. 1116 m

Detalii despre preț și costuri

Prețul pe piață

Preț cerut: 110.000 €

Preț min. zonă
Preț max. zonă

92% dintre proprietățile similare ca zonă și nr. camere au prețul cerut mai mare. mai multe...

Bine de știut: prețul unei proprietăți este influențat și de alte caracteristici, cum ar fi: vechime, localizare, vecinătăți, suprafață, compartimentare, amenajări, dotări, etc. mai puțin...

Insight premium disponibil după login

Costuri cu achiziția

Fără credit
Credit ipotecar
Noua casă

i

Costuri adiționale mai puțin știute la achiziție: taxe notariale, comisioane etc.

Insight premium disponibil după login

Proprietăți recomandate

Detalii de contact

ImoHub

Marius Arnautu

ImoHub
PRO

Abonează-te la newsletter să fii primul care primește cele mai noi recomandări de proprietăți și sfaturi de la experți.

CONTACT

Creează alertă

Salvează căutarea ca să primești pe email ultimele anunțuri publicate

Apartamente cu 2 camere de vânzare în zona Copou, Iași