1

Apartament de 2 camere, decomandat, 69mp, zona CUG

96.224 € + TVA

Cug, Iași

Nr. cam.:
2
Sup. utilă:
58 mp
Etaj:
2 / 11
An constr.:
2025 (În construcție)
  • • Locație aproximativă

Descriere apartament

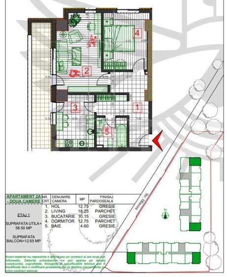
Blitz va propune pentru cumparare un apartament intr-un ansamblu rezidential din zona CUG. Acesta are o suprafata de 58 mp utili + 11 mp de balcon si este compus din: 1 dormitor, 1living, 1 bucatarie, 1 baie si 1 hol Proiectul este realizat la cele mai inalte standarde de calitate si siguranta. Acesta dispune de structura solida, elemente de rezistenta robuste si materiale durabile care asigura stabilitate pe termen lung. Compartimentarile interioare sunt gandite pentru a oferi functionalitate maxima, iar finisajele exterioare, inclusiv balcoanele cu detalii elegante din sticla, completeaza designul modern. Confortul este sporit prin sisteme tehnologice avansate, cum ar fi lifturi rapide, echipamente inteligente pentru accesul autovehiculelor, solutii de monitorizare pentru spatiile comune, garantand astfel un mediu sigur si bine organizat. Zona este linistita si bine conectata la infrastructura, avand acces facil catre mijloace de transport public, magazine, supermarket-uri, scoli, etc. Termen de finalizare: 07/2026 Va asteptam cu drag la vizionare! Cod oferta / ID BLITZ: P142578
Citește mai mult Citește mai puțin
Confort 1 Decomandat Nemobilat 1 Balcon / Terasă / Logie Centrală proprie

Detalii apartament

ID anunț: XFTI103J8 Copiat! 261105792 Copiat!
Actualizat în: 13 Martie 2026
Nr. bucătării: 1
Nr. băi: 1
Structură rezistență: Beton
Tip imobil: Bloc de apartamente
Regim înălțime: P+11E

Utilități

Destinație
Rezidențial
Pereți
Vopsea lavabilă
Podele
Parchet Gresie
Ușă intrare
Metal
Uși interior
Lemn
Izolații termice
Exterior
Utilități
Curent Apă Canalizare Gaze
Facilități imobil
Videointerfon Lift Spații agrement
Amenajare străzi
Asfaltate Iluminat stradal
Comision
%

Certificat energetic:

Clasa energetică: A

Disponibilitate proprietate:

imediat

Puncte de interes

Mijloace transport
bus-station
Tehnopolis
Stații autobuz aprox. 252 m
bus-station
Statia "Tehnopolis", linia 27,41,41b,44
Stații autobuz aprox. 261 m
train-station
Statia abandonata CUG Iasi
Stații tren aprox. 723 m
bus-station
statia "Otelarie", linia 44,41b
Stații autobuz aprox. 727 m
Școală
school
Scoala de Soferi Auto Tifache
Școli aprox. 690 m
school
Scoala "Nicolae Iorga"
Școli aprox. 979 m
kindergarten
Gradinita cu program normal nr.26
Gradinițe aprox. 1333 m
kindergarten
Gradinita cu program prelungit Nr. 1
Gradinițe aprox. 1512 m
Recreere
restaurant
Ana Maria (autoservire)
Restaurant aprox. 345 m
park
Parc
Parcuri aprox. 545 m
supermarket
Supermarket SMART CUG
Supermarket aprox. 607 m
sports-ground
Teren sportiv
Terenuri sport aprox. 1181 m

Detalii despre preț și costuri

Prețul pe piață

Preț cerut: 96.224 €

Preț min. zonă 63.500 €
Preț max. zonă 125.999 €

67% dintre proprietățile similare ca zonă și nr. camere au prețul cerut mai mare. mai multe...

Bine de știut: prețul unei proprietăți este influențat și de alte caracteristici, cum ar fi: vechime, localizare, vecinătăți, suprafață, compartimentare, amenajări, dotări, etc. mai puțin...

Costuri cu achiziția

Fără credit
6.883 RON
Credit ipotecar
8.490 RON
Noua casă
733 RON+ taxe notariale

i

Costuri adiționale mai puțin știute la achiziție: taxe notariale, comisioane etc.

Proprietăți recomandate

Detalii de contact

BLITZ

BLITZ ROMANIA

4.70(107 review-uri)

BLITZ
PRO

Abonează-te la newsletter să fii primul care primește cele mai noi recomandări de proprietăți și sfaturi de la experți.

CONTACT

Creează alertă

Salvează căutarea ca să primești pe email ultimele anunțuri publicate

Apartamente cu 2 camere de vânzare în zona Cug, Iași