2

Complex NOU Galata! Apartament 2 camere, statie autobuz, Kaufland

97.648 €

Galata, Iași

Nr. cam.:
2
Sup. utilă:
57 mp
Etaj:
3 / 5
An constr.:
2025 (În construcție)
  • • Comision 0%
  • • Locație exactă

Descriere apartament

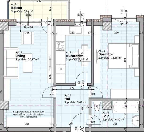
Apartament 2 camere, 57.44 mp - 97.648 euro la plata integrala si 103.392 euro la plata prin credit bancar cu avans minim 20% sau rate la dezvoltator cu avans minim 50% si diferenta in rate pe maxim 5 ani (se aplica dobanzi) Fara comisioane de intermediere! Cumparati direct de la dezvoltator! 0746 |758| 458 Apartamentul se afla in cel mai mare ansamblu rezidential din zona Galata. Situat la strada principala - sos. Voinesti, aproape de Nicolina - Belvedere si cu statia de autobuz chiar la intrarea in complex, apartamentele sunt destinate atat celor care vor sa locuiasca intr-o zona accesibila, cat si celor care isi doresc o zona linistita. Toate blocurile sunt construite pe cadre din beton, cu pereti interiori si exteriori din caramida, termoizolate la exterior. Finisajele sunt la alegerea viitorilor proprietari, iar accesul in complex este securizat cu bariera de acces cu telecomanda. Apartamentele se predau la cheie cu: -centrala termica individuala; -incalzire in pardoseala; -aer conditionat; -usa metalica la intrare si usi MDF la interior; -bai complet finisate si utilate cu obiecte sanitare; -tamplarie PVC cu 7 camere si geam tripan; -gresie, faianta, parchet; -apometre, contoare de gaz si energie electrica individuale pe casa scarii. Loc de parcare suprateran - 8000 euro Loc de parcare subteran - 10.000 euro COMISION 0% LA CUMPARARE Cumparati direct de la dezvoltator! Pentru mai multe detalii si informatii, consultati reprezentantul de vanzari, Tudor Cojocaru, la tel. 0746 |758| 458.
Citește mai mult Citește mai puțin
Confort 1 Decomandat 1 Balcon / Terasă / Logie Curte comună Calorifere Centrală proprie Renovat Bine întreținut (Bună)

Detalii apartament

ID anunț: X511003JP Copiat! 246452119 Copiat!
Actualizat în: 16 Martie 2026
Suprafață utilă totală: 57 mp
Suprafață construită: 67 mp
Nr. bucătării: 1
Nr. băi: 1
Structură rezistență: Beton
Tip imobil: Bloc de apartamente
Tip tranzacție: De vânzare prin agent
Regim înălțime: D+P+5E
Modalitate de plată: Cash sau Credit

Utilități

Destinație
Rezidențial
Pereți
Faianță Vopsea lavabilă
Podele
Gresie Parchet
Ușă intrare
Metal
Uși interior
Panel
Izolații termice
Exterior
Ferestre cu geam termopan
PVC
Contorizare
Contor gaz Apometre
Diverse
Senzor de fum Telecomandă poartă acces auto
Facilități imobil
Lift Interfon Acoperiș Videointerfon
Utilități
Curent Apă Canalizare CATV Telefon Telefon internațional
Internet
Cablu Fibră optică Wireless Dial-up
Servicii imobil
Administrare Supraveghere video
Amenajare străzi
Asfaltate Betonate Iluminat stradal Mijloace de transport în comun
Comision
0%

Certificat energetic:

Clasa energetică: B

Puncte de interes

Mijloace transport
bus-station
Statia "Policlinica Recuperare", linia 28,44,121
Stații autobuz aprox. 1809 m
bus-station
Mircea cel Batran
Stații autobuz aprox. 1878 m
bus-station
Spital Recuperare
Stații autobuz aprox. 1892 m
bus-station
Statia "Mircea cel Batran", linia 28,44
Stații autobuz aprox. 1897 m
Școală
school
Școala nr. 32 Tudor Arghezi (en)
Școli aprox. 1097 m
school
Sc Ctin Langa
Școli aprox. 1598 m
kindergarten
GRADINITA SI SCOALA PRIMARA LORELAY
Gradinițe aprox. 1814 m
kindergarten
Gradinita Lorelay
Gradinițe aprox. 1826 m
Recreere
park
Parc
Parcuri aprox. 1096 m
restaurant
Rospeto pizza
Restaurant aprox. 1473 m
sports-ground
Teren sportiv
Terenuri sport aprox. 1552 m
supermarket
MONELO STILL
Supermarket aprox. 1571 m

Istoricul prețurilor

Acces la informații premium după autentificare
Login Gratuit

Detalii despre preț și costuri

Prețul pe piață

Preț cerut: 97.648 €

Preț min. zonă
Preț max. zonă

61% dintre proprietățile similare ca zonă și nr. camere au prețul cerut mai mare. mai multe...

Bine de știut: prețul unei proprietăți este influențat și de alte caracteristici, cum ar fi: vechime, localizare, vecinătăți, suprafață, compartimentare, amenajări, dotări, etc. mai puțin...

Acces la informații premium după autentificare
Login Gratuit

Costuri cu achiziția

Fără credit
Credit ipotecar
Noua casă

i

Costuri adiționale mai puțin știute la achiziție: taxe notariale, comisioane etc.

Acces la informații premium după autentificare
Login Gratuit

Proprietăți similare

Apartament cu 2 camere decomandat în Galata
97.000 €
Iași, Galata
2 camere
55 mp
Etaj 4 / 5
Apartament cu 3 camere decomandat în Galata
88.000 €
Iași, Galata
3 camere
55 mp
Etaj 4
Apartament cu 2 camere decomandat în Galata
98.277 €
Iași, Galata
2 camere
57,81 mp
Etaj 1 / 3

Detalii de contact

CASA PRIMA

Tudor Cojocaru Consultant imobiliar

5.00(4 review-uri)

CASA PRIMA

Abonează-te la newsletter să fii primul care primește cele mai noi recomandări de proprietăți și sfaturi de la experți.

CONTACT

Creează alertă

Salvează căutarea ca să primești pe email ultimele anunțuri publicate

Apartamente cu 2 camere de vânzare în zona Galata, Iași