10

Galata - pe Iasi! Apartament 3 camere, 2 bai, 80 mp, pret cu tva inclus

143.745 €

Galata, Iași

Nr. cam.:
3
Sup. utilă:
80 mp
Etaj:
1 / 5
An constr.:
2025 (În construcție)
  • • Comision 0%
  • • Locație exactă

Descriere apartament

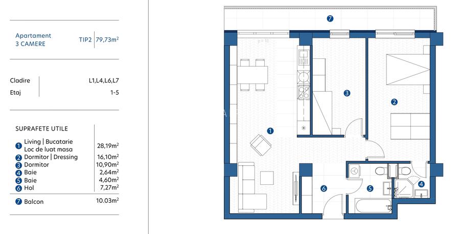
Apartament 3 camere, 79.73 mp - de la 143.745 euro cu TVA 21% inclus Se accepta plata prin CREDIT BANCAR cu avans 15%! Cumparati direct de la dezvoltator! 0% comision de intermediere! 0746 |758| 458 Apartamentul se afla in cel mai nou ansamblu rezidential din zona Galata - sos. Voinesti, cu acces extrem de facil din Nicolina, Cug si Galata, conectat la transportul in comun (trasee autobuz 23 si 502), in imediata apropiere a noului hipermarket Kaufland. Blocurile din complex sunt construite respectand cele mai stricte standarde, pe cadre din beton, cu zidarie din caramida YTONG, termoizolate la exterior cu vata bazaltica. Apartamentele se predau complet finisate, cu centrala termica Ariston in condensare, incalzire in pardoseala, tamplarie PVC Salamander, cu geam tripan 4S, gresie si faianta Delta Studio, parchet 10 mm Classen, usi MDF si bai complet utilate. Complexul va fi amenajat cu spatii verzi, piste de biciclete, preechipare statii de incarcare auto si panouri fotovoltaice. Locurile de parcare - 7000 euro (tva inclus) la exterior si 12.000 euro (tva inclus) la interior COMISION 0% LA CUMPARARE Pentru mai multe detalii si informatii, consultati reprezentantul de vanzari, Tudor Cojocaru, la tel.
0746.**** Vezi tot numărul
.
Citește mai mult Citește mai puțin
Confort 1 Decomandat 1 Balcon / Terasă / Logie Curte comună Centrală proprie Încălzire prin pardoseală Renovat Bine întreținut (Bună)

Detalii apartament

ID anunț: X511003FA Copiat! 240405631 Copiat!
Actualizat în: 02 Martie 2026
Suprafață utilă totală: 80 mp
Suprafață construită: 92 mp
Nr. bucătării: 1
Nr. băi: 2
Structură rezistență: Beton
Tip imobil: Bloc de apartamente
Regim înălțime: P+5E

Utilități

Destinație
Rezidențial
Pereți
Faianță Vopsea lavabilă
Podele
Gresie Parchet
Ușă intrare
Metal
Uși interior
Panel
Izolații termice
Exterior Interior
Ferestre cu geam termopan
PVC
Contorizare
Contor gaz Apometre
Diverse
Senzor de fum Telecomandă poartă acces auto
Facilități imobil
Lift Interfon Acoperiș Videointerfon
Utilități
Curent Apă Canalizare CATV Telefon Telefon internațional
Internet
Cablu Fibră optică Wireless Dial-up
Servicii imobil
Administrare Supraveghere video
Amenajare străzi
Asfaltate Iluminat stradal Mijloace de transport în comun
Comision
0%

Certificat energetic:

Clasa energetică: A

Puncte de interes

Școală
school
Școala nr. 32 Tudor Arghezi (en)
Școli aprox. 1240 m
school
Sc Ctin Langa
Școli aprox. 1565 m
kindergarten
GRADINITA SI SCOALA PRIMARA LORELAY
Gradinițe aprox. 1735 m
kindergarten
Gradinita Lorelay
Gradinițe aprox. 1751 m
Recreere
park
Parc
Parcuri aprox. 1112 m
restaurant
Rospeto pizza
Restaurant aprox. 1694 m
supermarket
MONELO STILL
Supermarket aprox. 1769 m
sports-ground
Teren sportiv
Terenuri sport aprox. 1828 m

Detalii despre preț și costuri

Prețul pe piață

Preț cerut: 143.745 €

Preț min. zonă 79.000 €
Preț max. zonă 160.000 €

72% dintre proprietățile similare ca zonă și nr. camere au prețul cerut mai mic. mai multe...

Bine de știut: prețul unei proprietăți este influențat și de alte caracteristici, cum ar fi: vechime, localizare, vecinătăți, suprafață, compartimentare, amenajări, dotări, etc. mai puțin...

Costuri cu achiziția

Fără credit
7.836 RON
Credit ipotecar
9.559 RON
Noua casă
872 RON+ taxe notariale

i

Costuri adiționale mai puțin știute la achiziție: taxe notariale, comisioane etc.

Proprietăți recomandate

Detalii de contact

CASA PRIMA

Tudor Cojocaru Consultant imobiliar

5.00(4 review-uri)

CASA PRIMA

Abonează-te la newsletter să fii primul care primește cele mai noi recomandări de proprietăți și sfaturi de la experți.

CONTACT

Creează alertă

Salvează căutarea ca să primești pe email ultimele anunțuri publicate

Apartamente cu 3 camere de vânzare în zona Galata, Iași