1

Mircea cel Batran - Apartament 2 Camere

74.900 €

Mircea cel Bătrân, Iași

Nr. cam.:
2
Sup. utilă:
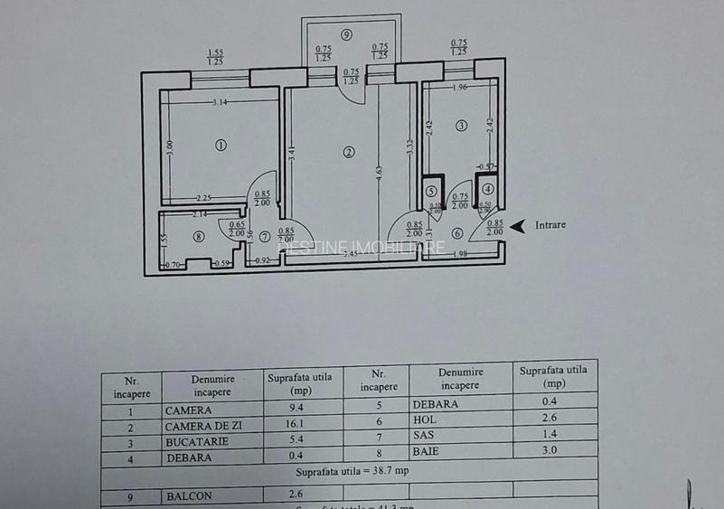
41,3 mp
Etaj:
1 / 4
An constr.:
1974 (Finalizată)
  • • Locație aproximativă

Descriere apartament

DESTINE IMOBILIARE va propune spre vanzare un apartament cu 2 camere situat in zona Mircea cel Batran, cu acces facil la transport, magazine, scoli si alte puncte de interes. Locuinta necesita renovare, oferind posibilitatea de a fi personalizata exact dupa preferintele viitorului proprietar. Caracteristici: - 2 camere, SEMIDECOMANDAT - Suprafata totala 41,2 mp - An constructie bloc: 1974 - Pozitionat pe mijloc - Etaj 1, perfect pentru familii sau investitii - Pret: 74.900€ O optiune excelenta pentru cei care cauta un spatiu cu potential intr-una dintre cele mai accesibile zone ale Iasului. Pentru mai multe detalii sau programarea unei vizionari: Ilie Loghin COD OFERTĂ: P - 4606 IMPORTANT Aceasta proprietate poate fi achizitionata si prin intermediul unui CREDIT, iar noi suntem aici sa va facilitam acest proces. Datorita parteneriatelor noastre stranse cu cele mai importante institutii bancare, va putem oferi asistenta GRATUITA in obtinerea finantarii potrivite pentru dumneavoastra: CREDIT IPOTECAR, PRIMA CASĂ sau de NEVOI PERSONALE. Pentru informatii suplimentare, nu ezitati sa ne contactati !
Citește mai mult Citește mai puțin
Semidecomandat 1 Balcon / Terasă / Logie Necesită renovare

Detalii apartament

ID anunț: XBCG103K4 Copiat! 274400154 Copiat!
Actualizat în: 12 Martie 2026
Nr. bucătării: 1
Nr. băi: 1
Structură rezistență: Beton
Tip imobil: Bloc de apartamente
Regim înălțime: D+P+4E

Utilități

Destinație
Rezidențial
Contorizare
Apometre
Utilități
Curent Apă Canalizare
Amenajare străzi
Asfaltate Iluminat stradal Mijloace de transport în comun
Comision
standard

Certificat energetic:

Clasa energetică: B

Disponibilitate proprietate:

imediat

Puncte de interes

Mijloace transport
bus-station
Mircea cel Batran
Stații autobuz aprox. 840 m
bus-station
Statia "Mircea cel Batran", linia 28,44
Stații autobuz aprox. 857 m
tram-station
Statia "Podu de Piatra", linia 11
Stații tramvai aprox. 1177 m
train-station
Gara Nicolina Iasi
Stații tren aprox. 1333 m
Școală
school
Școala nr. 32 Tudor Arghezi (en)
Școli aprox. 705 m
school
Scoala Generala nr. 16 Mircea cel Batran
Școli aprox. 757 m
kindergarten
Gradinita cu program Prelungit nr.24
Gradinițe aprox. 775 m
university
Facultatea de Interpretare
Universități aprox. 1861 m
Recreere
sports-ground
Teren sportiv
Terenuri sport aprox. 499 m
park
Parc
Parcuri aprox. 555 m
supermarket
MONELO STILL
Supermarket aprox. 722 m
mall
Galeriile Ștefan cel Mare
Mall aprox. 1978 m

Detalii despre preț și costuri

Prețul pe piață

Preț cerut: 74.900 €

Preț min. zonă 63.500 €
Preț max. zonă 130.000 €

52% dintre proprietățile similare ca zonă și nr. camere au prețul cerut mai mic. mai multe...

Bine de știut: prețul unei proprietăți este influențat și de alte caracteristici, cum ar fi: vechime, localizare, vecinătăți, suprafață, compartimentare, amenajări, dotări, etc. mai puțin...

Costuri cu achiziția

Fără credit
4.927 RON
Credit ipotecar
6.273 RON
Noua casă
522 RON+ taxe notariale

i

Costuri adiționale mai puțin știute la achiziție: taxe notariale, comisioane etc.

Proprietăți recomandate

Detalii de contact

DESTINE IMOBILIARE

Ilie Loghin Broker imobiliar

DESTINE IMOBILIARE

Abonează-te la newsletter să fii primul care primește cele mai noi recomandări de proprietăți și sfaturi de la experți.

CONTACT

Creează alertă

Salvează căutarea ca să primești pe email ultimele anunțuri publicate

Apartamente cu 2 camere de vânzare în zona Mircea cel Bătrân, Iași