Apartament 2 camere - Pacurari - Strada Soarelui

106.000 €

Păcurari, Iași

Nr. cam.:
2
Sup. utilă:
61 mp
Etaj:
1 / 3
An constr.:
2025 (Finalizată)
  • • Locație aproximativă

Descriere apartament

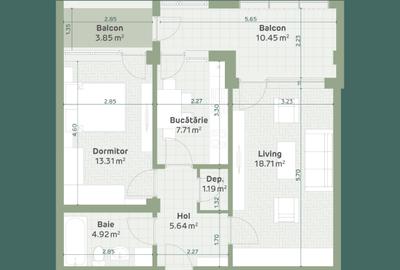
Va punem la dispozitie apartament cu 2 camere pozitionat la etaj 1 zona Pacurari - strada Soarelui. Apartamentul este total decomandat, cu o suprafata utila de aproximativ 61mp, balcon inchis in termopan, incalzire in pardoseala aer conditionat inclus in pret. Imobilul se afla amplasat in capat Pacurari cu acces restaurant Bizantique. Beneficiaza de finisaje premium, incalzire in pardoseala, constructie cadre cu caramida. Loc de parcare ce se poate achizitiona separat la pretul de 5000Euro, intabulat. Mutare imediata.
Citește mai mult Citește mai puțin
Confort 1 Decomandat 1 Balcon Aer condiționat Centrală proprie Încălzire prin pardoseală 1 Parcare

Detalii apartament

ID anunț: X5AK10J2N Copiat! 274178074 Copiat!
Actualizat în: 16 Ianuarie 2026
Suprafață construită: 61 mp
Nr. bucătării: 1
Nr. băi: 1
Tip imobil: Bloc de apartamente
Regim înălțime: P+3E

Utilități

Pereți
Faianță Vopsea lavabilă
Podele
Gresie Parchet
Ușă intrare
Metal
Izolații termice
Exterior
Dotări imobil
Interfon
Utilități
Curent Apă Canalizare Gaze
Acces internet
Wireless
Amenajare străzi
Iluminat stradal Asfaltate

Disponibilitate proprietate:

Imediat

Puncte de interes

Mijloace transport
bus-station
Rond Pacurari
Stații autobuz aprox. 401 m
bus-station
Statia "Pacurari", linia 18,20,43,43c,46
Stații autobuz aprox. 492 m
tram-station
Rond Canta
Stații tramvai aprox. 735 m
tram-station
Statia "Rond Dacia", linia 5,6,11
Stații tramvai aprox. 1066 m
Școală
school
Sc Gen Elena Cuza
Școli aprox. 1261 m
kindergarten
Gradinita Nr. 9
Gradinițe aprox. 1358 m
kindergarten
Gradinita cu program normal nr.15
Gradinițe aprox. 1371 m
school
Sc Gen 26 George Cosbuc
Școli aprox. 1406 m
Recreere
sports-ground
Teren sportiv
Terenuri sport aprox. 385 m
restaurant
Tester
Restaurant aprox. 474 m
park
Parc
Parcuri aprox. 702 m
supermarket
Kaufland (Pacurari)
Supermarket aprox. 767 m

Detalii despre preț și costuri

Prețul pe piață

Preț cerut: 106.000 €

Preț min. zonă 71.500 €
Preț max. zonă 130.000 €

66% dintre proprietățile similare ca zonă și nr. camere au prețul cerut mai mare. mai multe...

Bine de știut: prețul unei proprietăți este influențat și de alte caracteristici, cum ar fi: vechime, localizare, vecinătăți, suprafață, compartimentare, amenajări, dotări, etc. mai puțin...

Costuri cu achiziția

Fără credit
6.391 RON
Credit ipotecar
7.953 RON
Noua casă
680 RON+ taxe notariale

i

Costuri adiționale mai puțin știute la achiziție: taxe notariale, comisioane etc.

Proprietăți recomandate

Detalii de contact

STIL IMOBIL

Alexandru Popa Specialist Broker

STIL IMOBIL

Abonează-te la newsletter să fii primul care primește cele mai noi recomandări de proprietăți și sfaturi de la experți.

CONTACT

Creează alertă

Salvează căutarea ca să primești pe email ultimele anunțuri publicate

Apartamente noi cu 2 camere de vânzare în zona Păcurari, Iași