Apartament 2 camere, Valea Lupului-Rediu, 51mp, 0% comision

72.000 €

Păcurari, Iași

Nr. cam.:
2
Sup. utilă:
51 mp
Etaj:
1 / 1
An constr.:
2024 (Finalizată)
  • • Locație aproximativă
  • • Vizionare prin apel video

Descriere apartament

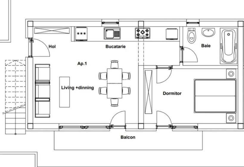
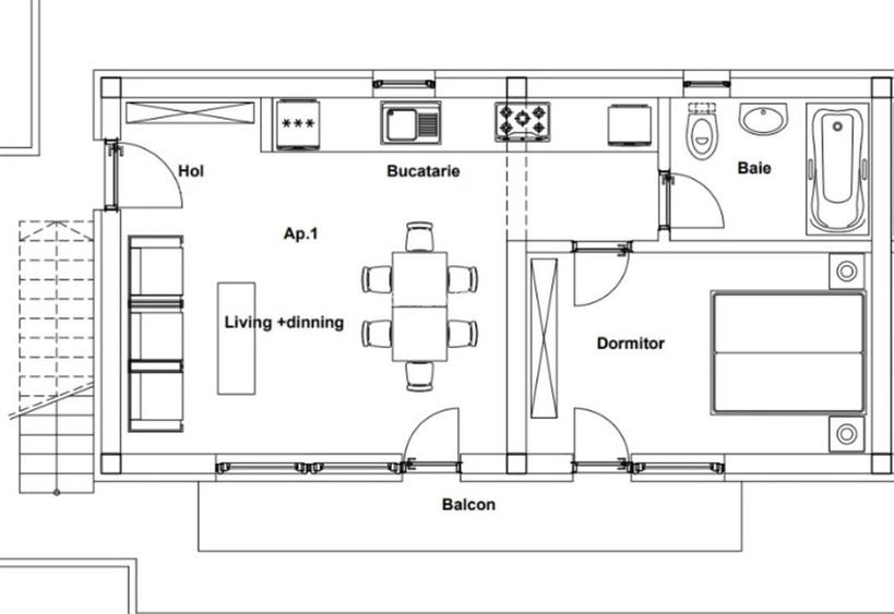
Proprietate într-un bloc mic cu doar 2 apartamente pe nivel situată într-o zonă liniștită din Rediu la 150 de metri de mijloacele de transport în comun. Apartamentul are o suprafață totală de 51 mp (43 mp utili și 8 mp balcon). Dispunerea este open-space iar baia beneficiază de geam pentru ventilație naturală. Construcția este din cărămidă de 25 cm pentru pereții exteriori și cărămidă de 15 cm pentru pereții interiori Apartamentul se vinde la cheie incluzând: Gresie faianță parchet Uși interioare Baie complet echipată Centrală termică proprie Tâmplărie PVC cu geam termopan tripan cu 6 camere Construcția este din cărămidă de 25 cm pentru pereții exteriori și cărămidă de 15 cm pentru pereții interiori. Prețuri: Loc de parcare inclus în preț. Construcția este din cărămidă de 25 cm pentru pereții exteriori și cărămidă de 15 cm pentru pereții interiori. Pentru mai multe detalii și vizionări nu ezitați să ne contactați!
Citește mai mult Citește mai puțin
Confort 1 Decomandat Nemobilat 1 Balcon / Terasă / Logie Centrală proprie 1 Parcare

Detalii apartament

ID anunț: X5AK10KBQ Copiat! 275266441 Copiat!
Actualizat în: 24 Martie 2026
Suprafață utilă totală: 51 mp
Suprafață construită: 51 mp
Nr. bucătării: 1
Nr. băi: 1
Structură rezistență: Cărămidă
Tip imobil: Bloc de apartamente
Regim înălțime: P+1E

Utilități

Destinație
Rezidențial
Pereți
Faianță Vopsea lavabilă
Podele
Parchet Gresie
Ușă intrare
Metal
Uși interior
Celulare
Izolații termice
Exterior
Ferestre cu geam termopan
PVC
Contorizare
Apometre
Utilități
Apă Curent Gaze Canalizare
Internet
Cablu Fibră optică Wireless
Servicii imobil
Administrare
Amenajare străzi
Asfaltate
Comision
3%

Certificat energetic:

Clasa energetică: B

Vecinătăți:

Scoala/gradinita, Restaurant/pub, Supermarket, Autobuz

Puncte de interes

Mijloace transport
bus-station
Statia "I.V.V Copou", linia 6b
Stații autobuz aprox. 1382 m
bus-station
Breazu
Stații autobuz aprox. 1536 m
bus-station
Statia "Breazu", linia 6b
Stații autobuz aprox. 1732 m
bus-station
Breazu
Stații autobuz aprox. 1742 m
Școală
school
Scoala Normala 'Vasile Lupu'
Școli aprox. 1624 m
school
Colegiul Agricol si de industrie alimentara Vasile Adamachi
Școli aprox. 1876 m
Recreere
restaurant
Casablanca (for events only)
Restaurant aprox. 216 m
sports-ground
Teren sportiv
Terenuri sport aprox. 1239 m
sports-ground
Teren sportiv
Terenuri sport aprox. 1613 m
park
Parc
Parcuri aprox. 1662 m

Detalii despre preț și costuri

Prețul pe piață

Preț cerut: 72.000 €

Preț min. zonă 71.500 €
Preț max. zonă 130.000 €

93% dintre proprietățile similare ca zonă și nr. camere au prețul cerut mai mare. mai multe...

Bine de știut: prețul unei proprietăți este influențat și de alte caracteristici, cum ar fi: vechime, localizare, vecinătăți, suprafață, compartimentare, amenajări, dotări, etc. mai puțin...

Costuri cu achiziția

Fără credit
15.805 RON
Credit ipotecar
17.128 RON
Noua casă
507 RON+ taxe notariale

i

Costuri adiționale mai puțin știute la achiziție: taxe notariale, comisioane etc.

Proprietăți similare

Apartament cu 2 camere decomandat în Păcurari
76.000 €
Iași, Păcurari
2 camere
40 mp
Etaj 9 / 10
Apartament cu 2 camere semidecomandat în Păcurari
70.000 €
Iași, Păcurari
2 camere
42 mp
Etaj 4
Apartament cu 2 camere, mobilat în Păcurari
75.000 €
Iași, Păcurari
2 camere
39 mp
Etaj 2 / 2

Detalii de contact

STIL IMOBIL

Marius Vlasin Senior Broker

STIL IMOBIL

Abonează-te la newsletter să fii primul care primește cele mai noi recomandări de proprietăți și sfaturi de la experți.

CONTACT

Creează alertă

Salvează căutarea ca să primești pe email ultimele anunțuri publicate

Apartamente noi cu 2 camere de vânzare în zona Păcurari, Iași