Apartament 3 camere decomandat Pacurari etajul 2

158.000 €

Păcurari, Iași

Nr. cam.:
3
Sup. utilă:
85 mp
Etaj:
2
An constr.:
1990
  • • Locație aproximativă

Descriere apartament

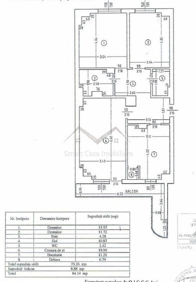
Va propunem spre achizitie un superb apartament renovat, aflat in zona Pacurari. Apartamentul se afla la etajul 2/7 al unui bloc construit in anul 1990 si are o suprafata de 85mp. Se vinde partial mobilat . Zona este una foarte buna atat pentru o familie, cat si pentru investitie, avem in apropiere magazine, kaufland , scoli, gradinite, locuri de parcare in spatele blocului etc. Ca imbunatatiri ale apartamentului se regasesc urmatoarele: -centrala termica proprie -geamuri termopan pvc si balcon mare inchis cu termopan -2 bai -mobilier si electrocasnice moderne -instalatie electrica si sanitara schimbata -boxa la subsol Pret 158.000 euro negociabil Va asteptam la vizionare!
Citește mai mult Citește mai puțin
1 Balcon / Terasă / Logie

Detalii apartament

ID anunț: XF9710054 Copiat! 274155382 Copiat!
Actualizat în: 16 Februarie 2026
Nr. bucătării: 1
Nr. băi: 2
Tip imobil: Bloc de apartamente

Utilități

Utilități
Curent Apă Canalizare CATV Gaze Telefon
Internet
Cablu
Amenajare străzi
Iluminat stradal Mijloace de transport în comun Asfaltate

Disponibilitate proprietate:

Imediat

Puncte de interes

Mijloace transport
bus-station
Statia "Cimitirul Evreiesc", linia 18,20,43,43c,46
Stații autobuz aprox. 325 m
bus-station
Peco OMV
Stații autobuz aprox. 353 m
tram-station
Sergent Grigore Ioan
Stații tramvai aprox. 434 m
tram-station
Sergent Grigore Ioan
Stații tramvai aprox. 502 m
Școală
kindergarten
Gradinita cu program normal nr.15
Gradinițe aprox. 379 m
school
Sc Gen Elena Cuza
Școli aprox. 383 m
kindergarten
Gradinita nr 15
Gradinițe aprox. 435 m
university
Institutul Teolog Romano-Catolic Sf Iosif
Universități aprox. 1945 m
Recreere
sports-ground
Teren sportiv
Terenuri sport aprox. 155 m
restaurant
Angel' s Pizza
Restaurant aprox. 264 m
park
Parc
Parcuri aprox. 331 m
supermarket
Kaufland Pacurari
Supermarket aprox. 378 m

Detalii despre preț și costuri

Prețul pe piață

Preț cerut: 158.000 €

Preț min. zonă 92.562 €
Preț max. zonă 179.000 €

55% dintre proprietățile similare ca zonă și nr. camere au prețul cerut mai mic. mai multe...

Bine de știut: prețul unei proprietăți este influențat și de alte caracteristici, cum ar fi: vechime, localizare, vecinătăți, suprafață, compartimentare, amenajări, dotări, etc. mai puțin...

Costuri cu achiziția

Fără credit
8.325 RON
Credit ipotecar
10.108 RON
Noua casă
945 RON+ taxe notariale

i

Costuri adiționale mai puțin știute la achiziție: taxe notariale, comisioane etc.

Proprietăți recomandate

Detalii de contact

SMART CASA IMOBILIARE

Andrei Amanolesei

SMART CASA IMOBILIARE

Abonează-te la newsletter să fii primul care primește cele mai noi recomandări de proprietăți și sfaturi de la experți.

CONTACT

Creează alertă

Salvează căutarea ca să primești pe email ultimele anunțuri publicate

Apartamente cu 3 camere de vânzare în zona Păcurari, Iași