1

COMISION 0%! INTABULAT! 2 CAMERE+ TERASA CU VEDERE PANORAMICA

108.300 €

Popas Păcurari, Iași

Nr. cam.:
2
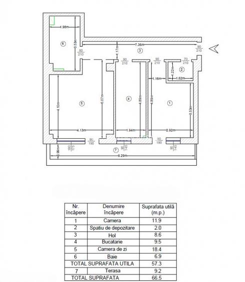
Sup. utilă:
57,3 mp
Etaj:
3 / 3
An constr.:
2025 (Finalizată)
  • • Locație aproximativă

Descriere apartament

Comision 0% - pret direct de la dezvoltator. Ansamblu rezidential nou in Valea Lupului cu acces rapid catre Rond Pacurari. Este compus din 3 blocuri alipite , acces privat cu bariera, statie de autobuz langa complex. Pentru detalii suplimentare și vizionări, vă rugăm să ne contactați la numărul . Nu ratați ocazia de a vă muta într-o locuință modernă și rafinată! Locul de parcare intabulat este disponibil la pretul de 5000 euro.
Citește mai mult Citește mai puțin
Confort 1 Decomandat Nemobilat Aer condiționat Centrală proprie Încălzire prin pardoseală 1 Parcare Bine întreținut (Bună)

Detalii apartament

ID anunț: XB88105PN Copiat! 274300576 Copiat!
Actualizat în: 21 Mai 2026
Suprafață construită: 66.5 mp
Nr. bucătării: 1
Nr. băi: 1
Structură rezistență: Cărămidă
Tip imobil: Bloc de apartamente
Tip tranzacție: De vânzare prin agent
Regim înălțime: P+3E
Nr. terase: 1
Modalitate de plată: Cash sau Credit

Utilități

Destinație
Rezidențial
Pereți
Vopsea lavabilă Var Faianță
Podele
Parchet Gresie
Ușă intrare
Metal
Uși interior
Celulare Lemn
Izolații termice
Exterior
Ferestre cu geam termopan
PVC PVC
Contorizare
Apometre Contor căldură Contor gaz
Alte spații utile
Debara
Facilități imobil
Interfon
Utilități
Curent Apă Canalizare Gaze CATV
Internet
Fibră optică
Amenajare străzi
Asfaltate Betonate

Certificat energetic:

Clasa energetică: B

Puncte de interes

Mijloace transport
bus-station
Statia "Rond Politie", linia 20
Stații autobuz aprox. 857 m
bus-station
Rond Politie
Stații autobuz aprox. 866 m
bus-station
Daewoo
Stații autobuz aprox. 869 m
bus-station
Statia "Daewoo", linia 20
Stații autobuz aprox. 932 m
Școală
school
Scoala
Școli aprox. 923 m
school
Scoala Noua
Școli aprox. 1526 m
Recreere
sports-ground
Teren sportiv
Terenuri sport aprox. 666 m
restaurant
American Resort SDL
Restaurant aprox. 802 m
supermarket
Praktiker Era
Supermarket aprox. 1103 m
park
Parc
Parcuri aprox. 1925 m

Detalii despre preț și costuri

Prețul pe piață

Preț cerut: 108.300 €

Preț min. zonă
Preț max. zonă

55% dintre proprietățile similare ca zonă și nr. camere au prețul cerut mai mic. mai multe...

Bine de știut: prețul unei proprietăți este influențat și de alte caracteristici, cum ar fi: vechime, localizare, vecinătăți, suprafață, compartimentare, amenajări, dotări, etc. mai puțin...

Acces la informații premium după autentificare
Login Gratuit

Costuri cu achiziția

Fără credit
Credit ipotecar
Noua casă

i

Costuri adiționale mai puțin știute la achiziție: taxe notariale, comisioane etc.

Acces la informații premium după autentificare
Login Gratuit

Proprietăți similare

Apartament cu 2 camere decomandat în Popas Păcurari
108.000 €
Iași, Popas Păcurari
2 camere
59 mp
Etaj 1
Apartament cu 2 camere decomandat, mobilat în Popas Păcurari
110.000 €
Iași, Popas Păcurari
2 camere
56 mp
Etaj 1 / 4
Apartament cu 2 camere decomandat în Popas Păcurari
109.000 €
Iași, Popas Păcurari
2 camere
56 mp
Etaj 1

Detalii de contact

Invest Imobiliare

Dragos Popoaia Consilier Imobiliar

Invest Imobiliare
PRO

Abonează-te la newsletter să fii primul care primește cele mai noi recomandări de proprietăți și sfaturi de la experți.

CONTACT

Creează alertă

Salvează căutarea ca să primești pe email ultimele anunțuri publicate

Apartamente noi cu 2 camere de vânzare în zona Popas Păcurari, Iași