Apartament 2 camere Tatarasi-Ciurchi

43.500 €

Tătărași, Iași

Nr. cam.:
2
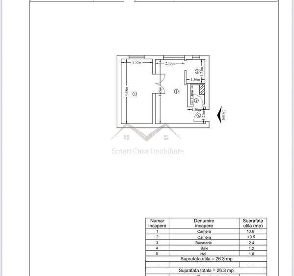
Sup. utilă:
26,3 mp
Etaj:
2 / 4
An constr.:
1970
  • • Locație aproximativă

Descriere apartament

Va propunem spre vanzare un apartament cu 2 camere nedecomandat situat in zona Tatarasi- Ciurchi cu suprafata de 26,3 mp. Imobilul este situat la etajul 2 din 4, se accepta si plata prin credit ipotecar. Apartamentul necesita renovare totala !!! Pret: 43.500 Euro Aproape de mijloacele de transport in comun, scoli si gradinite. Pentru mai multe detalii sau vizionari va stau la dispozitie.
Citește mai mult Citește mai puțin
Nedecomandat

Detalii apartament

ID anunț: XF971009D Copiat! 275334725 Copiat!
Actualizat în: 23 Martie 2026
Nr. bucătării: 1
Nr. băi: 1
Tip imobil: Bloc de apartamente
Regim înălțime: P+4E

Utilități

Utilități
Curent Apă Canalizare CATV Gaze Telefon
Internet
Cablu
Amenajare străzi
Iluminat stradal Mijloace de transport în comun Asfaltate
Comision
standard

Disponibilitate proprietate:

Imediat

Puncte de interes

Mijloace transport
bus-station
Statia "Tatarasi Nord", linia 18,27
Stații autobuz aprox. 322 m
tram-station
Statia "Tatarasi Nord", linia 11
Stații tramvai aprox. 323 m
bus-station
Spitalul Sf. Maria
Stații autobuz aprox. 349 m
tram-station
Statia "Dr. Savini", linia 3,11,13
Stații tramvai aprox. 360 m
Școală
school
Liceul Waldorf Iasi
Școli aprox. 145 m
school
Liceul Teoretic "Al.I.Cuza" Iasi
Școli aprox. 172 m
kindergarten
Gradinita cu program prelungit nr.22
Gradinițe aprox. 205 m
university
Universitatea Mihail Kogalniceanu
Universități aprox. 750 m
Recreere
park
Parc
Parcuri aprox. 39 m
supermarket
Super Stejar
Supermarket aprox. 87 m
sports-ground
Teren sportiv
Terenuri sport aprox. 191 m
mall
Iulius Mall
Mall aprox. 1017 m

Detalii despre preț și costuri

Prețul pe piață

Preț cerut: 43.500 €

Preț min. zonă 59.000 €
Preț max. zonă 149.000 €

i

Proprietate cu prețul cerut în afara intervalului mai multe...

Posibile explicații pentru faptul că prețul proprietății este sub cel minim: imobil cu risc seismic, imobil cu probleme structurale, imobil demolabil, poziționare în altă zonă
Bine de știut: prețul unei proprietăți este influențat și de alte caracteristici, cum ar fi: vechime, localizare, vecinătăți, suprafață, compartimentare, amenajări, dotări, etc.

Costuri cu achiziția

Fără credit
3.218 RON
Credit ipotecar
4.317 RON
Noua casă
362 RON+ taxe notariale

i

Costuri adiționale mai puțin știute la achiziție: taxe notariale, comisioane etc.

Proprietăți similare

Apartament cu 2 camere nedecomandat în Frumoasa
45.000 €
Iași, Frumoasa
2 camere
36 mp
Parter

Detalii de contact

SMART CASA IMOBILIARE

Ciuhureanu Ovidiu Manager

SMART CASA IMOBILIARE

Abonează-te la newsletter să fii primul care primește cele mai noi recomandări de proprietăți și sfaturi de la experți.

CONTACT

Creează alertă

Salvează căutarea ca să primești pe email ultimele anunțuri publicate

Apartamente cu 2 camere de vânzare în zona Tătărași, Iași