14

FARA COMISION! Tatarasi, Dispecer - Apartament 2 camere, amenajat, fara risc

79.975 €

Tătărași, Iași

Nr. cam.:
2
Sup. utilă:
51 mp
Etaj:
4 / 4
An constr.:
1965 (Finalizată)
  • • Comision 0%
  • • Exclusivitate
  • • Locație exactă
  • • Vizionare prin apel video

Descriere apartament

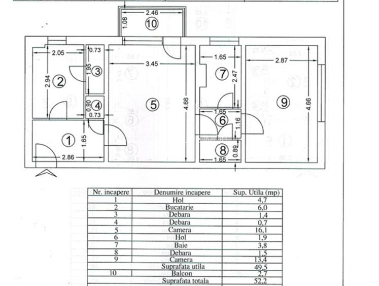
Locatie excelenta, cartier Tatarasi, zona Dispecer, acces imediat catre statia mijloacelor de transport in comun, centre comercial si zona centrala a orasului. Apartament ce necesita investitii mici pentru renovare, fiind deja dotat cu: centrala termica individuala, baie si bucatarie renovate si complet dotate, gresie, faianta, prachet laminat + usi interioare schimbate, tamplarie PVC cu geam termopan, usa metalica la intrare. Cartier linistit, zona verde amenajata modern in fata blocului, casa scarii curata, fara mirosuri improprii. De vanzare apartament cu 2 camere, avand o suprafata utila totala de aproximativ 52 mp, situat intr-un imobil construit in anul 1965, din placi de beton armat, fara risc seismic, la etajul 4/4. Model semidecomandat, baie cu geam, se vinde mobilat si utilat complet asa cum este prezentat in imagini. Este dotat cu centrala termica proprie cu termostat de ambianta, plita+cuptor incorporate, frigider, masina de spalat. Este renovat si beneficiaza de tamplarie PVC cu geam termopan, usi interioare schimbate, usa metalica la intrare, gresie, faianta, parchet laminat si interfon. Pret: 79975 euro. Se accepta inclusiv plata prin credit ipotecar. Cumparatorul nu achita comision de intermediere! Pentru programarea unei vizionari, ma puteti apela la numarul de telefon: , Vlad Postolache – BLUE IMOBILIARE.
Citește mai mult Citește mai puțin
Confort 1 Semidecomandat Mobilat 1 Balcon / Terasă / Logie Servicii Centrală proprie Bine întreținut (Bună)

Detalii apartament

ID anunț: XB0A001C0 Copiat! 273904567 Copiat!
Actualizat în: 16 Aprilie 2026
Suprafață utilă totală: 52 mp
Suprafață construită: 52 mp
Nr. bucătării: 1
Nr. băi: 1
Structură rezistență: Beton
Tip imobil: Bloc de apartamente
Regim înălțime: P+4E

Utilități

Destinație
Rezidențial Comercial Birouri De vacanță
Jaluzele
Verticale
Pereți
Faianță Vopsea lavabilă
Podele
Gresie Parchet
Ușă intrare
Metal
Uși interior
Lemn
Ferestre cu geam termopan
PVC
Contorizare
Contor gaz Apometre Contor căldură
Bucătărie
Mobilată Utilată
Electrocasnice
Frigider Mașină de spălat Aragaz
Facilități imobil
Interfon
Utilități
CATV Curent Canalizare Apă
Internet
Fibră optică Wireless
Servicii hoteliere
Transfer aeroport/gară Tur oraș
Servicii imobil
Administrare
Amenajare străzi
Asfaltate Iluminat stradal Mijloace de transport în comun
Comision
0%

Certificat energetic:

Clasa energetică: C

Vicii:

nu sunt

Vecinătăți:

Bucsinescu, Tudor Vladimirescu, Podul de Fier

Alte detalii:

Locatie excelenta, cartier Tatarasi, zona Dispecer, acces imediat catre statia mijloacelor de transport in comun, centre comercial si zona centrala a orasului.
Apartament ce necesita investitii mici pentru renovare, fiind deja dotat cu: centrala termica individuala, baie si bucatarie renovate si complet dotate, gresie, faianta, prachet laminat + usi interioare schimbate, tamplarie PVC cu geam termopan, usa metalica la intrare.
Cartier linistit, zona verde amenajata modern in fata blocului, casa scarii curata, fara mirosuri improprii.
De vanzare apartament cu 2 camere, avand o suprafata utila totala de aproximativ 52 mp, situat intr-un imobil construit in anul 1965, din placi de beton armat, fara risc seismic, la etajul 4/4. Model semidecomandat, baie cu geam, se vinde mobilat si utilat complet asa cum este prezentat in imagini. Este dotat cu centrala termica proprie cu termostat de ambianta, plita+cuptor incorporate, frigider, masina de spalat.
Este renovat si beneficiaza de tamplarie PVC cu geam termopan, usi interioare schimbate, usa metalica la intrare, gresie, faianta, parchet laminat si interfon.
Pret: 79975 euro.
Se accepta inclusiv plata prin credit ipotecar.
Cumparatorul nu achita comision de intermediere!
Pentru programarea unei vizionari, ma puteti apela la numarul de telefon: 0753.163.635, Vlad Postolache – BLUE IMOBILIARE.

Alte detalii despre preț:

Negociabil.

Disponibilitate proprietate:

liber

Puncte de interes

Mijloace transport
bus-station
Statia "Dr. Savini", linia 18,27
Stații autobuz aprox. 170 m
tram-station
Statia "Dr. Savini", linia 3,11,13
Stații tramvai aprox. 201 m
bus-station
Flora
Stații autobuz aprox. 310 m
tram-station
Flora
Stații tramvai aprox. 318 m
Școală
kindergarten
GRĂDINIȚA CU PROGRAM PRELUNGIT NR. 13, Iași
Gradinițe aprox. 176 m
kindergarten
Gradinita
Gradinițe aprox. 208 m
school
Scoala Ionel Teodoreanu
Școli aprox. 258 m
university
Catedra de Ed Fiz si Sport - Univ Tehn Gh Asachi
Universități aprox. 555 m
Recreere
park
Parc
Parcuri aprox. 85 m
supermarket
Supermarket Lidl
Supermarket aprox. 388 m
sports-ground
Teren sportiv
Terenuri sport aprox. 457 m
mall
Iulius Mall
Mall aprox. 803 m

Detalii despre preț și costuri

Prețul pe piață

Preț cerut: 79.975 €

Preț min. zonă
Preț max. zonă

77% dintre proprietățile similare ca zonă și nr. camere au prețul cerut mai mare. mai multe...

Bine de știut: prețul unei proprietăți este influențat și de alte caracteristici, cum ar fi: vechime, localizare, vecinătăți, suprafață, compartimentare, amenajări, dotări, etc. mai puțin...

Insight premium disponibil după login

Costuri cu achiziția

Fără credit
Credit ipotecar
Noua casă

i

Costuri adiționale mai puțin știute la achiziție: taxe notariale, comisioane etc.

Insight premium disponibil după login

Proprietăți recomandate

Detalii de contact

Abonează-te la newsletter să fii primul care primește cele mai noi recomandări de proprietăți și sfaturi de la experți.

CONTACT

Creează alertă

Salvează căutarea ca să primești pe email ultimele anunțuri publicate

Apartamente cu 2 camere de vânzare în zona Tătărași, Iași