🏡 Apartament deosebit ultracentral – Lugoj | 🌊 Vedere spre râul Timiș | 💼 Ide

190.000 €

Lugoj, Județul Timiș

Nr. cam.:
4
Sup. utilă:
130 mp
Etaj:
Parter / 1
An constr.:
1932
  • • Locație exactă

Descriere apartament

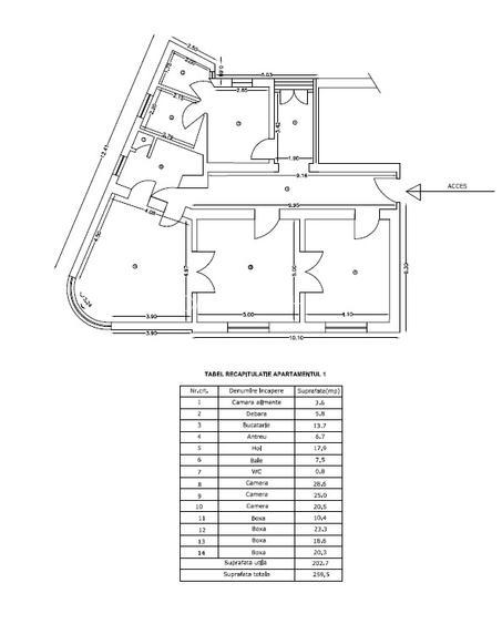
ă propunem spre vânzare un apartament unic, situat în zona ultracentrală a municipiului Lugoj, în apropiere de Podul de Fier, cu o priveliște superbă spre râul Timiș 🌅 Proprietatea este amplasată la parter înalt al unei clădiri cu regim de înălțime P+1+pod și se remarcă printr-o compartimentare circulară, eficientă și versatilă 🔄 📐 Detalii principale: Suprafață utilă: 130 mp Suprafață boxe: 72,7 mp (4 boxe la subsol) 📦 2 intrări separate 🚪🚪 (ideal pentru compartimentare sau utilizare mixtă) Hol generos 4 camere spațioase și luminoase 🏠 : - 3 camere cu vedere frontală 🌇 - 1 cameră cu vedere în spate 2 băi 🚿 Bucătărie complet mobilată și utilată 🍽️ Andreu la intrarea secundară Încălzire prin centrală proprie pe gaz 🔥 ✨ Avantaje: Locație excelentă, liniștită, dar ultracentrală 📍 Vedere deosebită spre râul Timiș 🌊 Ideal atât pentru locuință 🏡, cât și pentru birouri 💼 Potențial investițional ridicat 📈 – se poate împărți în două unități pentru închiriere separată Este disponibil si pentru inchiriere birouri la pretul de 500 euro. 💰 Preț: 190.000 € 🆔 ID anunț: 2466
Citește mai mult Citește mai puțin
Confort 1 Circular Nemobilat Grădină Curte Calorifere Centrală proprie Beci

Detalii apartament

ID anunț: X02V0006K Copiat! 242034364 Copiat!
Actualizat în: 30 Martie 2026
Nr. bucătării: 1
Nr. băi: 2
Structură rezistență: Cărămidă
Tip imobil: Casă/Vilă
Regim înălțime: D+P+1E+M

Utilități

Destinație
Rezidențial Birouri
Jaluzele
Verticale
Pereți
Faianță Vopsea lavabilă
Podele
Gresie Parchet
Ferestre cu geam termopan
Lemn
Contorizare
Contor gaz Apometre
Alte spații utile
WC Serviciu Debara
Facilități imobil
Acoperiș
Utilități
Curent Apă Canalizare
Amenajare străzi
Asfaltate Iluminat stradal Mijloace de transport în comun
Comision
3%

Puncte de interes

Recreere
park
Parcul Copiilor
Parcuri aprox. 296 m
park
Parcul Strand
Parcuri aprox. 328 m
sports-ground
Teren sportiv
Terenuri sport aprox. 343 m
sports-ground
Teren sportiv
Terenuri sport aprox. 349 m

Detalii despre preț și costuri

Prețul pe piață

Preț cerut: 190.000 €

Preț min. zonă
Preț max. zonă

95% dintre proprietățile similare ca zonă și nr. camere au prețul cerut mai mic. mai multe...

Bine de știut: prețul unei proprietăți este influențat și de alte caracteristici, cum ar fi: vechime, localizare, vecinătăți, suprafață, compartimentare, amenajări, dotări, etc. mai puțin...

Insight premium disponibil după login

Costuri cu achiziția

Fără credit
Credit ipotecar
Noua casă

i

Costuri adiționale mai puțin știute la achiziție: taxe notariale, comisioane etc.

Insight premium disponibil după login

Proprietăți recomandate

Detalii de contact

CARTIER-RHM

Teodora Mot

4.92(4 review-uri)

CARTIER-RHM
PRO

Abonează-te la newsletter să fii primul care primește cele mai noi recomandări de proprietăți și sfaturi de la experți.

Feedback apel

CONTACT

Creează alertă

Salvează căutarea ca să primești pe email ultimele anunțuri publicate

Apartamente cu 4+ camere de vânzare în Lugoj, Județul Timiș