2

Mamaia Summerland Apartment 2 camere

129.000 €

Mamaia, Județul Constanța

Nr. cam.:
2
Sup. utilă:
50 mp
Etaj:
5 / 7
An constr.:
2009
  • • Locație exactă

Descriere apartament

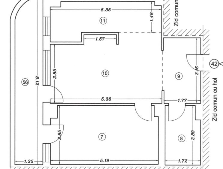
All imobiliare Constanța oferă la vânzare în exclusivitate în Mamaia Summerland Apartament (mare) de 2 camere cu bucătărie separată, balcon cu ieșire din toate camerele- living, dormitor și bucătărie- vedere laterală lac și mare, 60 mp util total (din care 10 m balconul), etaj 5, preț 129.000 euro, vânzător persoană fizică
Citește mai mult Citește mai puțin
Confort 1 Decomandat 1 Balcon / Terasă / Logie Zonă de litoral

Detalii apartament

ID anunț: X192000AP Copiat! 270040277 Copiat!
Actualizat în: 06 Octombrie 2025
Suprafață utilă totală: 60 mp
Suprafață construită: 70 mp
Nr. bucătării: 1
Nr. băi: 1
Tip imobil: Bloc de apartamente
Regim înălțime: P+7E

Puncte de interes

Mijloace transport
bus-station
Statia Tabara Nord 2; Linia ME
Stații autobuz aprox. 423 m
bus-station
Tabara Turist [Mamaia Estival]
Stații autobuz aprox. 467 m
bus-station
Tabara Nord [Mamaia Estival]
Stații autobuz aprox. 967 m
bus-station
Mamaia Nord [2-43 Mamaia
Stații autobuz aprox. 1157 m
Recreere
bar
Pasticceria Filicori
Bar aprox. 23 m
park
Camping Turist
Parcuri aprox. 438 m
supermarket
Supermarket nonstop
Supermarket aprox. 1078 m
sports-ground
Teren sportiv
Terenuri sport aprox. 1691 m

Detalii despre preț și costuri

Prețul pe piață

Preț cerut: 129.000 €

Preț min. zonă
Preț max. zonă

96% dintre proprietățile similare ca zonă și nr. camere au prețul cerut mai mic. mai multe...

Bine de știut: prețul unei proprietăți este influențat și de alte caracteristici, cum ar fi: vechime, localizare, vecinătăți, suprafață, compartimentare, amenajări, dotări, etc. mai puțin...

Insight premium disponibil după login

Costuri cu achiziția

Fără credit
Credit ipotecar
Noua casă

i

Costuri adiționale mai puțin știute la achiziție: taxe notariale, comisioane etc.

Insight premium disponibil după login

Proprietăți recomandate

Detalii de contact

ALL IMOBILIARE

Marius COMAN Director

3.11(3 review-uri)

ALL IMOBILIARE

Abonează-te la newsletter să fii primul care primește cele mai noi recomandări de proprietăți și sfaturi de la experți.

CONTACT

Creează alertă

Salvează căutarea ca să primești pe email ultimele anunțuri publicate

Apartamente cu 2 camere de vânzare în Mamaia, Județul Constanța