1

Mamaia Resort - Sale apartment with 2 rooms, 2 bathrooms and terrace.

190.000 €

Mamaia, Județul Constanța

Nr. cam.:
2
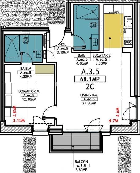
Sup. utilă:
51,3 mp
Etaj:
3 / 8
An constr.:
2025 (Finalizată)
  • • Exclusivitate
  • • Locație exactă

Descriere apartament

A fully furnished apartment ready to welcome you, located just a few steps from the beach, in the club area of Mamaia Resort. Apartment with 2 rooms, 2 bathrooms and a terrace where time flows differently – slower, warmer, more beautiful. The house impresses with its modern design, quality finishes and natural light that penetrates generously into every corner. It's the perfect place for mornings with coffee and waves, but also for evenings with friends and breathtaking sunsets. Ideally positioned for those who want to be in the center of summer, but without sacrificing comfort and privacy, this apartment is an inspired choice whether you want it as a personal home, weekend retreat or successful investment. THE PRICE DISPLAYED DOES NOT INCLUDE VAT! Here, you don't just buy an apartment. You choose a lifestyle.
Citește mai mult Citește mai puțin
Confort 1 Decomandat Centrală proprie Încălzire prin pardoseală Zonă de litoral

Detalii apartament

ID anunț: XC96100V4 Copiat! 272418178 Copiat!
Actualizat în: 19 Mai 2026
Suprafață construită: 71.7 mp
Nr. bucătării: 1
Nr. băi: 2
Structură rezistență: BCA
Tip imobil: Bloc de apartamente
Tip tranzacție: De vânzare prin agent
Regim înălțime: S+P+8E
Nr. terase: 1
Modalitate de plată: Cash sau Credit

Utilități

Destinație
Rezidențial
Pereți
Faianță Vopsea lavabilă
Podele
Gresie Parchet
Ușă intrare
Metal
Uși interior
Lemn
Izolații termice
Exterior
Ferestre cu geam termopan
PVC
Contorizare
Apometre Contor gaz
Diverse
Telecomandă poartă acces auto
Alte spații utile
WC Serviciu Terasă
Facilități imobil
Interfon Lift
Utilități
Curent Apă Canalizare Gaze
Internet
Cablu
Servicii imobil
Supraveghere video
Amenajare străzi
Iluminat stradal Mijloace de transport în comun Asfaltate
Comision
3%

Certificat energetic:

Clasa energetică: A

Vecinătăți:

Zone verzi, Farmacii, Restaurante, Transport, Zone comerciale, Sali de sport, Cafenele

Disponibilitate proprietate:

Imediat

Puncte de interes

Mijloace transport
bus-station
Statia Tabara Nord 2; Linia ME
Stații autobuz aprox. 176 m
bus-station
Tabara Turist [Mamaia Estival]
Stații autobuz aprox. 206 m
bus-station
Tabara Nord [Mamaia Estival]
Stații autobuz aprox. 684 m
bus-station
Mamaia Nord [2-43 Mamaia
Stații autobuz aprox. 871 m
Recreere
park
Camping Turist
Parcuri aprox. 143 m
restaurant
Restaurant Chevalet
Restaurant aprox. 179 m
supermarket
Supermarket nonstop
Supermarket aprox. 788 m
sports-ground
Teren sportiv
Terenuri sport aprox. 1396 m

Istoricul prețurilor

Acces la informații premium după autentificare
Login Gratuit

Detalii despre preț și costuri

Prețul pe piață

Preț cerut: 190.000 €

Preț min. zonă
Preț max. zonă

i

Proprietate cu prețul cerut în afara intervalului mai multe...

Posibile explicații pentru faptul că prețul proprietății este peste cel maxim: imobil nou cu suprafață mare, are dotări și finisaje de lux.
Bine de știut: prețul unei proprietăți este influențat și de alte caracteristici, cum ar fi: vechime, localizare, vecinătăți, suprafață, compartimentare, amenajări, dotări, etc.
Acces la informații premium după autentificare
Login Gratuit

Costuri cu achiziția

Fără credit
Credit ipotecar
Noua casă

i

Costuri adiționale mai puțin știute la achiziție: taxe notariale, comisioane etc.

Acces la informații premium după autentificare
Login Gratuit

Proprietăți similare

Apartament cu 2 camere semidecomandat în Central
185.000 €
Județul Constanța, Mamaia
2 camere
51,3 mp
Etaj 1 / 8
Apartament cu 2 camere decomandat în Central
195.000 €
Județul Constanța, Mamaia
2 camere
51,3 mp
Etaj 5
Apartament cu 2 camere semidecomandat în Central
196.000 €
Județul Constanța, Mamaia
2 camere
57,71 mp
Etaj 1 / 8

Detalii de contact

SC ELITE EXCLUSIV SRL

Laurentiu Vinteanu Real Estate Agent

SC ELITE EXCLUSIV SRL
PRO

Abonează-te la newsletter să fii primul care primește cele mai noi recomandări de proprietăți și sfaturi de la experți.

CONTACT

Creează alertă

Salvează căutarea ca să primești pe email ultimele anunțuri publicate

Apartamente noi cu 2 camere de vânzare în Mamaia, Județul Constanța