4

2 camere Mamaia | Private Lake- bloc 2025| Vedere frontală la lac, la 5 m de apa

125.000 €

Mamaia, Județul Constanța

Nr. cam.:
2
Sup. utilă:
47,8 mp
Etaj:
Parter / 9
An constr.:
2025 (Finalizată)
  • • Locație exactă
  • • Vizionare prin apel video

Descriere apartament

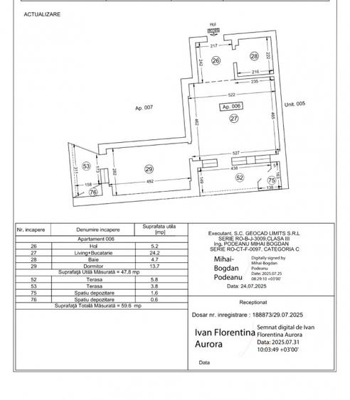
Apartament cu 2 camere, situat în Mamaia, zona Hotel Caraiman, amplasat la parterul inalt unui bloc nou finalizat în 2025, chiar pe malul lacului, cu vedere frontală către apă. Suprafețe: • suprafață utilă: 47,80 mp • suprafață terase: 9,6 mp (2 terase) • suprafață utilă totală: 59,60 mp Apartamentul este finisat, nemobilat, oferind libertatea de amenajare după propriul stil. Compartimentare: • living cu bucătărie open space • dormitor separat • baie Orientarea sud–vest asigură soare si lumină naturală pe tot parcursul zilei. Dotări și beneficii: • două terase cu deschidere către lac • încălzire în pardoseală + centrală proprie Vaillant • tâmplărie aluminiu Schüco • usa blindata la intrare • videointerfon • supraveghere video • instalații: electrice (inclusiv pentru curenții slabi) Schneider, Legrand si Gewiss • instalații termice Uponor • lift • contorizare separată • bloc nou, structură din beton și BCA • acces facil la mijloace de transport • foarte aproape de plajă Poziționarea excelentă face proprietatea potrivită atât ca reședință permanentă, cât și pentru investiție sau regim hotelier. Proprietatea este ideală pentru cei care lucrează remote și doresc să se bucure de liniște și intimitate, pentru cei care apreciază plimbările pe malul lacului și al mării și, în sezon, pentru cei care sunt pasionați de sporturile nautice. Accesul rapid la zonele de agrement și cluburi o face atractiva si pentru cei care iubesc distractia. Preț: 125.000 € Plată acceptată: cash, credit ipotecar, Prima Casă Disponibil imediat
Citește mai mult Citește mai puțin
Confort lux Semidecomandat Nemobilat Centrală proprie Încălzire prin pardoseală Bine întreținut (Bună) Zonă de litoral

Detalii apartament

ID anunț: XESN1000O Copiat! 273956847 Copiat!
Actualizat în: 06 Martie 2026
Nr. bucătării: 1
Nr. băi: 1
Structură rezistență: Beton
Tip imobil: Bloc de apartamente
Regim înălțime: P+9E
Nr. terase: 2

Utilități

Destinație
Rezidențial
Pereți
Vopsea lavabilă Faianță
Podele
Gresie
Ușă intrare
Metal
Uși interior
Lemn
Izolații termice
Exterior Interior
Ferestre cu geam termopan
Aluminiu
Contorizare
Apometre Contor căldură Contor gaz
Diverse
Senzor de fum
Alte spații utile
Terasă
Facilități imobil
Interfon Lift
Utilități
Curent Apă Canalizare Gaze
Internet
Fibră optică
Servicii imobil
Supraveghere video
Amenajare străzi
Asfaltate Iluminat stradal Mijloace de transport în comun

Puncte de interes

Mijloace transport
bus-station
Tabara Turist [Mamaia Estival]
Stații autobuz aprox. 229 m
bus-station
Statia Tabara Nord 2; Linia ME
Stații autobuz aprox. 263 m
bus-station
Tabara Nord [Mamaia Estival]
Stații autobuz aprox. 337 m
bus-station
Mamaia Nord [2-43 Mamaia
Stații autobuz aprox. 516 m
Recreere
restaurant
Chinezesc
Restaurant aprox. 87 m
park
Camping Turist
Parcuri aprox. 306 m
supermarket
Supermarket nonstop
Supermarket aprox. 455 m
sports-ground
Teren sportiv
Terenuri sport aprox. 1059 m

Detalii despre preț și costuri

Prețul pe piață

Preț cerut: 125.000 €

Preț min. zonă 75.900 €
Preț max. zonă 179.900 €

88% dintre proprietățile similare ca zonă și nr. camere au prețul cerut mai mic. mai multe...

Bine de știut: prețul unei proprietăți este influențat și de alte caracteristici, cum ar fi: vechime, localizare, vecinătăți, suprafață, compartimentare, amenajări, dotări, etc. mai puțin...

Costuri cu achiziția

Fără credit
7.196 RON
Credit ipotecar
8.839 RON
Noua casă
777 RON+ taxe notariale

i

Costuri adiționale mai puțin știute la achiziție: taxe notariale, comisioane etc.

Proprietăți recomandate

Detalii de contact

Abonează-te la newsletter să fii primul care primește cele mai noi recomandări de proprietăți și sfaturi de la experți.

CONTACT

Creează alertă

Salvează căutarea ca să primești pe email ultimele anunțuri publicate

Apartamente noi cu 2 camere de vânzare în Mamaia, Județul Constanța