7

3 cam | Mamaia | Frontal Mare | Finisaje Premium |

390.000 € + TVA

Mamaia, Județul Constanța

Nr. cam.:
3
Sup. utilă:
125 mp
Etaj:
6 / 7
An constr.:
2024 (Finalizată)
  • • Comision 0%
  • • Locație aproximativă

Descriere apartament

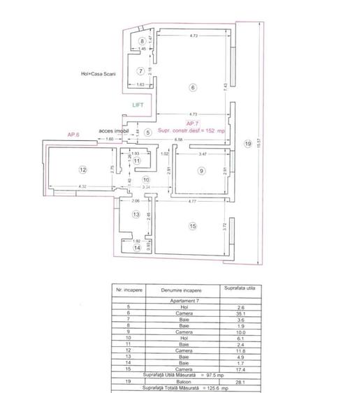
Amplasat chiar pe plaja din Statiunea Mamaia , acest apartament se afla intr- un imobil P+7 finalizat in 2024, cu doar 19 apartamente. Situat la etajul 6 , acesta proprietate are o suprafata construita de 152 mp construiti ( 97.5 mp utili + 28 mp terasa ) si este compus din living cu dinning - 35mp cu vedere spectaculoasa spre plaja , bucatarie inchisa, grup sanitar pentru zona de living, dormitor matrimonial, cu vedere frontala catre plaja , cu baie proprie, dormitor secundar cu baie si o terasa de 28 mp cu acces din living si dormitor matrimonial. Finisajele sunt de calitate superioara , apartamentul este dotat cu sistem smart home , incalzire in pardoseala , AC Daikin, iar imobilul beneficiaza de servicii de concierge , parcare privata, plaja privata si sevicii curatenie. Avand in vedere pozitia imobilului , facilitatile de tip resort dar si finisajele premium , aceasta proprietate reprezinta o oportunitate imobiliara.
Citește mai mult Citește mai puțin
Confort lux Decomandat Nemobilat Aer condiționat Centrală proprie Încălzire prin pardoseală 1 Parcare Zonă de litoral

Detalii apartament

ID anunț: X1UR101P7 Copiat! 198948818 Copiat!
Actualizat în: 22 Decembrie 2025
Suprafață construită: 152 mp
Nr. bucătării: 1
Nr. băi: 3
Tip imobil: Bloc de apartamente
Regim înălțime: P+7E
Nr. terase: 1

Utilități

Pereți
Faianță Vopsea lavabilă
Podele
Gresie Parchet
Ușă intrare
Metal
Izolații termice
Exterior
Ferestre cu geam termopan
Aluminiu
Contorizare
Apometre Contor căldură Contor gaz
Alte spații utile
Terasă
Facilități imobil
Interfon Lift
Utilități
Curent Apă Canalizare CATV Gaze Telefon
Internet
Cablu Wireless
Servicii imobil
Pază Supraveghere video
Amenajare străzi
Iluminat stradal Mijloace de transport în comun Asfaltate
Comision
0%

Disponibilitate proprietate:

Imediat

Puncte de interes

Mijloace transport
bus-station
Tabara Turist [Mamaia Estival]
Stații autobuz aprox. 338 m
bus-station
Tabara Nord [Mamaia Estival]
Stații autobuz aprox. 349 m
bus-station
Statia Tabara Nord 2; Linia ME
Stații autobuz aprox. 376 m
bus-station
Mamaia Nord [2-43 Mamaia
Stații autobuz aprox. 508 m
Recreere
bar
Kudos Beach Bar
Bar aprox. 194 m
park
Camping Turist
Parcuri aprox. 318 m
supermarket
Supermarket nonstop
Supermarket aprox. 417 m
sports-ground
Teren sportiv
Terenuri sport aprox. 988 m

Detalii despre preț și costuri

Prețul pe piață

Preț cerut: 390.000 €

Preț min. zonă
Preț max. zonă

i

Proprietate cu prețul cerut în afara intervalului mai multe...

Posibile explicații pentru faptul că prețul proprietății este peste cel maxim: imobil nou cu suprafață mare, are dotări și finisaje de lux.
Bine de știut: prețul unei proprietăți este influențat și de alte caracteristici, cum ar fi: vechime, localizare, vecinătăți, suprafață, compartimentare, amenajări, dotări, etc.
Insight premium disponibil după login

Costuri cu achiziția

Fără credit
Credit ipotecar
Noua casă

i

Costuri adiționale mai puțin știute la achiziție: taxe notariale, comisioane etc.

Insight premium disponibil după login

Proprietăți recomandate

Detalii de contact

Abonează-te la newsletter să fii primul care primește cele mai noi recomandări de proprietăți și sfaturi de la experți.

CONTACT

Creează alertă

Salvează căutarea ca să primești pe email ultimele anunțuri publicate

Apartamente noi cu 3 camere de vânzare în Mamaia, Județul Constanța