7

Apartament 2 camere cu vedere frontala catre lac

162.000 €

Mamaia, Județul Constanța

Nr. cam.:
2
Sup. utilă:
60 mp
Etaj:
7 / 10
An constr.:
2020 (În construcție)
  • • Locație aproximativă

Descriere apartament

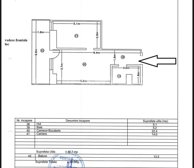
Amplasat in zona centrala a statiunii Mamaia (langa hotel Rex), cu vedere panoramica catre lac, acest apartament este situat la et 7 al unui imobil ce pe 10 nivele, S+P+9, finalizat in 2020. Apartamentul are o suprafata construita de 69 mp, suprafata utila de 47 mp si un balcoan cu suprafata de 13 mp, si este compus din living cu bucatarie deschisa, dormitor, o baie si o terasa cu acces din living cu vedere frontala catre lac. Avand in vedere finisajele si mobilierul de calitate superioara, amplasamentul si vederea, acest apartament reprezinta o buna investitie imobilara.
Citește mai mult Citește mai puțin
Confort lux Semidecomandat Mobilat Lux 1 Balcon / Terasă / Logie Aer condiționat Centrală proprie Încălzire prin pardoseală Zonă de litoral

Detalii apartament

ID anunț: X1UR100Q8 Copiat! 55768182 Copiat!
Actualizat în: 26 Ianuarie 2026
Suprafață construită: 69 mp
Nr. bucătării: 1
Nr. băi: 1
Tip imobil: Bloc de apartamente
Regim înălțime: P+10E

Utilități

Destinație
Rezidențial
Pereți
Faianță Vopsea lavabilă
Podele
Gresie
Ușă intrare
Metal
Izolații termice
Exterior
Ferestre cu geam termopan
PVC
Contorizare
Apometre Contor căldură Contor gaz
Bucătărie
Mobilată Utilată
Electrocasnice
Aragaz Frigider Hotă Mașină de spălat TV
Facilități imobil
Acoperiș Interfon Lift
Utilități
Curent Apă Canalizare CATV Gaze
Internet
Cablu Wireless
Amenajare străzi
Iluminat stradal Mijloace de transport în comun Asfaltate
Comision
2% + TVA

Disponibilitate proprietate:

Imediat

Puncte de interes

Mijloace transport
bus-station
Rex [2-43 Mamaia
Stații autobuz aprox. 114 m
bus-station
Statia Rex; Linia ME
Stații autobuz aprox. 171 m
bus-station
Rex [2-43 Mamaia
Stații autobuz aprox. 171 m
bus-station
Statia Iaki; Linia ME
Stații autobuz aprox. 477 m
Recreere
restaurant
Sabroso
Restaurant aprox. 134 m
park
Parcare Automata Mamaia
Parcuri aprox. 329 m
sports-ground
Teren sportiv
Terenuri sport aprox. 421 m
supermarket
Supermarket nonstop
Supermarket aprox. 1331 m

Detalii despre preț și costuri

Prețul pe piață

Preț cerut: 162.000 €

Preț min. zonă
Preț max. zonă

i

Proprietate cu prețul cerut în afara intervalului mai multe...

Posibile explicații pentru faptul că prețul proprietății este peste cel maxim: imobil nou cu suprafață mare, are dotări și finisaje de lux.
Bine de știut: prețul unei proprietăți este influențat și de alte caracteristici, cum ar fi: vechime, localizare, vecinătăți, suprafață, compartimentare, amenajări, dotări, etc.
Insight premium disponibil după login

Costuri cu achiziția

Fără credit
Credit ipotecar
Noua casă

i

Costuri adiționale mai puțin știute la achiziție: taxe notariale, comisioane etc.

Insight premium disponibil după login

Proprietăți recomandate

Detalii de contact

Abonează-te la newsletter să fii primul care primește cele mai noi recomandări de proprietăți și sfaturi de la experți.

CONTACT

Creează alertă

Salvează căutarea ca să primești pe email ultimele anunțuri publicate

Apartamente cu 2 camere de vânzare în Mamaia, Județul Constanța