5

REA1026958 Apartament 3 camere l ONE Mamaia Nord I Faza I

330.000 €

Mamaia, Județul Constanța

Nr. cam.:
3
Sup. utilă:
85 mp
Etaj:
3 / 4
An constr.:
2022 (Finalizată)
  • • Locație aproximativă
  • • Vizionare prin apel video

Descriere apartament

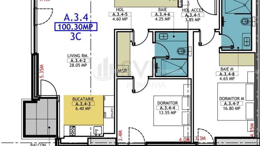
În Mamaia Nord, acolo unde diminețile încep cu lumină bună și aer sărat, iar vara pare că durează mai mult, acest apartament din ansamblul ONE este potrivit atât pentru locuire permanentă, cât și pentru vacanțe sau investiție. Proximitatea plajei și atmosfera specifică litoralului completează firesc un spațiu gândit pentru confort și funcționalitate. Cu o suprafață construită de 100,3 mp, locuința este gândită aerisit și funcțional, cu spații generoase și multă lumină naturală. Livingul – un loc potrivit atât pentru seri liniștite după o zi la plajă, cât și pentru momente petrecute cu prietenii,are acces direct către balcon. Zona de zi este completată de două dormitoare confortabile, potrivite atât pentru familie, cât și pentru oaspeți. Cele două băi adaugă un plus de confort și flexibilitate, un detaliu apreciat atât în locuirea permanentă, cât și în cazul închirierii. Balconul completează firesc spațiul interior, fiind locul ideal pentru cafeaua de dimineață sau un moment de respiro seara. Apartamentul se vinde impreuna cu mobilierul fix reprezentat de mobila de bucatarie,hol si baile moblate si utilate. Zona Mamaia Nord – ONE este una dintre cele mai căutate de pe litoral, datorită apropierii de plajă, restaurantelor, cafenelelor și facilităților premium, dar și accesului facil către punctele importante din zonă. Este un loc care atrage atât turiști, cât și rezidenți, menținând constant interesul pentru închiriere. Prin poziționare, compartimentare și calitatea construcției, acest apartament reprezintă o alegere echilibrată – un spațiu în care te poți muta, pe care îl poți transforma într-o casă de vacanță sau pe care îl poți privi ca pe o investiție cu potențial,pe termen mediu și lung. Atat compartimentarea eficienta cat si pozitionarea avantajoasa recomanda aceasta proprietate drept o buna investitie! Pentru oricare detalii, nu ezitati sa ma contactati!
Citește mai mult Citește mai puțin
Confort lux Decomandat Acceptă animale de companie Mobilat Mobilat 1 Balcon / Terasă / Logie Aer condiționat Centrală proprie Zonă de litoral

Detalii apartament

ID anunț: XENT000CA Copiat! 274214124 Copiat!
Actualizat în: 02 Martie 2026
Suprafață utilă totală: 88 mp
Suprafață construită: 100 mp
Nr. bucătării: 1
Nr. băi: 2
Structură rezistență: Beton
Tip imobil: Bloc de apartamente
Regim înălțime: P+4E

Utilități

Destinație
Rezidențial
Pereți
Faianță
Podele
Parchet
Contorizare
Apometre
Bucătărie
Mobilată
Alte spații utile
WC Serviciu
Facilități imobil
Interfon Lift
Utilități
Gaze CATV Curent
Internet
Cablu Wireless
Servicii imobil
Pază
Comision
Standard

Vicii:

Fără vicii.

Disponibilitate proprietate:

Disponibil din 02/02/2026.

Puncte de interes

Mijloace transport
bus-station
Statia Tabara Nord 2; Linia ME
Stații autobuz aprox. 392 m
bus-station
Tabara Turist [Mamaia Estival]
Stații autobuz aprox. 430 m
bus-station
Tabara Nord [Mamaia Estival]
Stații autobuz aprox. 914 m
bus-station
Mamaia Nord [2-43 Mamaia
Stații autobuz aprox. 1101 m
Recreere
restaurant
Ammos
Restaurant aprox. 21 m
park
Camping Turist
Parcuri aprox. 374 m
supermarket
Supermarket nonstop
Supermarket aprox. 1017 m
sports-ground
Teren sportiv
Terenuri sport aprox. 1622 m

Detalii despre preț și costuri

Prețul pe piață

Preț cerut: 330.000 €

Preț min. zonă 110.000 €
Preț max. zonă 315.000 €

i

Proprietate cu prețul cerut în afara intervalului mai multe...

Posibile explicații pentru faptul că prețul proprietății este peste cel maxim: imobil nou cu suprafață mare, are dotări și finisaje de lux.
Bine de știut: prețul unei proprietăți este influențat și de alte caracteristici, cum ar fi: vechime, localizare, vecinătăți, suprafață, compartimentare, amenajări, dotări, etc.

Costuri cu achiziția

Fără credit
14.231 RON
Credit ipotecar
16.744 RON
Noua casă
1.822 RON+ taxe notariale

i

Costuri adiționale mai puțin știute la achiziție: taxe notariale, comisioane etc.

Proprietăți recomandate

Detalii de contact

Abonează-te la newsletter să fii primul care primește cele mai noi recomandări de proprietăți și sfaturi de la experți.

CONTACT

Creează alertă

Salvează căutarea ca să primești pe email ultimele anunțuri publicate

Apartamente noi cu 3 camere de vânzare în Mamaia, Județul Constanța